• Sledovat cenu
  •  

Zasílání upozornění emailem:

Prodej hotelu 743 m2 - Lidická, Kunovice, okr. Uherské Hradiště

Cena: 6 500 000 Kč
Stav:Volný
743 m2, cihlová, parcela 564 m2
Popis: Výstavba PENZIONU KUNOV (osobní vlastnictví)ICE - STAVEBNÍ POV (osobní vlastnictví)OLENÍ V RUCE
Okamžitý start - 14 ubytovacích jednotek - 743 m and sup2; užitné plochy

PŘIPRAVENÝ INVESTIČNÍ PROJEKT
Výjimečná příleži...tost pro investory! Nabízíme kompletně připravený projekt výstavby penzionu v Kunovicích s platným stavebním povolením a hotovou projektovou dokumentací. Začněte stavět prakticky ihned!

KLÍČOV (osobní vlastnictví)É PARAMETRY INVESTICE
Užitná plocha: 743, 60 m and sup2; na třech podlažích
Kapacita: 14 ubytovacích jednotek + wellness zázemí
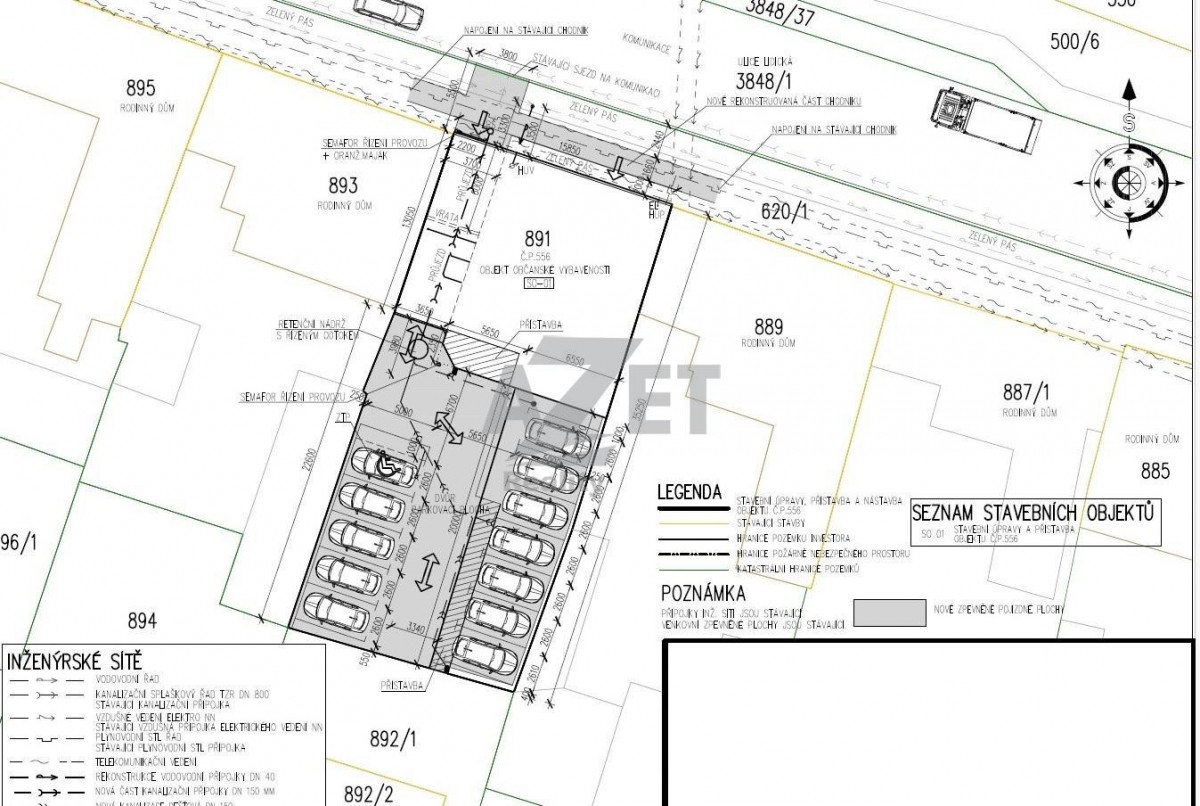
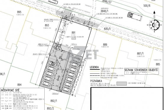
Parkování: 12 stání na vlastním pozemku (včetně ZTP)
Lokalita: Kunovice, ul. Lidická - výborná dostupnost
Stav: platné stavební povolení, okamžitý start možný

Klíčové výhody investice: platné stavební povolení umožňuje okamžitý start bez zbytečného zdržení, atraktivní lokalita v zavedené zástavbě s výbornou dostupností a strategická poloha u hlavní komunikace podporují vysoký potenciál vytíženosti, v objektu je zároveň možné vybudovat menší bytové jednotky pro dlouhodobé nájemní bydlení. K dispozici je velkorysá užitná plocha 743, 60 m and sup2; na třech podlažích.

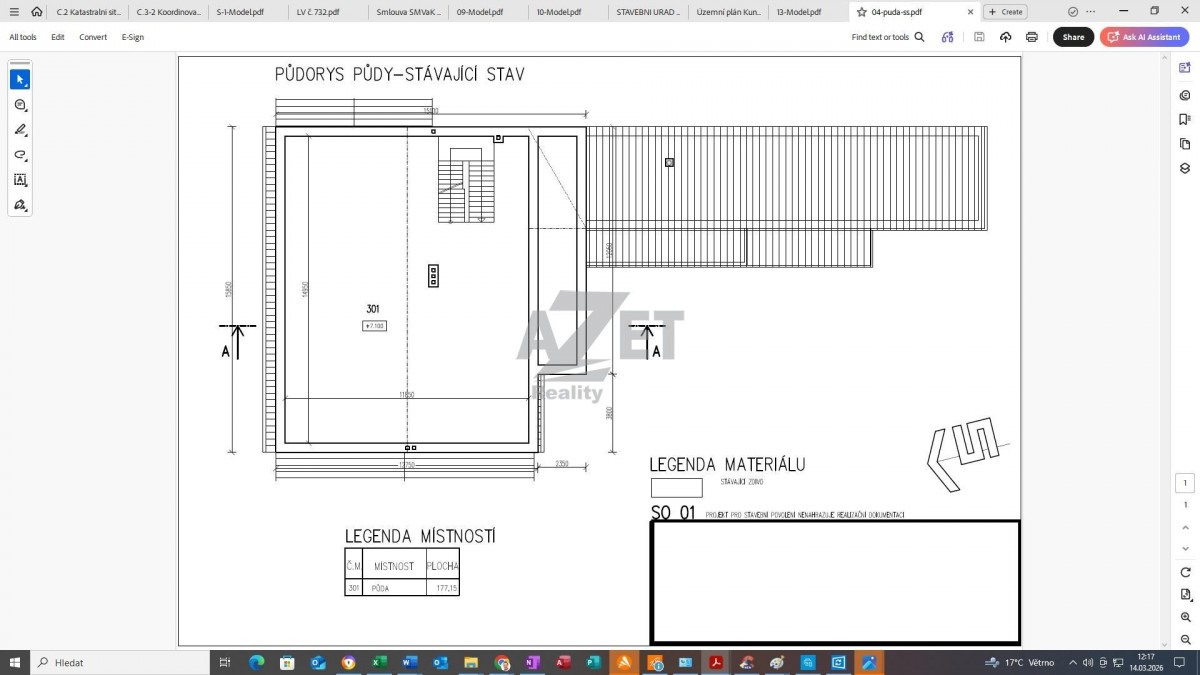
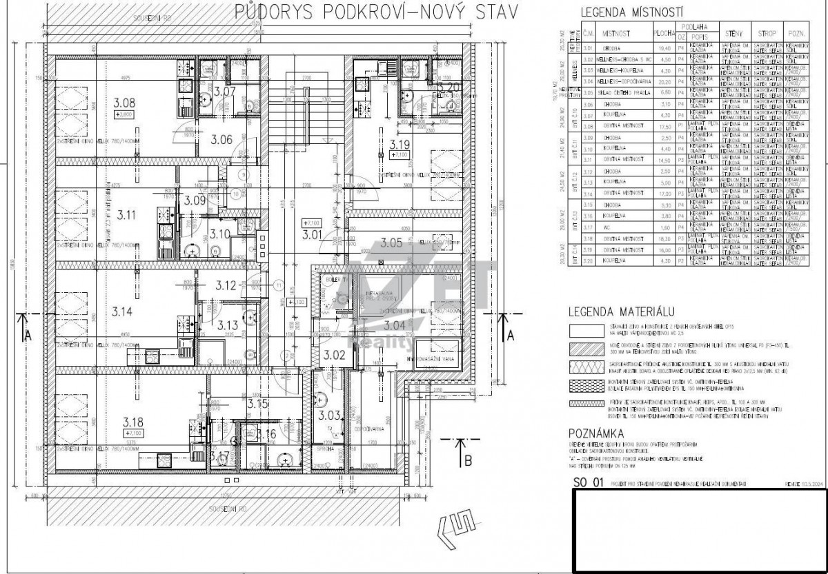
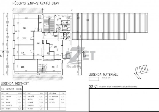
DISPOZICE PENZIONU
Podlaží Plocha Pobytová plocha Jednotky
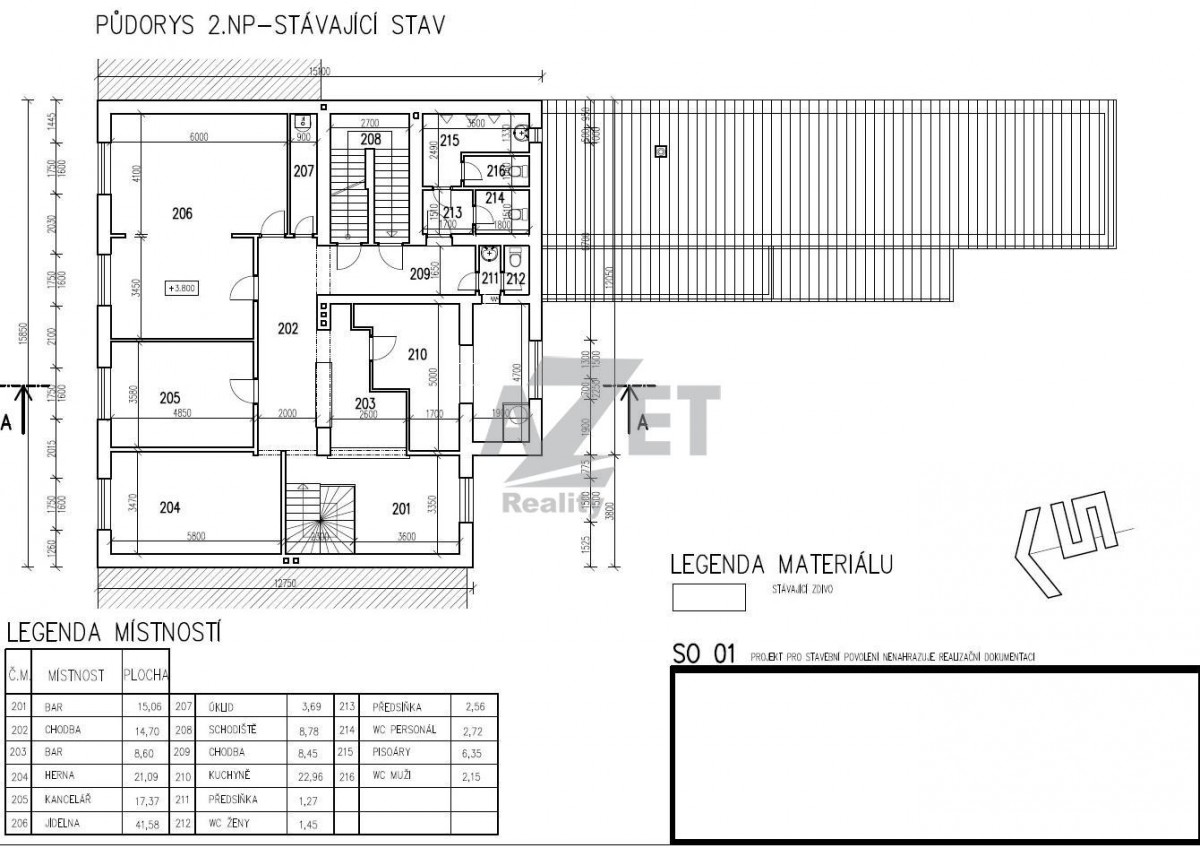
1. NP (první nadzemní patro) 188 m and sup2; 58 m and sup2; 3 jednotky
2. NP (druhé nadzemní patro) 277 m and sup2; 103 m and sup2; 6 jednotek
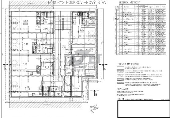
Podkroví 278 m and sup2; 67 m and sup2; 5 jednotek
CELKEM 743 m and sup2; 28 m and sup2; 14 jednotek

TECHNICKÉ ŘEŠENÍ
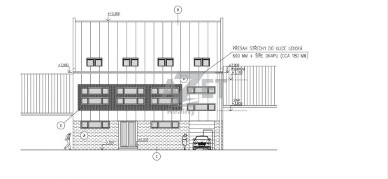
Konstrukce: Nové nosné zdivo Ytong, příčky SDK
Kontaktní zateplení 150 mm
Nové stropy (ocelové profily + ŽB deska)
Krov a krytina Prefa Prefalz
Plastová okna s trojsklem

Vytápění a TUV:
Elektrické podlahové vytápění
Elektrické bojlery 100 l

Sítě:
Vodovod, kanalizace, elektřina - připojeno
Retenční nádrž pro dešťové vody

LOKALITA A DOSTUPNOST
Kunovice - ulice Lidická
Strategická poloha u hlavní komunikace
Zavedená zástavba rodinných domů
Výborné dopravní napojení
Blízkost městské infrastruktury
Vlastní dvůr s parkováním

FLEXIBILNÍ MOŽNOSTI
Územní plán umožňuje změnu záměru na:
Dům s nájemními byty
Apartmánový dům
Firemní ubytování
Kombinace bydlení a služeb

VHODNÉ PRO
Investory hledající okamžitý start projektu
Developery se zaměřením na ubytovací služby
Podnikatele v cestovním ruchu
Firmy řešící ubytování zaměstnanců

STAVEBNÍ ÚDAJE
Zastavěná plocha: 362 m and sup2;
Obestavěný prostor: 3. 868 m and sup3;
Pozemek: s vlastním dvorem a parkováním
Stav objektu: připraven k rekonstrukci dle PD

CO ZÍSKÁTE
Platné stavební povolení
Kompletní projektovou dokumentaci
Připravený pozemek se sítěmi
Možnost okamžitého startu
Flexibilní využití objektu
Garantovanou návratnost investice

UPOZORNĚNÍ
Vizualizace jsou ilustrativní a slouží k lepší představě o potenciálu projektu. Závazné jsou údaje z projektové dokumentace.

KONTAKT
Maximalizujte potenciál této investice! Pro kompletní projektovou dokumentaci, finanční analýzu projektu, domluvení prohlídky nebo individuální investiční scénář mě kontaktujte.

Připraven k okamžitému startu Platné povolení Výnosná investice

Investiční projekt s garantovaným potenciálem v atraktivní lokalitě Kunovic
  • Vložení inzerátu:
    15.3.2026
  • Kód:
    1733
  • Typ nemovitosti:
    Hotel
  • Typ budovy:
    Cihlová
  • Podlahová plocha:
    743 m2
  • Plocha parcely:
    564 m2
  • Sklep:
    Ano
  • Stav objektu:
    Před rekonstrukcí
  • Telekomunikace:
    Internet
  • Voda:
    dálkový vodovod
  • Elektřina:
    230 V, 380 V
  • Doprava:
    silnice, dálnice, MHD, autobus, vlak
  • Odpad:
    kanalizace
  • Komunikace:
    asfaltová
  • Bezbariérový přístup:
    Ano
  • Nabídky v okolí:
  • Informace o obci:
    Obec Kunovice má 86 obyvatel, z toho 49 v produktivním věku.
Lokalita: Lidická , Kunovice, okres Uherské Hradiště, Česká republika Lidická, Kunovice, okr. Uherské Hradiště

Kontakt

Kamil Dolinek



Volná pracovní místa ExpertPrace.cz
  • Objednání prohlídky a více informací
  •  
  • Poslat na e-mail
  •  

Zasílání odkazu na realitu emailem: