• Sledovat cenu
  •  

Zasílání upozornění emailem:

Prodej hotelu 453 m2 - Všenorská, Dobřichovice, okr. Praha-západ (již není v nabídce)

Cena: 19 999 950 Kč
Stav:archiv
453 m2, cihlová, parcela 933 m2
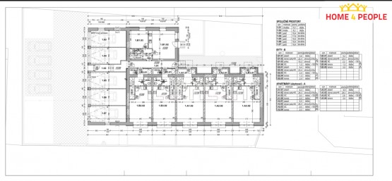
Popis: Cena včetně provize a právního servisu. . Zprostředkujeme Vám prodej domu s platným stavebním povolením, jehož rekonstrukcí vznikne 6 mezonetových jednotek o celkové čisté (pronajímatelné) ploše 453 m² (+ dalších 190 m² ter...asy - dispozice a výměry jednotlivých jednotek viz tabula a výkresy). Ke každé jednotce jsou 2 parkovací místa (součástí domu je garáž s 5 parkovacími místy a parkoviště na pozemku s kapacitou dalších 9 parkovacích míst). Dům je napojen na veškeré sítě (elektřina, plyn, vodovod i kanalizace). Celková plocha pozemku je 933 m².
Dům se nachází v žádané lokalitě u Berounky na úpatí Brdských lesů, přitom jen asi 20 km z centra Prahy, 200 m (3 minuty chůze) od vlakového nádraží Dobřichovice (vlak do Prahy jezdí 4 x za hodinu, cesta na Smíchovské nádraží trvá 23 minut, na Hlavní 30 minut, na druhou stranu do Berouna 20 minut). V obci je veškerá občanská vybavenost: dětská hřiště a parky, školky a školy, obchody i lékaři. V případě zájmu o prohlídku mě prosím kontaktujte. Ev. číslo: 30651. Energetický štítek: G
  • Vložení inzerátu:
    6.6.2023
  • Kód:
    3617539
  • Typ nemovitosti:
    Hotel
  • Typ budovy:
    Cihlová
  • Zastavěná plocha:
    993 m2
  • Podlahová plocha:
    453 m2
  • Plocha parcely:
    933 m2
  • Stav objektu:
    Velmi dobrý
  • Energetická náročnost:
    G - Mimořádne nehospodárná
  • Nabídky v okolí:
  • Informace o obci:
    Obec Dobřichovice má 3338 obyvatel, z toho 2250 v produktivním věku.
    V obci se nachází pošta.
    V obci se nachází škola, popř. školka.
    V obci se nachází zdravotní zařízení.
    V obci je rozvod kanalizace.
    V obci je rozvod městské vody.
    V obci je rozvod plynu.

Podobné nabídky v okolí

Lokalita: Všenorská , Dobřichovice, okres Praha-západ, Česká republika Všenorská, Dobřichovice, okr. Praha-západ