• Sledovat cenu
  •  

Zasílání upozornění emailem:

Prodej hotelu 246 m2 - Sluneční stráň 291, Svoboda nad Úpou, okr. Trutnov

Cena: 12 900 000 Kč
Stav:Volný
246 m2, cihlová, parcela 780 m2
Popis: Prodej domu s investiční příležitostí v jedné z nejžádanějších částí Svobody nad Úpou - na Sluneční stráni. V domě je možné prostory upravit na tři samostatné bytové jednotky, které lze velice dobře krátkodobě pronajímat.... V dosahu 15 minut jízdy autem si můžete užívat lyžařských středisek, hrát golf, podnikat výlety na kole po cyklotrasách, procházet se krásnou přírodou národního parku, nebo relaxovat na přírodním lesním koupališti Sejfy. Autobusové a vlakové nádraží se zastávkou cyklo a SKI busu je jen pár minut od domu.
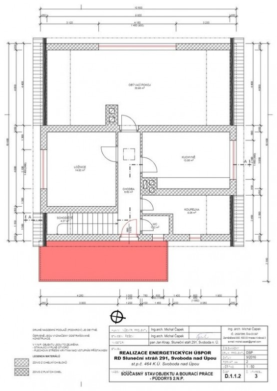
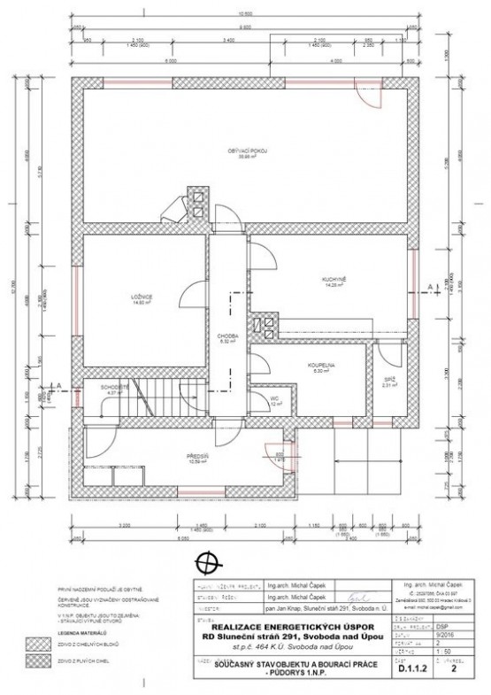
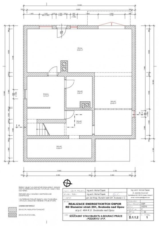
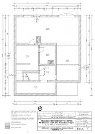
K domu, který je situován uprostřed pozemku, vede slepá ulice, což majiteli zaručuje absolutní klid. Dům je dispozičně řešen ve třech podlažích, kdy první je částečně zapuštěné do svažitého terénu s plochou 96, 9m2 a se samostatným vchodem. Ve druhém podlaží je bytová jednotka s dispozicí 3+1 (98, 8m2 + balkon 4, 8m2). Do třetího podlaží o dispozici 3+1 (88, 4m2 + terasa 10, 6m2) vede samostatné schodiště. Podrobnosti najdete na plánku půdorysů.
V roce 2019 bylo provedeno zateplení celého domu včetně výměny oken. Před domem je nově vydlážděné prostranství, které umožňuje parkování minimálně 6 vozů. Voda je vedena z veřejného vodovodu, topení je v domě zajištěno dálkovým horkovodem, odpady jsou svedeny do kanalizace.
Svoboda nad Úpou má unikátní polohu, můžete se z ní vydat do různých směrů, ať to jsou Jánské Lázně s lanovkou na Černou horu, nebo některé z lyžařských středisek - Pec pod Sněžkou, Mladé Buky, či Pomezní Boudy. V okolí najdete nepřeberné sportovní vyžití s relaxací a odpočinkem v čisté přírodě Krkonošského národního parku. Nechte své peníze vydělávat a zároveň si užívejte moc hezkého prostředí Krkonoš.
  • Vložení inzerátu:
    22.1.2026
  • Kód:
    00070
  • K dispozici od:
    0.0.0
  • Typ nemovitosti:
    Hotel
  • Typ budovy:
    Cihlová
  • Zastavěná plocha:
    179 m2
  • Podlahová plocha:
    246 m2
  • Plocha parcely:
    780 m2
  • Stav objektu:
    Dobrý
  • Umístění objektu:
    Klidná část
  • Voda:
    dálkový vodovod
  • Doprava:
    vlak, autobus
  • Topeni:
    ústřední dálkové
  • Odpad:
    kanalizace
  • Energetická náročnost:
    G - Mimořádne nehospodárná
  • Nabídky v okolí:
  • Informace o obci:
    Obec Svoboda nad Úpou má 2139 obyvatel, z toho 1504 v produktivním věku.
    V obci se nachází pošta.
    V obci se nachází škola, popř. školka.
    V obci se nachází zdravotní zařízení.
    V obci je rozvod kanalizace.
    V obci je rozvod městské vody.
    V obci je rozvod plynu.
Lokalita: Sluneční stráň 291, Svoboda nad Úpou, okres Trutnov, Česká republika Sluneční stráň 291, Svoboda nad Úpou, okr. Trutnov


Podobné nabídky v okolí


Volná pracovní místa ExpertPrace.cz
  • Objednání prohlídky a více informací
  •  
  • Poslat na e-mail
  •  

Zasílání odkazu na realitu emailem: