Prodej bytu 6+kk, 188 m2 - Nobelova, Praha 6, Vokovice, Praha (již není v nabídce)
6+kk, 188 m2, OV, 5. podlaží
Popis:
Nadstandardní, prostorově velkorysý byt 6+kk s přemoc hezkými výhledy do Šáreckého údolí, s velkou terasou, domácí saunou, dvěma sklepy a dvěma garážovými stáními, situovaný... v posledním patře rezidenčního domu v komplexu Na Krutci, v Praze 6.
Komplex postavený v letech 2005 - 2008 tvoří 6 bytových domů, 16 řadových rodinných domů a několik samostatných vil. V rámci nepřetržitě střeženého areálu s recepcí se nachází také sportovní hala a tenisové kurty. Vše perfektně zasazené v lokalitě pražských Vokovic, na hranici vilové zástavby a volné přírody.
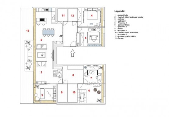
K bytu o podlahové ploše 188 m2 přísluší východně orientovaná terasa s velikostí 38 m2, s celoproskleným zábradlím. Umístění bytu po celé ploše čtvrtého, posledního patra domu tak zaručuje nejen soukromí, ale i ničím nerušené výhledy do daleka.
Důmyslně řešenou dispozici bytu ve tvaru písmene U tvoří vstupní hala, otevřený koncept obývacího pokoje s kuchyňským koutem a zimní zahradou, dalších 5 neprůchozích pokojů, 2 koupelny, technická místnost a nová domácí sauna.
Velkoformátová okna poskytují interiéru spoustu světla, vzdušnost a pocit lehkosti. Příjemnou atmosféru dotvářejí střešní světlovody umístěné v koupelnách a v hale. Komfort bydlení je zajištěn v podlaze zapuštěným fan - coil topením, vlastním plynovým kotlem a elektricky ovládanými předokenními clonami v ložnicích. PC / TV rozvody jsou ve všech pokojích.
V bytě byly započaté přípravné práce na celkové rekonstrukci interiéru - podlah, dveří, kuchyně a koupelen. Novému majiteli může být již zpracovaný projekt poskytnut zdarma, nebo si v této fázi může byt zařídit dle svých představ a potřeb.
Jedinečná lokalita v blízkosti přírody, s rychlou dostupností do centra města i na letiště, dělá z Vokovic skvělé místo k bydlení. Pouhé 4 min chůze od domu se nachází nová stanice metra "Nádraží Veleslavín", ale také tramvajová zastávka, vlakové i autobusové nádraží. Na ruzyňské letiště 10 min autem. V blízkém sousedství se nachází základní i mateřská škola. Sportovci ocení, vedle zmiňovaných možností přímo v areálu, také procházky Šárkou, nedaleké přírodní koupaliště Džbán, beachvolejbalové kurty nebo golfový driving range.
PENB - D.
ID nemovitosti MDO0511 - 0001.
- Vložení inzerátu:
20.1.2022
- Kód:
MDO0511-0001
- Typ nemovitosti:
Byt
- Dispozice:
6+kk
- Vlastnictví:
OV
- Podlaží:
5
- Podlahová plocha:
188 m2
- Plocha parcely:
188 m2
- Terasa:
Ano
- Sklep:
9 m2
- Stav objektu:
Velmi dobrý
- Bezbariérový byt:
Ano
- Topeni:
lokální plynové
- Bezbariérový přístup:
Ano
- Nabídky v okolí: