• Sledovat cenu
  •  

Zasílání upozornění emailem:

Prodej bytu 5+kk, 161 m2 - Českého červeného kříže, Praha-Lipence, Praha (již není v nabídce)

Cena: 12 990 000 Kč
Stav:archiv
5+kk, 161 m2, cihlová, OV, 2. podlaží
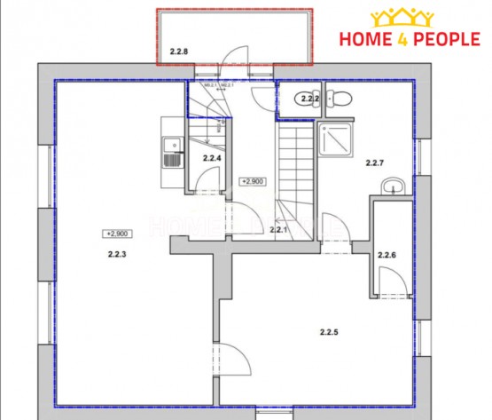
Popis: cena včetně provize a právního servisu. Zprostředkujeme Vám prodej nově a krásně zrekonstruovaného mezonetového bytu 5+KK o celkové výměře 160, 7 m² včetně sklepa 17, 80 m², 2 parkovacích stání a přilehlého pozemku o výměře... 60, 6 m².
Jednotka se skládá z:

1. PP: sklep (celkem 17, 80 m²).

1. NP (první nadzemní patro): závětří, chodba, šatna, (celkem 6, 4 m²).

2. NP (druhé nadzemní patro): obývací pokoj s kuchyní, komora, pokoj, koupelna, šatna, balkón, chodba se schodištěm, sociální zařízení WC (celkem 73, 68 m²).

3. NP (třetí nadzemní patro): chodba, 3 samostatné pokoje, koupelna, (celkem 60, 89 m²).

Jedná se o byt, který vznikl rozdělením rodinného domu na dvě nové bytové jednotky (2+KK a 5+KK). Každá bytová jednotka má samostatný vchod, pozemek a přístup do sklepa z bytu. Vrchní patro bytu je zcela samostatné s přípravou na kuchyň a byt je tedy možné rozdělit na vícegenerační bydlení, případně může být vrchní patro vhodné na pronájem.

Dům je částečně podsklepený, samostatně stojící, s valenou lomenou střechou. Nemovitost byla kompletně zrekonstruována: nová plastová okna, na podlaze kvalitní vinylová podlaha, v koupelně designové obklady, dlažby, prosklená koupelnová zástěna, nové elektrické rozvody, vodovodní a topné rozvody, zateplení fasády, střechy (+ nová střešní krytina) + terénní úpravy pozemku. Vytápění je řešeno elektrokotlem.

Pro byt jsou vymezené 2 parkovací stání: P2, P3. K bytové jednotce patří přilehlý pozemek o celkové výměre 60, 6 m², na plánku vyznačený zeleně.


Byt se nachází v žádané a klidné lokalitě Lipence. Pro toho, kdo chce bydlet v přírodě a zároveň kousek od Prahy, je tento byt ideální, za 20 minut Vás autobus č. 241 doveze na Smíchovské nádraží. V okolí je veškerá občanská vybavenost: školy, školky, obchody. V případě zájmu prosím kontaktujte makléře.
- - Ev. číslo: 30599. Energetický štítek: G

Podobné nabídky v okolí

Lokalita: Českého červeného kříže , Praha-Lipence, Praha, Česká republika Českého červeného kříže, Praha-Lipence, Praha