• Sledovat cenu
  •  

Zasílání upozornění emailem:

Prodej bytu 5+1, 235 m2 - Vrchlického 526, Kralupy nad Vltavou, okr. Mělník (již není v nabídce)

Cena: 7 350 000 Kč
Stav:archiv
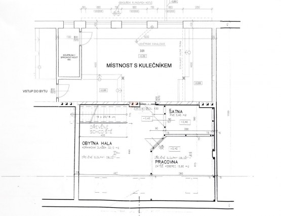
5+1, 235 m2, cihlová, OV, 3. podlaží
Popis: Exkluzivně nabízíme prodej atypického mezonetového bytu dispozice 5+1 o ploše 226 m2 + 9 m2 sklep, Kralupy nad Vltavou, Vrchlického ulice. Byt se nachází v kli...dné části města, v blízkosti parku a centra, ve 2. patře a podkroví cihlového domu bez výtahu. Je možné ho jednoduše rozdělit na dvě samostatné bytové jednotky 1+kk 38m2 a 4+1 188m2. Kolaudace proběhla v roce 2002, topení a ohřev vody zajišťuje plynový etážový kotel, byt disponuje dvěma koupelnami - jedna se sprchovým koutem v úrovni vstupu, druhá s vanou v podkroví, pod zvýšenou podlahou obývacího pokoje je úložný prostor o výšce 1, 2m, ložnice je vybavena klimatizací, je zavedena kabelová TV UPC + v bytě je PC síť, byt se prodává bez nábytku na fotografiích, měsíční poplatky činí 4. 600, - Kč + zálohy 2. 600, - Kč na elektřinu a 3. 600, - Kč na plyn, dům prošel v roce 2012 rekonstrukcí - nové stoupačky (vertikální svody), výměna oken a zateplení fasády, v domě je dobře fungující SVJ a dobrá skladba obyvatel, byt je v osobním vlastnictví, koupi je možné financovat hypotečním úvěrem, který Vám pomůžeme vyřídit, uvedená cena je včetně provize.
  • Vložení inzerátu:
    6.6.2022
  • Kód:
    ZR1004
  • Typ nemovitosti:
    Byt
  • Typ budovy:
    Cihlová
  • Dispozice:
    5+1
  • Vlastnictví:
    OV
  • Podlaží:
    3
  • Podlahová plocha:
    235 m2
  • Plocha parcely:
    235 m2
  • Terasa:
    Ano
  • Sklep:
    9 m2
  • Stav objektu:
    Velmi dobrý
  • Bezbariérový byt:
    Ano
  • Telekomunikace:
    Internet, Kabelová televize, Kabelové rozvody
  • Voda:
    dálkový vodovod
  • Doprava:
    MHD
  • Topeni:
    ústřední plynové
  • Plyn:
    plynovod
  • Odpad:
    kanalizace
  • Komunikace:
    asfaltová
  • Bezbariérový přístup:
    Ano
  • Energetická náročnost:
    D - Méne úsporná
  • Podle vyhlášky:
    c. 78/2013 Sb.
  • Ukazatel náročnosti:
    153 kWh/m2
  • Nabídky v okolí:
  • Informace o obci:
    Obec Kralupy nad Vltavou má 17868 obyvatel, z toho 12540 v produktivním věku.
    V obci se nachází pošta.
    V obci se nachází škola, popř. školka.
    V obci se nachází zdravotní zařízení.
    V obci je rozvod kanalizace.
    V obci je rozvod městské vody.
    V obci je rozvod plynu.

Podobné nabídky v okolí

Lokalita: Vrchlického 526, Kralupy nad Vltavou, okres Mělník, Česká republika Vrchlického 526, Kralupy nad Vltavou, okr. Mělník