• Sledovat cenu
  •  

Zasílání upozornění emailem:

Prodej bytu 4+kk, 99 m2 - Komárovská, Brno, okr. Brno-město

Cena: 20 020 727 Kč
Stav:Volný
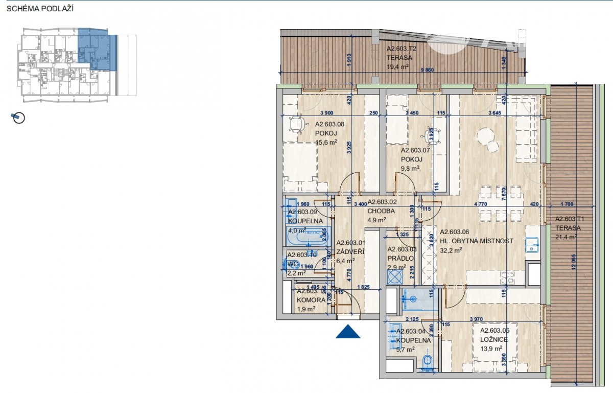
4+kk, 99 m2, skeletová, OV, 6. podlaží
Popis: Najděte svůj nový domov v Realitním projektu roku 2023 v kategorii cena veřejnosti. Allrisk MERIDIEM vytváří jedinečné místo nadčasového životního stylu pro podnikání i rodinné bydlení vznikající mezi ulicemi Svatopetrská a ...Komárovská v Brně. Je součástí unikátní a největší urbanistické restrukturalizace nové jižní čtvrti Trnitá v celé historii města. Jedná se o polyfunkční objekt s praktickým rozmístěním jednotlivých částí. Projekt se skládá ze tří základních objektů A1, A2, A3 a B. Celý komplex vytváří nové území s výraznou dominantou a celkově utváří nový funkční veřejný prostor. Allrisk MERIDIEM přináší novou podobu moderního a nadčasového bydlení a životního stylu celkově.

V tomto projektu nabízíme byt 4+kk 104m2 s 2 terasami, který je umístěn v 6. nadzemním podlaží. Pokoje jsou bohatě prosvětleny francouzskými okny orientovanými jižním a východním směrem. Byt je oddělen od společné chodby prostorným zádveřím s možností úložného prostoru nejen v zádveří, ale i v komoře. Koupelna vybavená vanou a dvojumyvadlem. Prostor na pračku a sušičku je v samostatné místnosti. Ložnice má vlastní koupelnu se sprchovým koutem, dvojumyvadlem a sociální zařízení WC. Prostorný obývací pokoj s kuchyňským koutem.
Ze všech obytných místností je přímý vstup na terasy směrem na východ a na jih. Na terase nezámrzný ventil, s možnost umístění vířivky. Větrání pomocí rekuperační jednotky.
Byt je řešen v exkluzivním standardu, který zahrnuje kvalitní podlahy, obklady, dlažby a sanitární předměty v nejlepší kvalitě.
K jednotce je možné za výhodnou cenu přikoupit 2. garážové parkovací stáni a 2. sklepní kóji.

K rezervaci bytu stačí 16 % z celkové ceny, zbylých 84 % se hradí až po vydání kolaudačního rozhodnutí (do 30. 9. 2025).
Byt lze využit k vlastnímu bydlení nebo jako investici, spojenou s následným pronájmem.

v projektu také najdete:
* široké vjezdy do garáží
* sklepní koje jsou přímo u parkovacích stání
* příprava na wallbox ( el. nabíjení aut)
* klimatizace a venkovní žaluzie ve všech jednotkách
* 3m výšky stropu 
* rekuperace
* příprava na chytrou domácnost

Svojí polohou je lokalita Allrisk MERIDIEM v docházkové vzdálenosti historického centra města Brna i rekreačního a relaxačního vyžití v podobě parků, koupání v biotopu a sportovních hřišť pro děti i dospělé. Pro aktivní odpočinek je zde cyklostezka podél řeky Svratky.
Perfektní občanská vybavenost, vše v pěší vzdálenosti, popř. dojezdem MHD z nedaleko nově vzniklé odhlučněné zastávky, zároveň je tu napojení na městský okruh a dálniční síť.

Pro podrobnější informace vyplňte kontaktní formulář nebo navštivte webové stránky. Rádi Vám poté představíme projet ve speciální prezentační místnosti nacházející se v těsné blízkosti stavby.

K vybraným bytům nad 120m2 parkovací místo a sklepní kóje v ceně. Časově omezená akce.

Financování možné hypotékou či úvěrem ze stavebního spoření, s jejich vyřízením Vám rádi pomůžeme.
Při koupi nemovitosti na investici vám naše společnost může nabídnout služby zajištění vhodného nájemníka.
  • Vložení inzerátu:
    22.8.2023
  • Kód:
    BK161466 - 6
  • K dispozici od:
    0.0.0
  • Typ nemovitosti:
    Byt
  • Typ budovy:
    Skeletová
  • Dispozice:
    4+kk
  • Vlastnictví:
    OV
  • Podlaží:
    6
  • Podlahová plocha:
    99 m2
  • Terasa:
    41 m2
  • Stav objektu:
    Ve výstavbě
  • Umístění objektu:
    Centrum
  • Telekomunikace:
    Internet
  • Voda:
    dálkový vodovod
  • Elektřina:
    230 V
  • Doprava:
    silnice, dálnice, MHD, autobus, vlak
  • Odpad:
    kanalizace
  • Komunikace:
    asfaltová
  • Energetická náročnost:
    B - Velmi úsporná
  • Podle vyhlášky:
    c. 78/2013 Sb.
  • Ukazatel náročnosti:
    29 kWh/m2
  • Nabídky v okolí:
  • Informace o obci:
    Obec Brno má 371371 obyvatel, z toho 256490 v produktivním věku.
    V obci se nachází pošta.
    V obci se nachází škola, popř. školka.
    V obci se nachází zdravotní zařízení.
    V obci je rozvod kanalizace.
    V obci je rozvod městské vody.
    V obci je rozvod plynu.
Lokalita: Komárovská , Brno, okres Brno-město, Česká republika Komárovská, Brno, okr. Brno-město


Podobné nabídky v okolí


Volná pracovní místa ExpertPrace.cz
  • Objednání prohlídky a více informací
  •  
  • Poslat na e-mail
  •  

Zasílání odkazu na realitu emailem: