• Sledovat cenu
  •  

Zasílání upozornění emailem:

Prodej bytu 4+kk, 93 m2 - náměstí Svobody 1373, Jihlava (již není v nabídce)

Cena: 4 695 000 Kč
Stav:archiv
4+kk, 93 m2, cihlová, OV, 4. podlaží
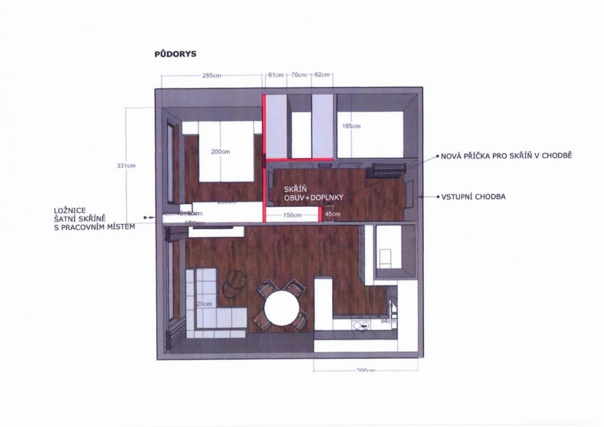
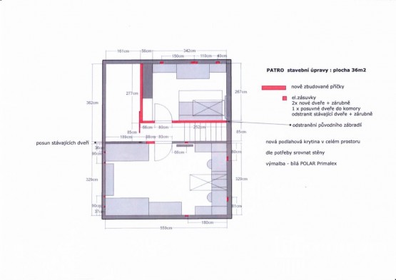
Popis: Hledáte bydlení bez zdlouhavého zařizování, v klidné části a přesto blízko centra? Tak to bychom měli jednu lákavou inspiraci. Na náměstí Svobody čeká na své nové majitele ve třetím patře mezonetový byt ...e + kuchyňský kout">4+kk. Před třemi roky tento byt na čas zabrali řemeslníci a spolu s panem majitelem na něm zapracovali tak, aby ho dostali do nynější podoby. Z fotografií je patrné, že se jedná prakticky o nový byt. Půdorysy obou podlaží umožní si udělat představu o bytě ještě před prohlídkou. Kuchyňský kout a obývací část tvoří ústřední prostor bytu. V tomto podlaží najdeme ještě ložnici, koupelnu a samostatné sociální zařízení WC. Po schodech se dostaneme do podkroví, kde mohou nalézt útočiště děti ve svém pokoji, místnost vedle může posloužit jako druhý dětský pokoj, pokoj pro hosty nebo jako pracovna. Celý byt je velkoryse vybaven bohatými úložnými prostory ať už v kuchyni, v ložnici nebo v předsíni. Ve spodní i horní části bytu jsou komory. Další komora je na chodbě před vstupem do bytu.
Nelze na tomto omezeném prostoru samozřejmě vyjmenovat všechny detaily tohoto výjimečného bytu a domu. Podrobnosti si povíme při prohlídce.
  • Vložení inzerátu:
    27.1.2021
  • Kód:
    16627
  • Typ nemovitosti:
    Byt
  • Typ budovy:
    Cihlová
  • Dispozice:
    4+kk
  • Vlastnictví:
    OV
  • Podlaží:
    4
  • Podlahová plocha:
    93 m2
  • Stav objektu:
    Velmi dobrý
  • Bezbariérový byt:
    Ano
  • Voda:
    dálkový vodovod
  • Doprava:
    silnice, dálnice, MHD, autobus, vlak
  • Topeni:
    ústřední dálkové
  • Odpad:
    kanalizace
  • Komunikace:
    dlážděná
  • Bezbariérový přístup:
    Ano
  • Nabídky v okolí:
  • Informace o obci:
    Obec Jihlava má 51154 obyvatel, z toho 35998 v produktivním věku.
    V obci se nachází pošta.
    V obci se nachází škola, popř. školka.
    V obci se nachází zdravotní zařízení.
    V obci je rozvod kanalizace.
    V obci je rozvod městské vody.
    V obci je rozvod plynu.

Podobné nabídky v okolí

Lokalita: náměstí Svobody 1373, Jihlava, okres Jihlava, Česká republika náměstí Svobody 1373, Jihlava