Prodej bytu 4+kk, 79 m2 - Mimoňská, Praha 9, Praha (již není v nabídce)
Cena:
8 800 000 Kč
Stav:archiv
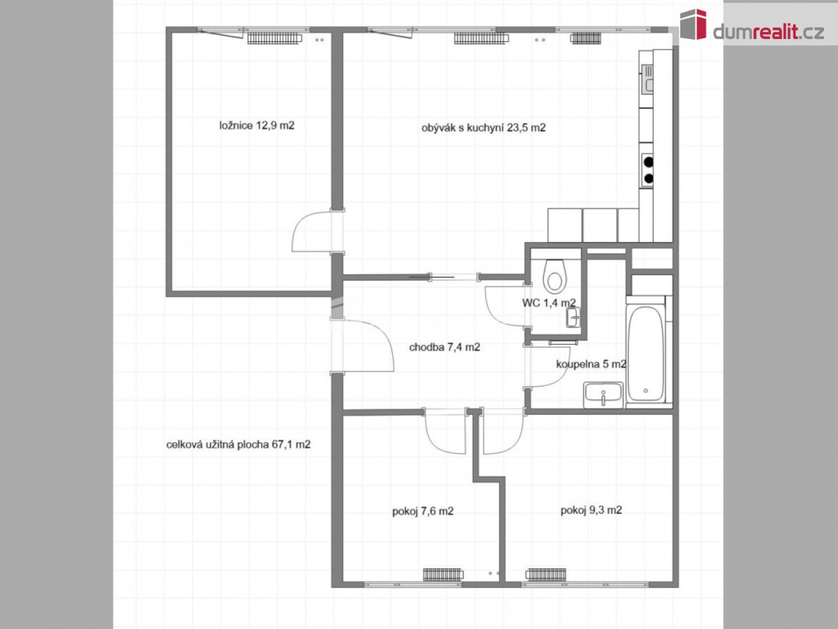
4+kk, 79 m2, panelová, OV, 2. podlaží
Popis:
prodej 4kk 79m² (byt 67m², lodzie celkem 12m²)P9 prosek, Mimoňská ulice. Byt po kompletní rekonstrukci včetně změny dispozice navržené a dozorované architektem, renovovaný panelový dům včetně výtahu v klidné ulici. Velmi... pěkná dispozice s centrální chodbou, obývacím pokojem spojeným s kuchyní, se třemi neprůchozími ložnicemi, koupelnou s vanou, samostatnou toaletou. Z obývacího pokoje a jedné z ložnic vstupy na dvě samostatné lodžie. Kuchyňská linka s vestavěnou myčkou, lednicí s mrazákem, indukční varnou deskou, horkovzdušnou troubou a odsavačem par. K rekonstrukci prováděné na klíč použity kvalitní materiály. K bytu patří komora na patře. V docházkové vzdálenosti veškeré služby, metro C Prosek. Doporučuji Ev. číslo: 650840. Energetický štítek: D
- Vložení inzerátu:
16.4.2025
- Kód:
3974198
- Typ nemovitosti:
Byt
- Typ budovy:
Panelová
- Dispozice:
4+kk
- Vlastnictví:
OV
- Podlaží:
2
- Podlahová plocha:
79 m2
- Balkón:
Ano
- Lodžie:
Ano
- Sklep:
Ano
- Stav objektu:
Po rekonstrukci
- Energetická náročnost:
D - Méne úsporná
- Nabídky v okolí:
Lokalita:
Mimoňská , Praha 9, Praha, Česká republika
Mimoňská, Praha 9, Praha