• Sledovat cenu
  •  

Zasílání upozornění emailem:

Prodej bytu 4+kk, 74 m2 - Tupolevova 893, Praha (již není v nabídce)

Cena: 6 950 000 Kč
Stav:archiv
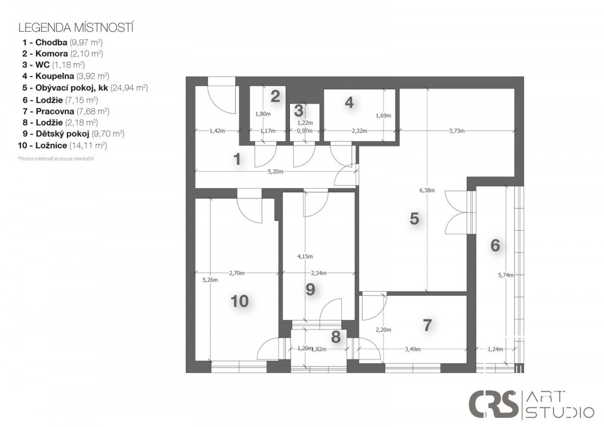
4+kk, 74 m2, cihlová, OV, 3. podlaží
Popis: Byt na prodej v osobním vlastnictví s dispozicí 4+kk, 73, 6 m2 + lodžie 7, 15 m2 a druhá lodžie 2, 18 m2 a komora umístěná mimo byt 3, 5 m2..., který je umístěn v 2. patře, 3. nadzemním podlaží moderního bytového domu,   který byl kolaudován v roce 2019. Dům je umístěn jen 1000 metrů od metra Letňany a 500 metrů od nákupní centra OC Letňany na adrese Tupolevova 893/14, Praha 9 - Letňany.
Byt obsahuje obývací prostor s kuchyňským koutem a jídelnou, tři pokoje, malou lodžii a velkou lodžii, sociální zařízení, chodbu, komoru v bytě a druhou komoru mimo byt na chodbě. V domě je výtah.  
Rovněž je zde velice dobrá dopravní obslužnost v pěší dostupnosti metra Letňany a nákupního centra OC Letňany.
V bytě jsou poškozené plovoucí podklady a vnitřní dveře, které je potřeba vyměnit. Cena bytu reflektuje tyto potřebné dodatečné investice.
Byt je v osobním vlastnictví a jeho nákup je možné financovat hypotéčním úvěrem.
  • Vložení inzerátu:
    19.2.2023
  • Kód:
    tupolevova.cz
  • Typ nemovitosti:
    Byt
  • Typ budovy:
    Cihlová
  • Dispozice:
    4+kk
  • Vlastnictví:
    OV
  • Podlaží:
    3
  • Podlahová plocha:
    74 m2
  • Lodžie:
    9 m2
  • Sklep:
    3 m2
  • Stav objektu:
    Velmi dobrý
  • Rok výstavby:
    2019
  • Rok kolaudace:
    2019
  • Umístění objektu:
    Centrum
  • Plyn:
    plynovod
  • Odpad:
    kanalizace
  • Energetická náročnost:
    B - Velmi úsporná
  • Nabídky v okolí:
  • Informace o obci:
    Obec Praha má 1257158 obyvatel, z toho 889974 v produktivním věku.
    V obci se nachází pošta.
    V obci se nachází škola, popř. školka.
    V obci se nachází zdravotní zařízení.
    V obci je rozvod kanalizace.
    V obci je rozvod městské vody.
    V obci je rozvod plynu.

Podobné nabídky v okolí

Lokalita: Tupolevova 893, Praha, Česká republika Tupolevova 893, Praha