• Sledovat cenu
  •  

Zasílání upozornění emailem:

Prodej bytu 4+kk, 314 m2 - Praha (již není v nabídce)

Cena: 18 990 000 Kč
Stav:archiv
4+kk, 314 m2, cihlová, OV, 1. podlaží
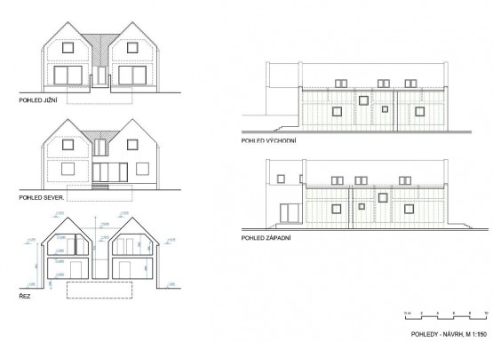
Popis: Ve spolupráci s developerem Vám nabízíme unikátní nemovitost, která propojuje výhody bydlení v rodinném domě a současně v údržbově nenáročné nemovitosti. Toužíte po vlastním domě v okrajové části Prahy, avšak nechcete do ú...držby investovat mnoho svého času a energie a rodinný dům je pro Vás jednoduše moc náročný? Přesně pro Vás je určena naše nabídka.

Nabízíme k prodeji moc hezký 2patrový byt v dispozici 4+KK o podlahové ploše 114m2, ke kterému náleží vlastní zahrada přes 200m2 (přesná plocha zahrady bude doplněna po zaměření geodetem) - to vše v připravované novostavbě tříbytového domu, v obci Běchovice (Praha 9). Tento byt je díky své dispozici ideální variantou pro rodiny s dětmi, jelikož se nachází v bezpečné a klidné lokalitě s blízkostí škol, parků a dalších atrakcí pro děti.
Jedná se o unikátní projekt pouze 3 bytových jednotek v rámci jednoho dvoupodlažního domu, přičemž každý byt bude rozdělen ve 2. podlažích, bude mít svoji vlastní oplocenou zahradu, prostornou terasu, soukromé parkování pro 2 vozy a zachováno bude naprosté soukromí. Právě lokalita a umístění tohoto projektu je obrovskou přidanou hodnotou této nabídky, neboť najdete jen málo podobně moc hezkých, útulných a bezpečných míst v této lokalitě a její staré zástavbě. Nabízená bytová jednotka č. 1 bude zhotovena v dispozici 4+KK:

V přízemí naleznete:
- prostorný obývací pokoj s kuchyňským koutem (33m2) a výstupem na terasu a zahradu
- terasu navazující na vlastní zahradu (17m2)
- zahradu o výměře cca 200 m2 (přesná plocha zahrady bude doplněna po zaměření geodetem)
- chodbu se vstupy do pokojů (7m2)
- koupelnu s sociální zařízení WC (4m2)
- technickou místnost (3 m2)
V patře pak budete mít:
- ložnici (11m2)
- ložnici (11m2)
- ložnici (16m2)
- chodbu se vstupy do pokojů (10m2)
- koupelnu s sociální zařízení WC (7m2)

K bytu budou patřit také 2 parkovací stání na vlastním pozemku. K užívání také společná předsíň se vstupy do všech bytů.
Možnost klientských změn v rámci vnitřního vybavení bytu. Kuchyňská linka není součástí.

Tento bytový dům bude zhotoven ve vysoké kvalitě a s použitím vysokého standardu. Vytápění bude zajištěno tepelným čerpadlem (vz - vo) a elektrická energie řešena pomocí fotovoltaiky. Jedná se tedy mimo jiné o energeticky soběstačnou stavbu, jejíchž nízké provozní náklady jistě v budoucnu oceníte. Voda z řádu, popřípadě vlastní studna na závlahu zahrad. Kanalizace v řádu.

Předpokládaná kolaudace a předání 4Q2023 - 1Q2024

Pozemek, na kterém tato stavba bude zhotovena, se nachází v klidné a málo frekventované ulici v Praze 9 - Běchovicích. tato lokalita je vyhledávána především pro její klid, mnoho zeleně a sportovišť, plnou občanskou vybavenost, velice rychlé spojení s centrem Prahy, ale také díky rychlému napojení na hlavní silniční tahy.

Financování prostřednictvím hypotečního úvěru Vám pomůžeme získat za nejvýhodnějších podmínek na trhu a to klidně i u Vámi preferované banky.

Tato nabídka je určena pro náročnou klientelu. Těšíme se na Váš kontakt
  • Vložení inzerátu:
    15.5.2023
  • Kód:
    0023
  • Typ nemovitosti:
    Byt
  • Typ budovy:
    Cihlová
  • Dispozice:
    4+kk
  • Vlastnictví:
    OV
  • Podlaží:
    1
  • Podlahová plocha:
    314 m2
  • Terasa:
    26 m2
  • Stav objektu:
    Novostavba
  • Umístění objektu:
    Klidná část
  • Plyn:
    plynovod
  • Odpad:
    kanalizace
  • Energetická náročnost:
    B - Velmi úsporná
  • Nabídky v okolí:
  • Informace o obci:
    Obec Praha má 1257158 obyvatel, z toho 889974 v produktivním věku.
    V obci se nachází pošta.
    V obci se nachází škola, popř. školka.
    V obci se nachází zdravotní zařízení.
    V obci je rozvod kanalizace.
    V obci je rozvod městské vody.
    V obci je rozvod plynu.

Podobné nabídky v okolí

Lokalita: Praha, Česká republika Praha