• Sledovat cenu
  •  

Zasílání upozornění emailem:

Prodej bytu 4+kk, 114 m2 - Nepilova, Beroun (již není v nabídce)

Cena: 9 991 356 Kč
Stav:archiv
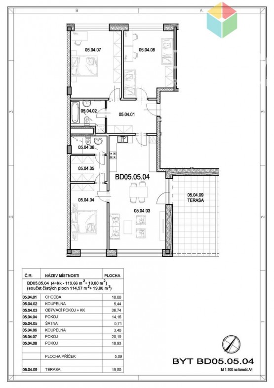
4+kk, 114 m2, OV, 5. podlaží
Popis: Nabízíme Vám k prodeji byt o výměře 114, 57 m2 s perfektní dispozicí. Najdeme v něm vše, co potřebuje moderní rodina - velký obývací pokoj s kuchyňským koutem a terasou, manželskou ložnici s šatnou a soukromou... koupelnou, další dva pokoje a druhou koupelnu.
Terasa má výměru 19, 8 m2 a je orientovaná na jihovýchod. Relaxovat se na ní dá v naprostém soukromí - to Vám zajistí poloha bytu - poslední - 5. nadzemní podlaží. V ceně bytu už je zahrnuto garážové stání v suterénu domu a sklepní koje na patře bytu.
Tento byt je součástí nové výstavby na západním okraji Berouna, jde o bytový dům se 42 byty - fasáda z ocelových profilů zakrývající podlaží s parkováním dodá stavbě unikátní vzhled.
Stavba byla zahájena a dokončení je plánováno do 2 let. Nyní je možné si vybrat z pestré nabídky bytů 2kk - 4kk a zarezervovat si svoje vysněné bydlení. Velká část ceny (70%) bude hrazena až po kolaudaci. Výhodou je, že v této fázi výstavby bude možnost vybírat si ze standardů nebo si domluvit klientské změny.
Jestli Vás nabídka zaujala, ozvěte se mi, ráda s Vámi proberu jak možnosti financování, tak všechny půdorysy bytů a jejich umístění v rámci patra.
Ještě trochu k lokalitě - ale místní vědí - žije se tu opravdu hezky, klienti z minulých etap výstavby jsou tu spokojeni. V dosahu je obchod Lidl i další supermarkety, sportovní centrum Eden, školy, školky, zastávka autobusu MHD i se spoji do Prahy, nájezd na dálnici vzdálen 1 km. Jsou tu možnosti k procházkám, dětské hřiště, v sousedství se staví nová školka, celkově je Beroun velice vyhledávané místo k bydlení.
  • Vložení inzerátu:
    7.2.2024
  • Kód:
    5755
  • K dispozici od:
    0.0.0
  • Typ nemovitosti:
    Byt
  • Dispozice:
    4+kk
  • Vlastnictví:
    OV
  • Podlaží:
    5
  • Podlahová plocha:
    114 m2
  • Terasa:
    19 m2
  • Sklep:
    Ano
  • Stav objektu:
    Velmi dobrý
  • Rok výstavby:
    2025
  • Rok kolaudace:
    2025
  • Umístění objektu:
    Okraj
  • Voda:
    dálkový vodovod
  • Doprava:
    dálnice, MHD, autobus
  • Topeni:
    ústřední dálkové
  • Odpad:
    kanalizace
  • Energetická náročnost:
    B - Velmi úsporná
  • Nabídky v okolí:
  • Informace o obci:
    Obec Beroun má 18794 obyvatel, z toho 12991 v produktivním věku.
    V obci se nachází pošta.
    V obci se nachází škola, popř. školka.
    V obci se nachází zdravotní zařízení.
    V obci je rozvod kanalizace.
    V obci je rozvod městské vody.
    V obci je rozvod plynu.

Podobné nabídky v okolí

Lokalita: Nepilova , Beroun, okres Beroun, Česká republika Nepilova, Beroun