• Sledovat cenu
  •  

Zasílání upozornění emailem:

Prodej bytu 4+kk, 109 m2 - České Budějovice (již není v nabídce)

Cena: 6 300 000 Kč
Stav:archiv
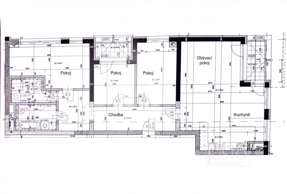
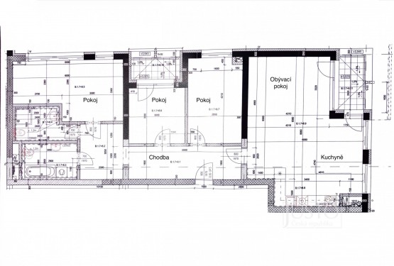
4+kk, 109 m2, cihlová, OV, 1. podlaží
Popis: Ve výhradním zastoupení majitele Vám nabízíme byt 4+kk o výměře cca 109 m² (118 m² podlahová plocha včetně vnitřních příček) v 1. zvýšeném nadzemním podlaží pětipodlažní novosta...vby zděného bytového domu U Lučního Jezu v Českých Budějovicích.

Nad rámec plochy bytu jsou dvě lodžie o výměrách cca 3, 5 m² a 4, 8 m². K bytu náleží i 18 m² garáž v podzemí. Z chodby se v bytě dostanete do všech 3 neprůchozích pokojů (jeden z nich má vstup na lodžii), do obou koupelen (každá má své sociální zařízení WC, v jedné je vana, v druhé sprchový kout) a do velkého obývacího pokoje propojeného s kuchyní. Kuchyni majitelé vybavili všemi potřebnými spotřebiči a praktický je ostrůvek se dvěma barovými židlemi. Z obývacího pokoje projdete na druhou lodžii.

Tato část Budějovic je velice klidná a tichá. U Vltavy najdete místo odpočinku a příjemné procházky, v letní sezóně se můžete svézt lodí až do centra města. V docházkové vzdálenosti máte nejen mateřskou a základní školu, nedaleko jsou i zastávky MHD, úřady, pošta, nemocnice a další nezbytná občanská vybavenost pro spokojené bydlení celé rodiny.

V galerii naleznete i kompletní 3D půdorys bytu a videoprohlídku. Některé realitní inzertní servery bohužel zveřejnění videa technicky neumožňují - v tomto případě Vám na vyžádání rádi video zašleme, stejně jako doplňující informace a přehled o měsíčních nákladech.

Pro více informací či sjednání konkrétního času prohlídky v rámci prohlídkového dne neváhejte kontaktovat realitního makléře, a to ve všední dny kdykoli od 9: 00h do 18: 00h. Na koupi bytu Vám pomůžeme sjednat financování.
  • Vložení inzerátu:
    15.2.2021
  • Kód:
    3175673
  • K dispozici od:
    30.4.2021
  • Typ nemovitosti:
    Byt
  • Typ budovy:
    Cihlová
  • Dispozice:
    4+kk
  • Vlastnictví:
    OV
  • Podlaží:
    1
  • Podlahová plocha:
    109 m2
  • Lodžie:
    8 m2
  • Stav objektu:
    Novostavba
  • Bezbariérový byt:
    Ano
  • Umístění objektu:
    Klidná část
  • Telekomunikace:
    Internet
  • Topeni:
    ústřední dálkové
  • Bezbariérový přístup:
    Ano
  • Energetická náročnost:
    B - Velmi úsporná
  • Ukazatel náročnosti:
    68 kWh/m2
  • Nabídky v okolí:
  • Informace o obci:
    Obec České Budějovice má 94754 obyvatel, z toho 66302 v produktivním věku.
    V obci se nachází pošta.
    V obci se nachází škola, popř. školka.
    V obci se nachází zdravotní zařízení.
    V obci je rozvod kanalizace.
    V obci je rozvod městské vody.
    V obci je rozvod plynu.

Podobné nabídky v okolí

Lokalita: České Budějovice, okres České Budějovice, Česká republika České Budějovice, Jihočeský kraj