• Sledovat cenu
  •  

Zasílání upozornění emailem:

Prodej bytu 4+kk, 103 m2 - Veletržní, Praha 7, Praha (již není v nabídce)

Cena: 9 500 000 Kč
Stav:archiv
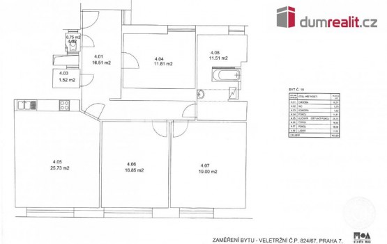
4+kk, 103 m2, cihlová, OV, 5. podlaží
Popis: Dumrealit. cz Vám nabízí prodej bytu 4+kk, 103, 68m², v cihlovém domě včetně výtahu v 5. nadzemním podlaží, ul. : Veletržní, Praha 7. Jedná se o byt před kompletní rekonst...rukcí, s možností vlastní úpravy dispozice. Dispozice bytu umožňuje velké samostatné pokoji přístupné z bytové chodby. Dále u plánované ložnice rodičů se počítá s vlastní druhou koupelnou, nebo velkou šatnou. Ostatní pokoje mají velikosti cca 20m². Dva samostatné pokoje a obývací pokoj s kuchyňským koutem mají orientaci na sever a ložnice na jih. Díky vysokým stropům je možné v pokojích vybudovat i například patra na spaní. Dům je po rekonstrukci výtahu, společných prostor, fasády, stoupaček a odpadů. Dům se nachází v horní části ul. : Veletržní, s kompletní infrastrukturou v okolí i díky nově otevřenému OD Stromovka. Dále jsou zde v dochozí vzdálenosti parky Stromovka a Letná. Základní škola a mateřská školka jsou cca 5mín. od domu. Ev. číslo: 642824. Energetický štítek: G (296 kWh/m2/rok).
  • Vložení inzerátu:
    15.9.2023
  • Kód:
    3678577
  • Typ nemovitosti:
    Byt
  • Typ budovy:
    Cihlová
  • Dispozice:
    4+kk
  • Vlastnictví:
    OV
  • Podlaží:
    5
  • Podlahová plocha:
    103 m2
  • Sklep:
    Ano
  • Stav objektu:
    Před rekonstrukcí
  • Energetická náročnost:
    G - Mimořádne nehospodárná
  • Ukazatel náročnosti:
    296 kWh/m2
  • Nabídky v okolí:

Podobné nabídky v okolí

Lokalita: Veletržní , Praha 7, Praha, Česká republika Veletržní, Praha 7, Praha