Prodej bytu 4+1, 97 m2 - Šalounova 1, Praha
            
            
                
  Cena:
          5 000 000 Kč
    
          Stav:Volný
    
   
     
         
         
         4+1, 97 m2, panelová, družstevní, 4. podlaží      
        
        Popis:
      
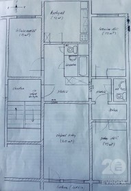
                      Naše společnost nabízí ve výhradním zastoupení 1. majitele bytu 4+1 s užitnou plochou 97 m2 ve 4. NP (čtvrté nadzemní patro) panelového domu z roku 1985.  Dispoziční řešení:...  obývací pokoj,  2 ložnice,  dětský pokoj,  kuchyň,  koupelna,  2 krát  samostatné sociální zařízení WC,  předsíň,  zasklená lodžie a sklep.  Byt je po částečné rekonstrukci v původním a zachovalém stavu (kuchyň a koupelna).  Spousta úložného prostoru a k bytu náleží sklep umístěný v 1.  PP.  Dům je umístěn v klidné části Prahy 4  -  Chodov,  je nově zateplen,  stoupačky (vertikální svody) v plastu a rekonstruovaná střecha.  Na bytu je splacená anuita,  Převést byt do OV (osobní vlastnictví) do dvou let. .  Předností nabídky je možnost přizpůsobit dispozici bytu dle potřeb,  veškerá občanská vybavenost,  možnost kulturního i sportovního vyžití a velice dobrá dopravní dostupnost jak do centra města,  tak i ven z Prahy.  Metro C  Opatov jen 7 min.  chůze.  V blízkosti je centrální park a nedaleký Miličovský les.  Parkování možné před domem nebo hlídané parkoviště jen 30m.   S financováním vám rádi pomůžeme.  Doporučujeme Vám prohlídku. 
           
          
    - Vložení inzerátu:24.4.2018  
- Kód:43229  
- K dispozici od:0.0.0  
- Typ nemovitosti:Byt  
- Typ budovy:Panelová  
- Dispozice:4+1  
- Vlastnictví:Družstevní  
- Podlaží:4  
- Podlahová plocha:97 m2 
- Stav objektu:Velmi dobrý  
- Umístění objektu:Klidná část  
- Odpad:kanalizace  
- Energetická náročnost:C - Úsporná  
- Nabídky v okolí:
- Informace o obci:Obec Praha má 1257158 obyvatel, z toho 889974 v produktivním věku.
 V obci se nachází pošta.
 V obci se nachází škola, popř. školka.
 V obci se nachází zdravotní zařízení.
 V obci je rozvod kanalizace.
 V obci je rozvod městské vody.
 V obci je rozvod plynu.
 
 
 
    Lokalita:
    
        Šalounova 1, Praha, Česká republika
        
                                                                                                                                                                                                                                                                    Šalounova 1, Praha