• Sledovat cenu
  •  

Zasílání upozornění emailem:

Prodej bytu 4+1, 84 m2 - České Budějovice (již není v nabídce)

Cena: 4 180 000 Kč
Stav:archiv
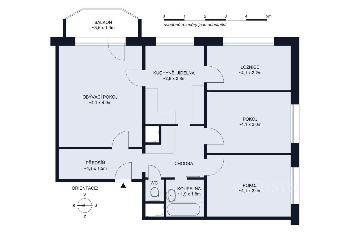
4+1, 84 m2, panelová, OV, 2. podlaží
Popis: Lodžie pro chvíle klidu. 3 samostatné pokoje a k tomu obývák. Celková plocha bytu 79, 75 m² a k tomu ještě sklep. Perfektní poloha bytu v ulici Fr. Ondříčka. Cena lehce přes 4 miliony a velice rozumné náklady na tak velk...ý byt. Pokud Vás byt 4+1 v osobním vlastnictví zaujal, čtěte určitě dál.

Ceněná dispozice 4+1

Ve výhradním zastoupení majitelů Vám nabízíme byt, který už je současným majitelům a jejich početné rodině malý. Vám by ale vyhovovat mohl – ta jedna místnost navíc oproti 3+1 se vždycky hodí. Sice jde o menší místnost (cca 8, 7 m²), ale jako ložnice, pracovna, pokoj pro hosty, anebo třeba velká šatna/komora poslouží báječně.

Hodně úložných prostor

Majitelé si vybavení vezmou do svého nového domova. S novou pěknou kuchyní ale počítat určitě můžete. Stejně jako s vestavěnou skříní v předsíni a s praktickým policovým systémem v chodbě okolo pračky a sušičky.

Lokalita je a vždy bude to nejdůležitější

Z obýváku se dostanete přímo na novou lodžii (cca 4, 5 m²). Odtud uvidíte své menší děti, jak si venku hrají a vyhlížet můžete večer ty starší, jak se vrací později, než by měly.
Do Kauflandu na nákup dojdete za pár minut, nový supermarket je přes silnici. Na zastávku Vltava - střed to máte jen pár desítek metrů (linky 5, 9 a další). Zaparkujete tu vcelku dobře. Na „poměry Budějc“ by se dalo říct „velice dobře“. Do školky a na základku nemusíte kupovat lístek do MHD, ani startovat auto. Obě školy budete mít v docházkové vzdálenosti od bytu.

Trocha technických informací

Společenství vlastníků nechalo celý dům zateplit. Svezete se v novém výtahu a i společné prostory vypadají moc hezky. Přízemí domu je vytápěné a stropy v přízemí jsou zateplené polystyrenem. Tak nemusíte mít obavu, že Vás v zimě bude v bytě studět od nohou. Bytové jádro je už předělané (žádný umakart), a to včetně rozvodů elektřiny. V části bytu je sice původní rozvod elektřiny, ale majitelé ho nechali zodpovědně zkontrolovat elektrikářem. Vše funguje bezvadně

Majitelé uvítají zájemce o koupi, který je v bytě ponechá bydlet ještě 1 měsíc po převedení bytu v katastru nemovitostí.

Podívejte se na virtuální prohlídku. Tam si můžete byt z domova projít krok po kroku. Pokud ji u inzerátu nevidíte, stačí napsat.
Vyplňte prosím formulář u inzerátu. Dostanete odpověď s veškerými informacemi do 20 minut na e - mail, který uvedete. (Zkontrolujte si, prosím, i složky "Spam" a "Nevyžádaná pošta". Občas se tam e - mail může zatoulat. ).
  • Vložení inzerátu:
    20.11.2023
  • Kód:
    3710841
  • Typ nemovitosti:
    Byt
  • Typ budovy:
    Panelová
  • Dispozice:
    4+1
  • Vlastnictví:
    OV
  • Podlaží:
    2
  • Podlahová plocha:
    84 m2
  • Lodžie:
    4 m2
  • Sklep:
    2 m2
  • Stav objektu:
    Velmi dobrý
  • Umístění objektu:
    Klidná část
  • Telekomunikace:
    Internet
  • Topeni:
    ústřední dálkové
  • Energetická náročnost:
    C - Úsporná
  • Ukazatel náročnosti:
    82 kWh/m2
  • Nabídky v okolí:
  • Informace o obci:
    Obec České Budějovice má 94754 obyvatel, z toho 66302 v produktivním věku.
    V obci se nachází pošta.
    V obci se nachází škola, popř. školka.
    V obci se nachází zdravotní zařízení.
    V obci je rozvod kanalizace.
    V obci je rozvod městské vody.
    V obci je rozvod plynu.

Podobné nabídky v okolí

Lokalita: České Budějovice, okres České Budějovice, Česká republika České Budějovice, Jihočeský kraj