• Sledovat cenu
  •  

Zasílání upozornění emailem:

Prodej bytu 4+1, 82 m2 - nám. Republiky, Neratovice, okr. Mělník (již není v nabídce)

Cena: 5 190 000 Kč
Stav:archiv
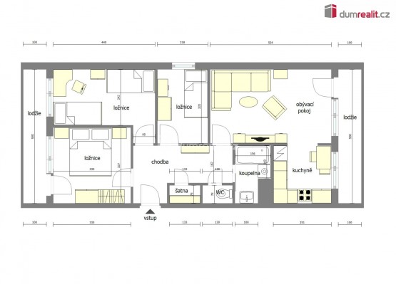
4+1, 82 m2, panelová, družstevní, 6. podlaží
Popis: Dumrealit. cz Vám nabízí prodej družstevního bytu o dispozici 4+1 se dvěmi lodžiemi. Byt se nachází v šestém nadzemním podlaží sedmipatrového panelového domu stojícím v centru města. ... Dům byl v nedávné době kompletně revitalizován, byla opravena střecha, nové výtahy, vyměněny stoupačky (vertikální svody), původní, dřevěná okna byla vyměněna za plastová, nový vstup do domu, schránky a zvonky. Dům byl zateplen opatřen novou fasádou. Byt má zděné jádro je čistý, udržovaný. Dispozici bytu tvoří obývací pokoj spojený s kuchyní, tři ložnice, koupelna se sprchovým koutem, samostatné sociální zařízení WC, komora a předsíň. K příslušenství bytu patří dvě lodžie a sklep v suterénu domu. Byt má plovoucí podlahy, dlažbu na chodbě, v koupelně a sociální zařízení WC, prosklené dveře. Byt je vyhříván UT napojeným na dálkový rozvod tepla. V docházkové vzdálenosti 5 - 10 minut je Tesco, Billa, Lidl, Albert, DM, . . restaurace. Výborné spojení s Prahou (PID+vlak), Mělníkem (autobus), Brandýsem a Čelakovicemi (vlak). V Neratovicích se nachází veškerá občanská vybavenost, poliklinika, nemocnice, plavecký bazén, koupaliště, kino, školy, školky, gymnazium, učňovské středisko ve Spolaně, obchodní akademie, velké množství mimopracovních a mimoškolních aktivit. Byt bude uvolněn po zajištění náhradního bydlení, nebo je možná výměna (s doplatkem) za byt 2+kk nebo 2+1. Prodávající si vyhrazuje právo vybrat zájemce na základě jím zvolených kritérií. V souladu s platným zákonem je nemovitost dočasně, do předložení Průkazu energetické náročnosti, zařazena do energetické třídy G. V případě zájmu o koupi nebo více informací k uvedené nemovitosti neváhejte kontaktovat makléře RK. Ev. číslo: 649806. Energetický štítek: D
  • Vložení inzerátu:
    13.1.2025
  • Kód:
    3912052
  • Typ nemovitosti:
    Byt
  • Typ budovy:
    Panelová
  • Dispozice:
    4+1
  • Vlastnictví:
    Družstevní
  • Podlaží:
    6
  • Podlahová plocha:
    82 m2
  • Lodžie:
    Ano
  • Sklep:
    Ano
  • Stav objektu:
    Velmi dobrý
  • Energetická náročnost:
    D - Méne úsporná
  • Nabídky v okolí:
  • Informace o obci:
    Obec Neratovice má 16414 obyvatel, z toho 11914 v produktivním věku.
    V obci se nachází pošta.
    V obci se nachází škola, popř. školka.
    V obci se nachází zdravotní zařízení.
    V obci je rozvod kanalizace.
    V obci je rozvod městské vody.
    V obci je rozvod plynu.

Podobné nabídky v okolí

Lokalita: nám. Republiky , Neratovice, okres Mělník, Česká republika nám. Republiky, Neratovice, okr. Mělník