• Sledovat cenu
  •  

Zasílání upozornění emailem:

Prodej bytu 4+1, 76 m2 - V Zálomu, Ostrava, okr. Ostrava-město

Cena: 5 189 000 Kč
Stav:Volný
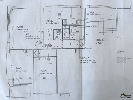
4+1, 76 m2, panelová, družstevní, 3. podlaží
Popis: Nabízím vám ke koupi velice hezký, světlý a vzdušný družstevní byt o dispozici 4+1 a podlahové ploše 76 m², který se nachází ve 3. NP (třetí nadzemní patro)/8. NP (osmé nadzemní patr...o) v Ostravě - Zábřehu na ulici V Zálomu.
Byt prošel kompletní a velice vkusnou rekonstrukci, díky které působí moderně, čistě a k nastěhování ihned a to bez dalších investic. Velkou výhodou je i případné přenechání veškerého vybavení bytu.

Už při vstupu vás zaujme prostorná chodba, která vytváří příjemný pocit a která krásně propojuje celý byt. Dispozice nabízí tři samostatné pokoje, samostatnou jídelnu a oddělenou kuchyň s moderní a velice pěknou kuchyňskou linkou včetně spotřebičů. Dominantou bytu je světlý a prostorný obývací pokoj, který propojuje celý byt.
Výhodou je i částečné podlahové topení. Součástí bytu je i zasklená lodžie a sklepní kóje.

Dům je po kompletní revitalizaci – nová fasáda, zateplení a upravené společné prostory včetně širokých, komfortních vstupních chodeb. To výrazně zvyšuje komfort bydlení i energetickou úsporu. Dále vchod disponuje kamerovým systémem.

Lokalita nabízí výbornou občanskou vybavenost – v docházkové vzdálenosti jsou školy, školky, MHD i vlak. Velkým benefitem je blízkost řeky Odry, ideální pro každodenní procházky, běh nebo relax.

Díky dispozici i poloze je byt ideální volbou jak pro větší rodinu, tak pro páry, kteří hledají pohodlné a prostorné bydlení v příjemné části města.

Tento byt je skutečně pěkný — kombinace světlého prostoru, kompletní rekonstrukce, skvělého patra a lokality jej staví mezi atraktivní nabídky na trhu. Doporučuji osobní prohlídku, opravdu stojí za to.
  • Vložení inzerátu:
    9.12.2025
  • Kód:
    00623
  • K dispozici od:
    0.0.0
  • Typ nemovitosti:
    Byt
  • Typ budovy:
    Panelová
  • Dispozice:
    4+1
  • Vlastnictví:
    Družstevní
  • Podlaží:
    3
  • Podlahová plocha:
    76 m2
  • Lodžie:
    Ano
  • Stav objektu:
    Velmi dobrý
  • Bezbariérový byt:
    Ano
  • Umístění objektu:
    Sídliště
  • Telekomunikace:
    Internet
  • Voda:
    dálkový vodovod
  • Elektřina:
    230 V
  • Doprava:
    silnice, MHD, autobus, vlak
  • Topeni:
    ústřední dálkové
  • Komunikace:
    asfaltová
  • Zařízený:
    Ano
  • Bezbariérový přístup:
    Ano
  • Energetická náročnost:
    G - Mimořádne nehospodárná
  • Nabídky v okolí:
  • Informace o obci:
    Obec Ostrava má 303609 obyvatel, z toho 212976 v produktivním věku.
    V obci se nachází pošta.
    V obci se nachází škola, popř. školka.
    V obci se nachází zdravotní zařízení.
    V obci je rozvod kanalizace.
    V obci je rozvod městské vody.
    V obci je rozvod plynu.
Lokalita: V Zálomu , Ostrava, okres Ostrava-město, Česká republika V Zálomu, Ostrava, okr. Ostrava-město

Kontakt

Bc. Monika Jančová



  • Objednání prohlídky a více informací
  •  
  • Poslat na e-mail
  •  

Zasílání odkazu na realitu emailem: