• Sledovat cenu
  •  

Zasílání upozornění emailem:

Prodej bytu 4+1, 125 m2 - Ruská, Mariánské Lázně, okr. Cheb (již není v nabídce)

Cena: 8 490 000 Kč
Stav:archiv
4+1, 125 m2, cihlová, OV, 4. podlaží
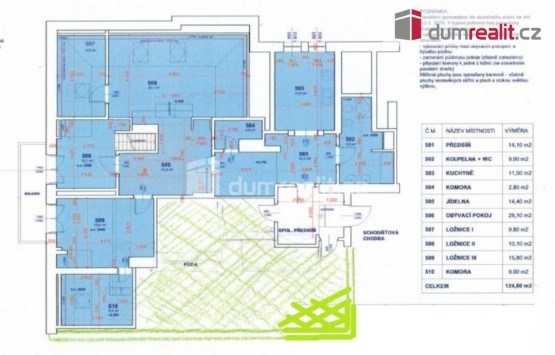
Popis: Dumrealit. cz Vám nabízí koupi vyjímečné mezonetové bytové jednotky vystavěné ve čtvrtém patře cihlového domu, kde je stále možnost rozšíření o dalších cca 100 m². Byt disponuje balkonem a do roka se zde počítá včetně výtah...u. Byt vznikl přestavbou a rekonstrukcí půdních prostor a na rozloze 125 m² nabízí dispozici 4+1: vchod zabezpečený mříží nás uvede do menší společné předsíně (kde za jedněmi dveřmi je půda o rozloze přes 100 m², za druhými italskými masivními dveřmi je samotný byt). Již za dveřmi je zřejmé, že majitelé mají svou představu o bydlení. Nádherné kousky nábytku a masivní dveře italské výroby (masivní pozlacená komoda z katalogu nábytek a la Ludwig 14, křišťálové lustry, ikony atd. ) mohou některé po dohodě zůstat. Obývací pokoj spojený s kuchyňským koutem působí útulně, kuchyně je samostatná, dále je zde ložnice, pracovna, odkud vedou schody do menší ložnice a pokoj by byl ideálním útočištěm pro děti, které milují schovky a zašívárny. Z chodby vcházíme do druhé ložnice se zelenými tapetami a balkonem (balkon je přístupný také z pracovny). Tato ložnice má svou šatnu a tudy by se dal byt rozšířit o vedlejší půdu. Dále je v bytě koupelna se dvěma umyvadly, pračkou a sušičkou, vanou toaletou a bidetem. Místo špajzky (úložných prostor je v bytě i tak dostatek) by se dala vybudovat eventuálně samostatná toaleta se sprchou a vznikla by tak další koupelna. Vedlejší půda, kam má majitel zřízeno věcné břemeno přístupu, slouží nyní jako dílna, úložný prostor a nikdo z ostatních obyvatel domu sem nechodí. Od SVJ by se půda dala dokoupit za pouhých cca 300. 000, - Kč. Vytápění bytu je nyní na elektriku (elektrické akumulačky), do domu je však zaveden plyn, tedy topení je možné předělat na plynový kotel. Z balkonu bytu je moc hezký výhled do okolí, naproti je hotel Falkensteiner, kostel, Gymnázium, za domem je lesopark. Mariánské Lázně jsou úžasné místo pro život i odpočinek, jsou prošpikované sítí turistických, cyklistických a běžkařských tras. Sportovcům je k dispozici plavecký bazén, fitness, golf, lyžařská sjezdovka s lanovkou. Město se světoznámou kolonádou se zpívající fontánou jsou od roku 2021 na seznamu UNESCO a pyšní se též titulem klimatické lázně. V okolí jsou kromě parků a pramenů výletní cíle: Medvědí pramen, Krakonoš a rozhledna Hamelika, Geologický park, obůrka Hvozd s daňky a jeleny, rašeliniště a naučná stezka Kladská, státní zámek Kynžvart a klášter Teplá, blízké klimatické Lázně Kynžvart a mnohé další. V případě zájmu doporučíme naše prověřené finanční poradce. Cena zahrnuje provizi RK a veškerý právní servis. Ev. číslo: 646300. Energetický štítek: G (40 kWh/m2/rok).
  • Vložení inzerátu:
    28.3.2024
  • Kód:
    3772950
  • Typ nemovitosti:
    Byt
  • Typ budovy:
    Cihlová
  • Dispozice:
    4+1
  • Vlastnictví:
    OV
  • Podlaží:
    4
  • Podlahová plocha:
    125 m2
  • Balkón:
    Ano
  • Terasa:
    Ano
  • Stav objektu:
    Dobrý
  • Zařízený:
    Ano
  • Energetická náročnost:
    G - Mimořádne nehospodárná
  • Ukazatel náročnosti:
    40 kWh/m2
  • Nabídky v okolí:
  • Informace o obci:
    Obec Mariánské Lázně má 13587 obyvatel, z toho 9465 v produktivním věku.
    V obci se nachází pošta.
    V obci se nachází škola, popř. školka.
    V obci se nachází zdravotní zařízení.
    V obci je rozvod kanalizace.
    V obci je rozvod městské vody.
    V obci je rozvod plynu.

Podobné nabídky v okolí

Lokalita: Ruská , Mariánské Lázně, okres Cheb, Česká republika Ruská, Mariánské Lázně, okr. Cheb