• Sledovat cenu
  •  

Zasílání upozornění emailem:

Prodej bytu 3+kk, 87 m2 - Mlýnská, Luhačovice, okr. Zlín

Cena: 7 990 000 Kč
Stav:Volný
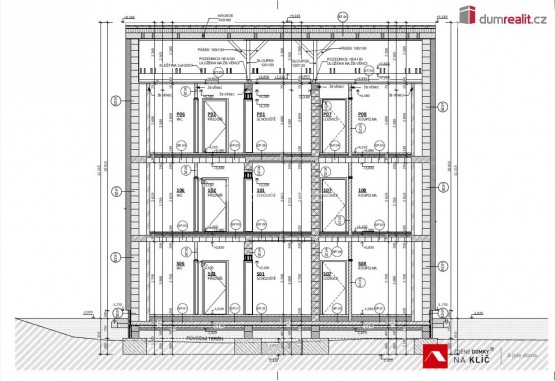
3+kk, 87 m2, cihlová, OV, 1. podlaží
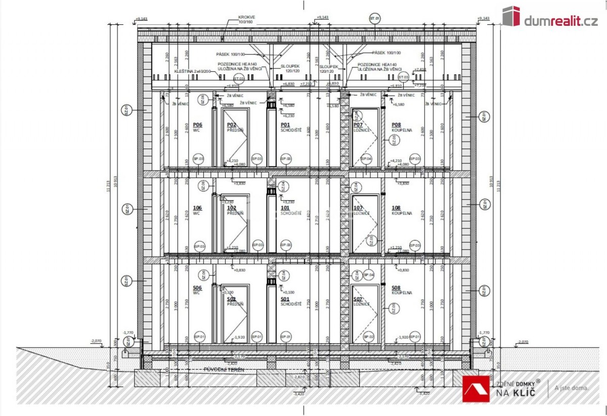
Popis: Cena včetně výstavby bytu, kolaudace, pozemku, terasy, parkování a zahrady. . Dumrealit. cz Vám nabízí exkluzivní nabídku výstavby prostorného bytu 3+kk na klíč v Luhačovicí...ch s terasou, zahradou a parkovacím stáním.
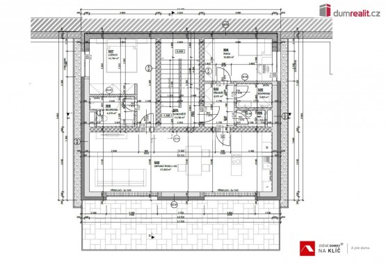
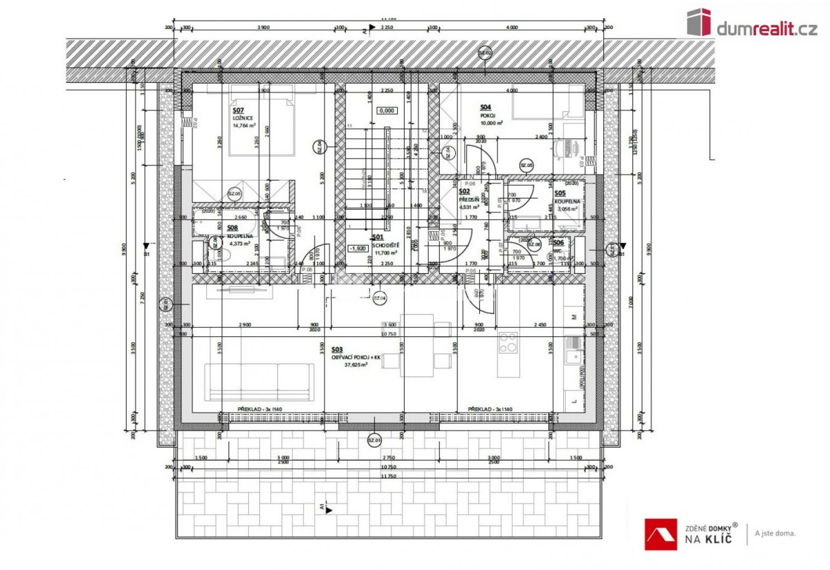
Máme pro vás jedinečnou příležitost vlastnit luxusní byt 3+kk o podlahové výměře 87, 75 m² v centru Luhačovic s terasou o rozloze 30 m² a soukromou zahradou o velikosti 150 m².
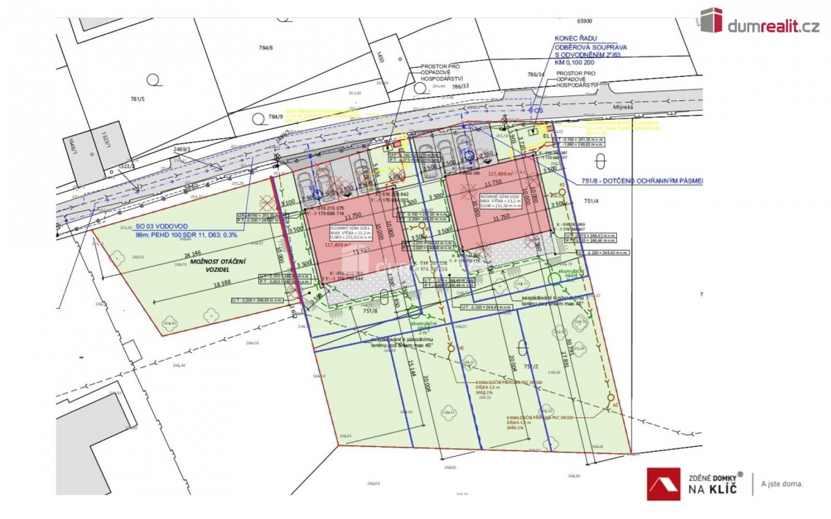
Tento moderní byt bude situován v nově vznikající tří podlažní budově ve spodní části se vstupem na terasu. Výhodou je vlastní parkovací stání o rozloze 15 m². Součástí ceny je také třetinový podíl na okolních a zastavěných pozemcích.
Byt je navržen pro klienty, kteří ocení kvalitní provedení a prostorné interiéry. Dispozice bytu je ideální pro rodinu či páry, kteří hledají moderní a komfortní bydlení v centru Luhačovic.
Obývací pokoj s kuchyňským koutem o velikosti 38m² byl navržen tak, aby navazoval na prostornou terasou 30 m² a zároveň na vlastní zahradu 150 m².
Dispozice dále nabízí ložnici 15 m² a dětský pokoj 10 m², samozřejmostí jsou také dvě samostatné koupelny s sociální zařízení WC + další samostatné sociální zařízení WC.
Nabízíme vám možnost bydlení spojené s pohodlím v samém centru Luhačovic a zároveň se skvělou dostupností všech služeb. Nechte se okouzlit krásou Luhačovic a zainvestujte do svého vlastního bydlení.
Buďte první, kdo využije této jedinečné nabídky! Fotografie interiéru jsou pouze ilustrativní. Pro více informací nás neváhejte kontaktovat. Ev. číslo: 653928. Energetický štítek: A (49 kWh/m2/rok).
  • Vložení inzerátu:
    16.2.2026
  • Kód:
    4116917
  • Typ nemovitosti:
    Byt
  • Typ budovy:
    Cihlová
  • Dispozice:
    3+kk
  • Vlastnictví:
    OV
  • Podlaží:
    1
  • Podlahová plocha:
    87 m2
  • Terasa:
    Ano
  • Stav objektu:
    Ve výstavbě
  • Energetická náročnost:
    A - Mimoˇrádne úsporná
  • Ukazatel náročnosti:
    49 kWh/m2
  • Nabídky v okolí:
  • Informace o obci:
    Obec Luhačovice má 5247 obyvatel, z toho 3660 v produktivním věku.
    V obci se nachází pošta.
    V obci se nachází škola, popř. školka.
    V obci se nachází zdravotní zařízení.
    V obci je rozvod kanalizace.
    V obci je rozvod městské vody.
    V obci je rozvod plynu.
Lokalita: Mlýnská , Luhačovice, okres Zlín, Česká republika Mlýnská, Luhačovice, okr. Zlín

Kontakt

Radim Vacula


Podobné nabídky v okolí


  • Objednání prohlídky a více informací
  •  
  • Poslat na e-mail
  •  

Zasílání odkazu na realitu emailem: