• Sledovat cenu
  •  

Zasílání upozornění emailem:

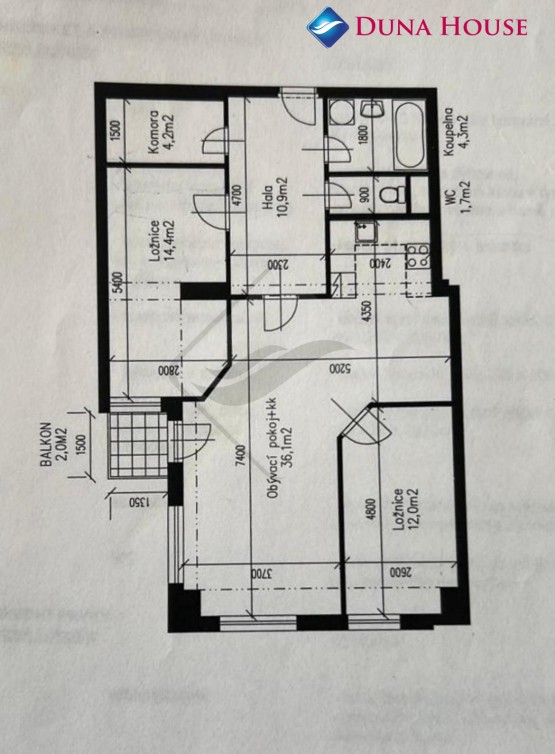
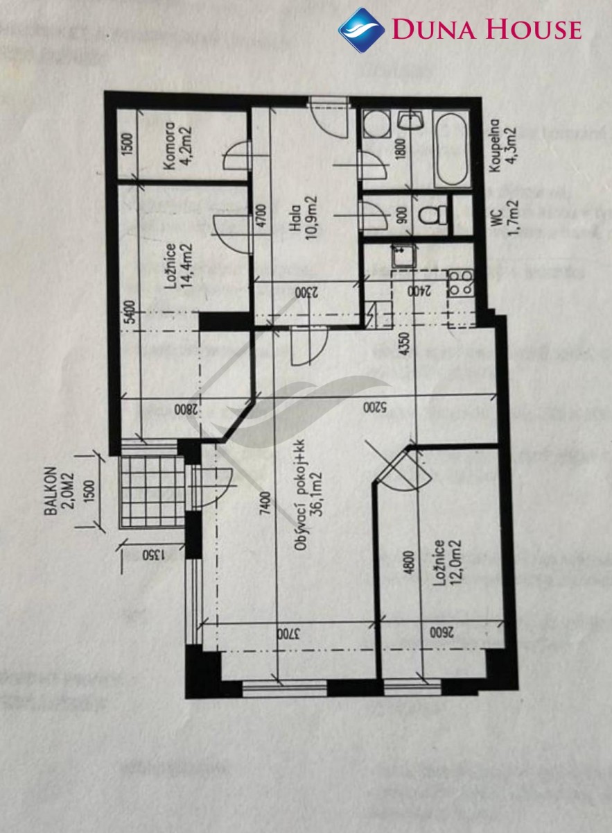
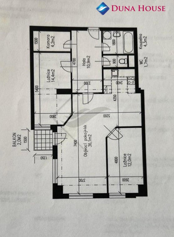
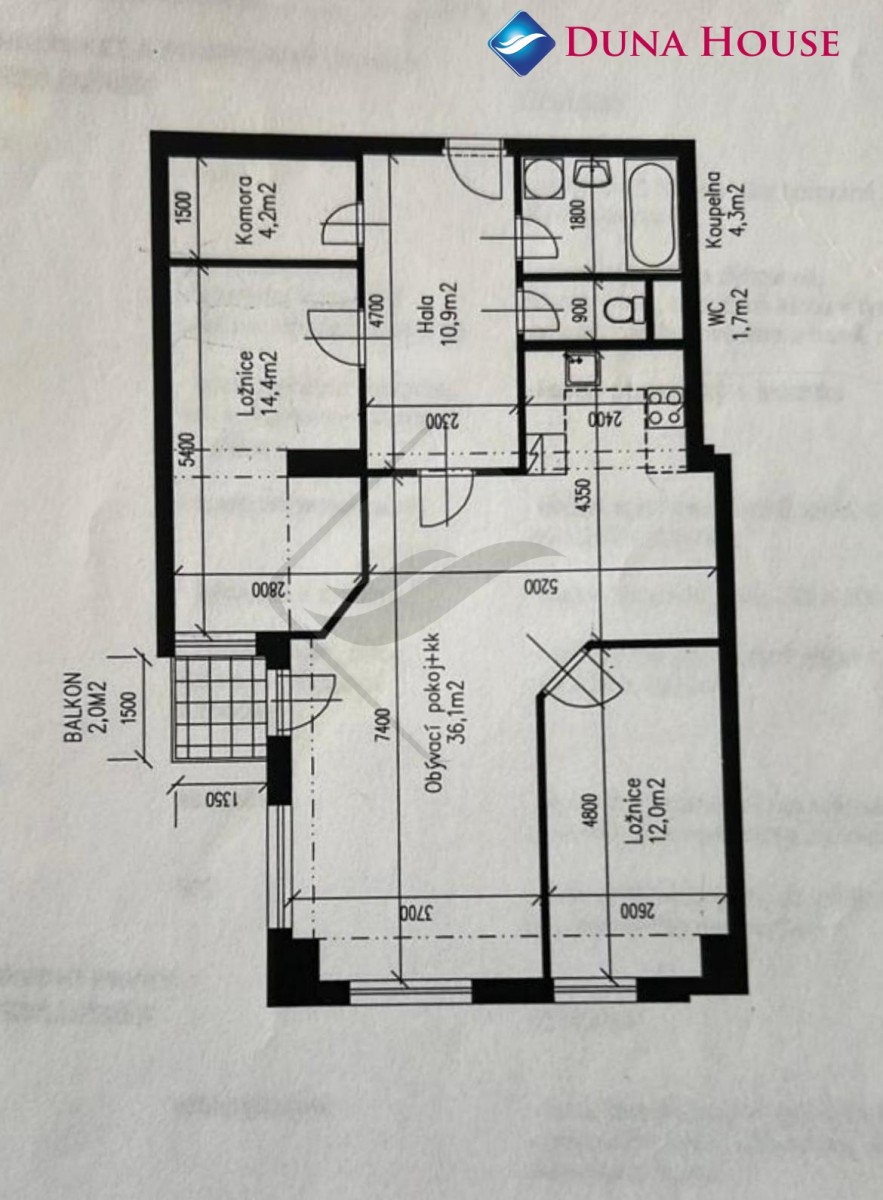
Prodej bytu 3+kk, 83 m2 - Praha 9, Praha

Cena: 8 900 000 Kč
Stav:Volný
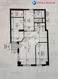
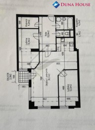
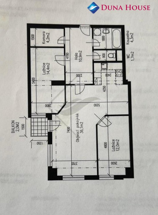
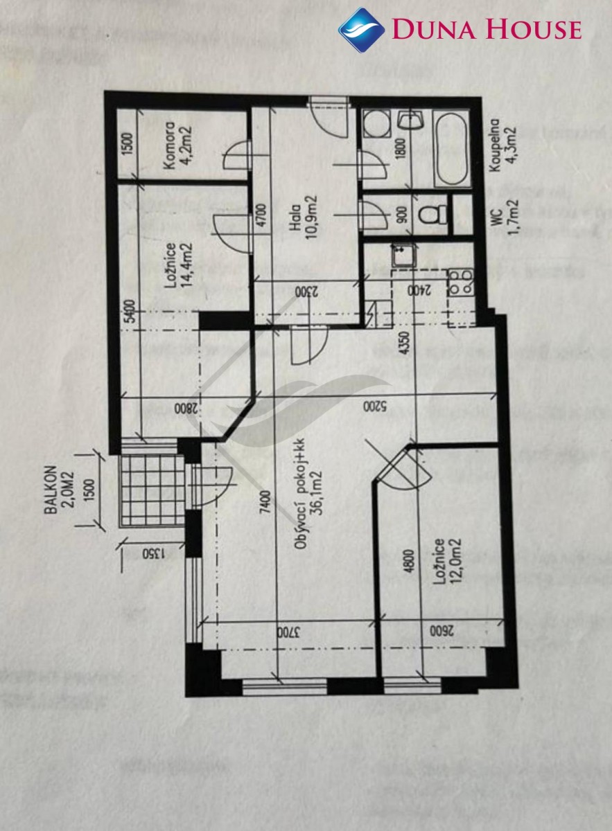
3+kk, 83 m2, OV, 5. podlaží
Popis: Nabízíme Vám k prodeji byt 3 + kk s balkonem. Výměra bytu je 83 m2, balkon 6 m2.

Byt je v osobním vlastnictví a nachází se v pátém patře novostavby z roku 2012.

K bytu náleží garážové stání v sute...rénu domu.

Na podlahách je plovoucí podlaha, v předsíni, kuchyni, na toaletě a v koupelně keramická dlažba.

V okolí domu je veškerá občanská vybavenost, nedaleko domu je autobusová zastávka.

Doporučujeme.
Lokalita: Praha 9, Praha, Česká republika Praha 9, Praha, Praha


Podobné nabídky v okolí


Volná pracovní místa ExpertPrace.cz
  • Objednání prohlídky a více informací
  •  
  • Poslat na e-mail
  •  

Zasílání odkazu na realitu emailem: