• Sledovat cenu
  •  

Zasílání upozornění emailem:

Prodej bytu 3+kk, 83 m2 - Žofie Podlipské 887, Ostrava, okr. Ostrava-město

Cena: 4 730 000 Kč
Stav:Volný
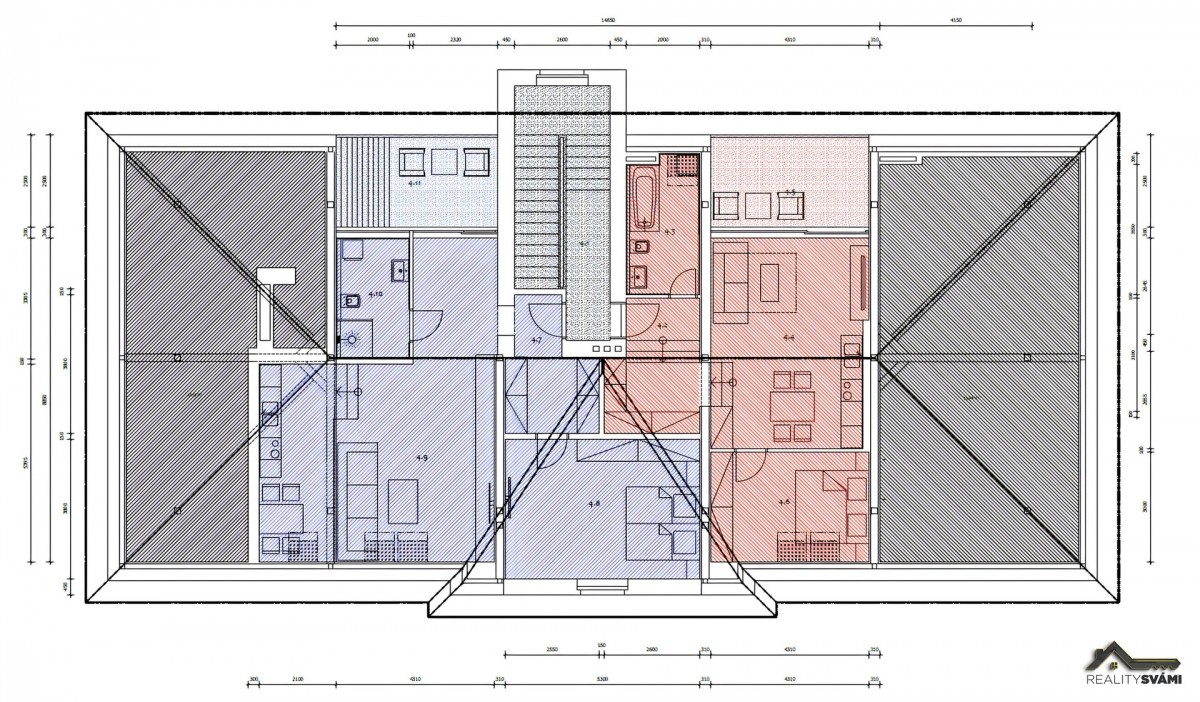
3+kk, 83 m2, cihlová, OV, 2. podlaží
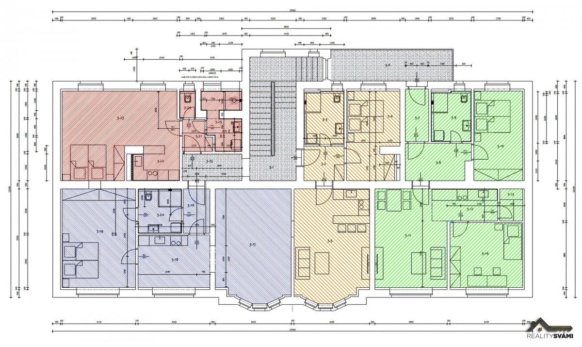
Popis: Nabízíme k prodeji samostatně celkem 7 zbývajících bytů ze 14ti v „Residenci Paleček“ v klidné, ale zároveň skvěle dostupné lokalitě Ostravy.
Residence Paleček kombinuje historický charakter cihlové fasády s moderními techn...ologiemi a vybavením. Nemovitost je vhodná jako dlouhodobá investice s možností stabilních výnosů z pronájmu nebo postupného odprodeje jednotlivých bytů či k vlastnímu bydlení. Atraktivní lokalita s rostoucí hodnotou nemovitostí a nízkými náklady na bydlení. V nabídce domu máte na výběr hned 2 bytové jednotky 3kk v 1. a 2. NP (druhé nadzemní patro).

Objekt se nachází na ulici Žofie Podlipské.
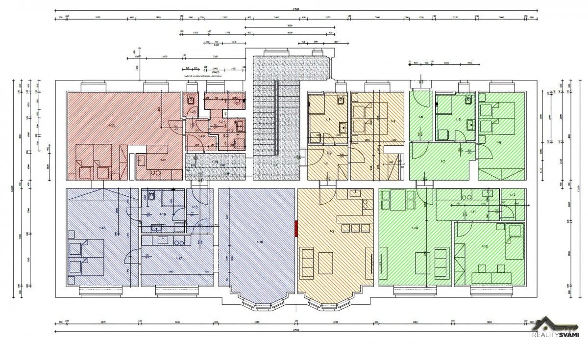
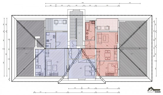
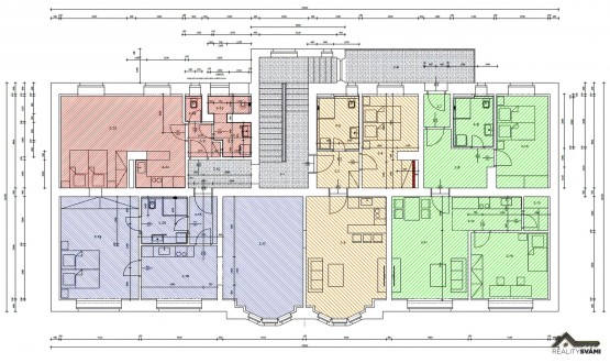
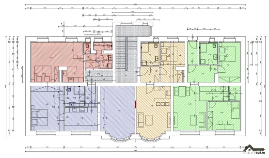
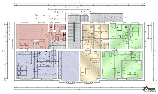
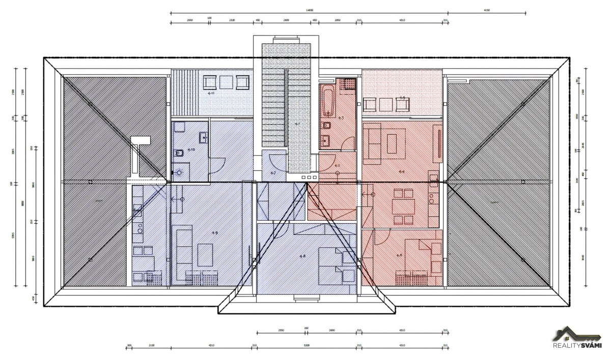
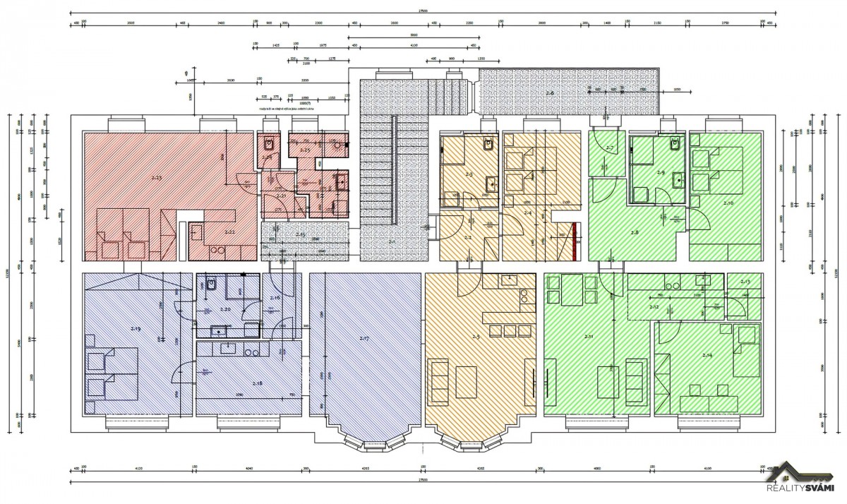
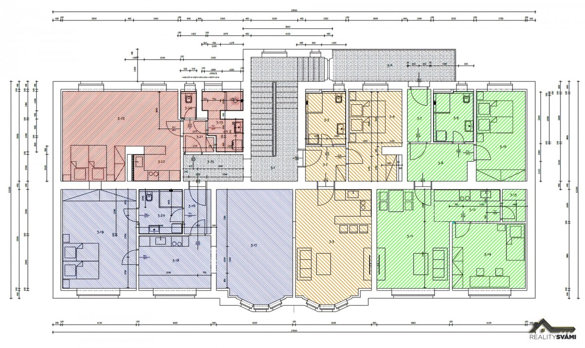
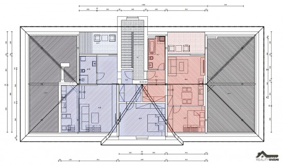
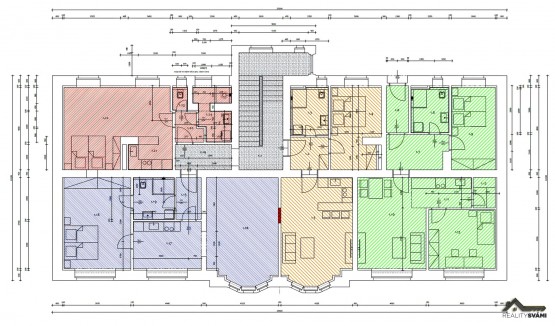
Dům má celkem 5 podlaží, z toho jedno podzemní (sklepy) a čtyři nadzemní, přízemí, dvě patra zrcadlově stejné (plná patra) a podkrovní (půda) dva byty s prosklenou terasou s kontaktem korun kaštanů jako na Hukvaldech.
Rekonstrukce probíhala od roku 2019 a byla dokončena na konci roku 2023. V současnosti stále probíhají drobné úpravy a vylepšení dle plánů - Doporučeným souborem opatření (např. instalace FV elektrárny) se budova dostává do třídy B (Velmi úsporná).

Bytový dům má celkem 14 bytových jednotek, z toho 7 je prodaných do osobního vlastnictví.
V nabídce je zbývajících 7 bytových jednotek těchto dispozic a velikostí:

1NP (první nadzemní patro) – 1+kk, 39, 81 m² + sklep 8, 50 m² (nájemník) k prodeji, cena 2. 520. 000, - Kč
1NP (první nadzemní patro) – 2+1, 68, 36 m² + sklep 8, 50 m² (nájemník) k prodeji, cena 4. 210. 000, - Kč
1NP (první nadzemní patro) – 3+kk, 72, 68 m² + sklep 8, 20 m² + balkon/terasa 5, 95m², cena 4. 730. 000, - Kč
2NP (druhé nadzemní patro) – 2+1, 68, 36 m² + sklep 9, 08 m², cena 4. 210. 000, - Kč
2NP (druhé nadzemní patro) – 3+kk, 83, 80 m² + sklep 9, 55 m² + balkon/terasa 12, 42m², cena 4. 730. 000, - Kč
3NP (třetí nadzemní patro) – 2+1, 70, 65 m² + sklep 8, 20 m², cena 4. 210. 000, - kč
4NP (čtvrté nadzemní patro) – 4+kk VIP s terasou, 132, 60 m² + sklep 8, 50 m² + terasa 11, 05m², cena 6. 270. 000, - Kč

Prodáno:

1NP (první nadzemní patro) - 2kk, 50, 20m² + sklep 8, 20m²
2NP (druhé nadzemní patro) - 1kk, 41m² + sklep 9, 55m²
2NP (druhé nadzemní patro) - 2kk, 50, 20m² + sklep 9, 08m²
3NP (třetí nadzemní patro) - 1kk, 41, 99m² + sklep 12, 55m²
3NP (třetí nadzemní patro) - 2kk, 51, 24m² + sklep 8, 20m²
3NP (třetí nadzemní patro) - 3kk, 76, 38m² + sklep 12, 42m² + balkon/terasa 12, 42m²
4NP (čtvrté nadzemní patro) - 4kk, 124, 40m² + sklep 11, 50m² + terasa 10, 78m²

Každá jednotka má sklepní kóji (pro kola, sezónní věci apod. ).
Kóje jsou dostatečně prostorné, laťkové, s dvojitou elektrickou zásuvkou – lze je využít např. pro mrazák.
Dům je situován na vlastním oploceném pozemku s elektricky ovládanou bránou, chráněným parkováním za příplatek a plánovaným malým dětským hřištěm. Dům a jeho okolí je zabezpečeno kamerovým systémem se záznamem.
Kupující se může stát jednotlivým vlastníkem jednotky/tek, dle vlastního uvážení, ale také většinovým (tzv. majoritním) vlastníkem – tedy vlastníkem s většinovým podílem na společných částech domu.
V rozhodování společenství vlastníků jednotek (SVJ) má tento vlastník většinu hlasů (podle velikosti spoluvlastnického podílu), a může tak zásadně ovlivňovat správu domu a pozemku (volbu výboru, schvalování oprav, investic apod. ). Prozatím není vytvořena žádná společenská smlouva. V plánu je také vytvoření parkovacích stání k prodeji na střeženém pozemku.
V inzerci jsou viditelné ukázkové čtyři bytové jednotky různých dispozic.
Kuchyně vybaveny ve vzorových bytech. Ceny kuchyňských linek nejsou součástí základního vybavení bytů (mimo vzorových) stejná firma vyrobí dle požadavků budoucího majitele/ů bytů - hlavně požadavků kuchařky.
Standard lze na přání klienta rozšířit o nadstandardní prvky – technologie i interiérové vybavení.

Standard vybavení a technické parametry domu:
Historická fasáda z lícových cihel, vnitřní zateplení Ytong Multipor.
Voda - v každém bytě je odpočtový vodoměr + možný rozdíl poměr ztrát dle % jednotlivých odběrů.
Omítky s výmalbou Primalex Plus. Okna plastová vícekomorová, trojsklo (venkovní antracit, vnitřní bílá).
Podlahy: zátěžová laminátová (dub).
Dveře vstupní: historické, masivní dřevo s bezpečnostním kováním.
Dveře interiérové: masiv, pískované sklo s historickým motivem, kliky mosaz lakovaná.
Koupelny a sociální zařízení WC: dlažba 60×60 cm, obklad 90×30 cm (bílá + černý profil).
Sanita: sprchové kouty z bezpečnostního skla.
Elektroinstalace: zásuvky a vypínače Legrand Valena, přípojka internetové připojeníu, domovní telefon, LED osvětlení 4000K.
Vytápění: elektrické – sálavé panely Ecosun (koupelny, chodby) + konvektory Ecoflex Solius (obytné prostory).
Terasy/balkony: dlažba Taurus 30×30 Granit, kovové zábradlí s povrchovou úpravou Granit.

Lokalita a výhody: Klidné prostředí s výhledem do Michalíkova sadu. V blízkosti přírody (Landek) i centra Ostravy. Revitalizovaná část Přívozu s investičním potenciálem. Blízké obchodní a kancelářské komplexy (např. Outlet Moravia). Výborná dopravní dostupnost: MHD, vlak, autobus, centrum v dosahu.

Pro více informací a sjednání prohlídky mě kontaktujte.
  • Vložení inzerátu:
    3.2.2026
  • Kód:
    00598
  • K dispozici od:
    0.0.0
  • Typ nemovitosti:
    Byt
  • Typ budovy:
    Cihlová
  • Dispozice:
    3+kk
  • Vlastnictví:
    OV
  • Podlaží:
    2
  • Podlahová plocha:
    83 m2
  • Terasa:
    12 m2
  • Sklep:
    9 m2
  • Stav objektu:
    Po rekonstrukci
  • Rok výstavby:
    1925
  • Rok kolaudace:
    1925
  • Rok rekonstrukce:
    2023
  • Umístění objektu:
    Centrum
  • Telekomunikace:
    Internet, Satelit, Kabelová televize, Kabelové rozvody
  • Voda:
    dálkový vodovod
  • Elektřina:
    230 V
  • Doprava:
    silnice, dálnice, MHD, autobus, vlak
  • Topeni:
    ústřední elektrické
  • Odpad:
    kanalizace
  • Komunikace:
    asfaltová
  • Energetická náročnost:
    B - Velmi úsporná
  • Podle vyhlášky:
    c. 78/2013 Sb.
  • Ukazatel náročnosti:
    105 kWh/m2
  • Nabídky v okolí:
  • Informace o obci:
    Obec Ostrava má 303609 obyvatel, z toho 212976 v produktivním věku.
    V obci se nachází pošta.
    V obci se nachází škola, popř. školka.
    V obci se nachází zdravotní zařízení.
    V obci je rozvod kanalizace.
    V obci je rozvod městské vody.
    V obci je rozvod plynu.
Lokalita: Žofie Podlipské 887, Ostrava, okres Ostrava-město, Česká republika Žofie Podlipské 887, Ostrava, okr. Ostrava-město

Kontakt

František Bula


Podobné nabídky v okolí


  • Objednání prohlídky a více informací
  •  
  • Poslat na e-mail
  •  

Zasílání odkazu na realitu emailem: