• Sledovat cenu
  •  

Zasílání upozornění emailem:

Prodej bytu 3+kk, 82 m2 - V Pitkovičkách 11, Praha (již není v nabídce)

Cena: 9 190 000 Kč
Stav:archiv
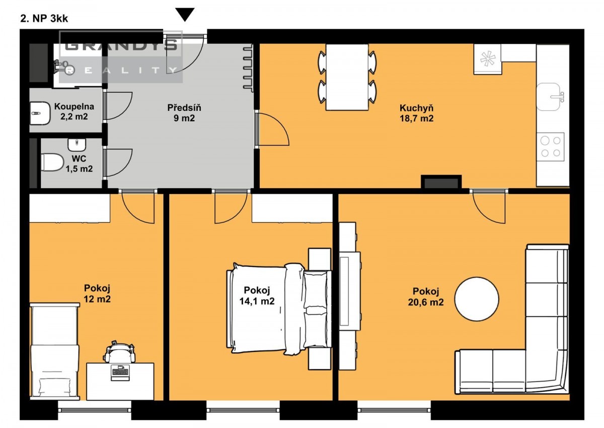
3+kk, 82 m2, cihlová, OV, 2. podlaží
Popis: V exkluzivním zastoupení developera nabízíme ke koupi světlé 3kk o PP 82m2 v novém projektu Pitkovický mlýn. Byt se nachází v 2NP (druhé nadzemní patro) a je orientovaný na východ, s výhledem do dvora. Skládá se... ze třech samostatných pokojů, předsíně, kuchyně, koupelny a sociální zařízení WC. V budově je výtah i kolárna. Na fotkách je aktuální stav jednotky, fotografie budeme postupně aktualizovat. Při předání budou hotové podlahy - plovoucí podlaha v pokojích, dlažba v kuchyni, předsíni i na toaletě a v koupelně. Dále do standardů patří interiérové dveře, vstupní dveře, sanita a elektroinstalace.

K jednotkám lze zakoupit následující parkovací stání:
- 200. 000, - stání před budovou (19 míst)
- 280. 000, - v přízemí parkovacího domu (14 míst)
- 250. 000, - v prvním podlaží parkovacího domu (14 míst)
- 180. 000, - na nekryté střeše parkovacího domu (15 míst)

Pitkovický Mlýn nabízí klidné bydlení v Praze. Přímo u domu začínají cyklostezky na Pitkovickou stráň, do Milíčovského lesa, až k Hostivařské přehradě a dále do Prahy. Nedaleko se nachází autobusová zastávka linky č. 213, vedoucí na =M= Háje (12 minut). Dále dojdete i do MŠ Pitkovice nebo k Pitkovickým rybníkům.

Kolaudace projektu je plánována do konce roku 2022.

Pro více informací, aktuální nabídku, a případné domluvení prohlídky nebo financování mě kontaktujte.
  • Vložení inzerátu:
    27.3.2022
  • Kód:
    0115
  • Typ nemovitosti:
    Byt
  • Typ budovy:
    Cihlová
  • Dispozice:
    3+kk
  • Vlastnictví:
    OV
  • Podlaží:
    2
  • Podlahová plocha:
    82 m2
  • Stav objektu:
    Novostavba
  • Rok výstavby:
    2020
  • Rok kolaudace:
    2020
  • Umístění objektu:
    Klidná část
  • Energetická náročnost:
    C - Úsporná
  • Podle vyhlášky:
    c. 148/2007 Sb
  • Nabídky v okolí:
  • Informace o obci:
    Obec Praha má 1257158 obyvatel, z toho 889974 v produktivním věku.
    V obci se nachází pošta.
    V obci se nachází škola, popř. školka.
    V obci se nachází zdravotní zařízení.
    V obci je rozvod kanalizace.
    V obci je rozvod městské vody.
    V obci je rozvod plynu.

Podobné nabídky v okolí

Lokalita: V Pitkovičkách 11, Praha, Česká republika V Pitkovičkách 11, Praha