• Sledovat cenu
  •  

Zasílání upozornění emailem:

Prodej bytu 3+kk, 80 m2 - Pražského povstání 1, Praha

Cena: 8 400 000 Kč
Stav:Volný
3+kk, 80 m2, cihlová, OV, 2. podlaží
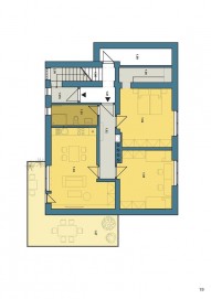
Popis: Prodej novostavby bytové jednotky 3+kk (80 m2) v 1. patře s terasou 22 m2 ve vilovém domě se zahradou, jenž se nachází v rezidenční čtvrti ulice Pražského... povstání. V celém domě jsou pouze 3 bytové jednotky, každá v samostatném podlaží. Díky tomu se v něm žije jako v rodinném domě se zahradou. Dům je po kompletní rekonstrukci v nadstandardní kvalitě. Proběhla výměna okenních výplní (termoizolační okna s trojsklem), zateplení fasády, položení nové střešní krytiny. Všechny rozvody byly provedeny nově (voda, elektro, topení, plyn). Vysoký standard v celé bytě je prezentován i datovými rozvody a satelitními přípojkami v každé místnosti. Vstup na pozemek je jak z ulice Pražského povstání, tak z ulice Vídeňská (vjezd pro auta). Na vlastní parcele je připravena parkovací plocha o kapacitě 9 parkovacích míst. Energetická třída G je uvedena dočasně, vzhledem k novele zákona č. 406/2000 Sb. Po dodání energetického štítku bude uvedena skutečná energetická třída. Dokončení květen 2018.
  • Vložení inzerátu:
    2.11.2017
  • Kód:
    40599
  • K dispozici od:
    0.0.0
  • Typ nemovitosti:
    Byt
  • Typ budovy:
    Cihlová
  • Dispozice:
    3+kk
  • Vlastnictví:
    OV
  • Podlaží:
    2
  • Podlahová plocha:
    80 m2
  • Terasa:
    22 m2
  • Stav objektu:
    Velmi dobrý
  • Odpad:
    kanalizace
  • Energetická náročnost:
    G - Mimořádne nehospodárná
  • Nabídky v okolí:
  • Informace o obci:
    Obec Praha má 1257158 obyvatel, z toho 889974 v produktivním věku.
    V obci se nachází pošta.
    V obci se nachází škola, popř. školka.
    V obci se nachází zdravotní zařízení.
    V obci je rozvod kanalizace.
    V obci je rozvod městské vody.
    V obci je rozvod plynu.
Lokalita: Pražského povstání 1, Praha, Česká republika Pražského povstání 1, Praha


Podobné nabídky v okolí


Volná pracovní místa ExpertPrace.cz
  • Objednání prohlídky a více informací
  •  
  • Poslat na e-mail
  •  

Zasílání odkazu na realitu emailem: