• Sledovat cenu
  •  

Zasílání upozornění emailem:

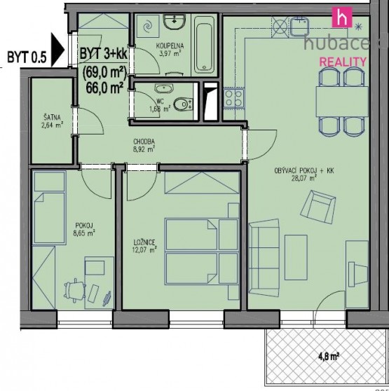
Prodej bytu 3+kk, 78 m2 - Kamechy 1, Brno, okr. Brno-město (již není v nabídce)

Cena: 4 305 000 Kč
Stav:archiv
3+kk, 78 m2, cihlová, OV, 1. podlaží
Popis: Nabízíme vám novostavbu bytu 3 + kk v 1. PP s terasou, sklepem a garážovým stáním v ceně, v moc hezké a klidné lokalitě v Brně - Bystrci zvané Kamechy, v novém pětipodlažním bytovém domě D36, při ulici Lišejníkova a Hl...inecká. Byt má západní orientaci. Dům je ve výstavbě a byty budou dokončeny 12/2019. Možnost dokoupení dalšího parkovacího stání. V ceně bytu je kompletní dokončení, kromě kuchyňské linky a svítidel. Výběr z více dekorů obkladů dveří, dlažby, obkladů, podlah a zařizovacích přemětů. Je možný i výběr nadstandardního vybavení, za příplatek. Dům je postaven v atraktivním místě, je umístěn v moc hezké okolní přírodě, v blízkosti lesů, nedaleko je Brněnská přehrada, Žebětínský rybník, hrad Veveří. Pro více informací nás neváhejte kontaktovat. Financování vám vyřídíme za velice výhodných podmínek. Financovat lze i prodejem vlastního bytu, kdy vám zajistíme pohodlné přestěhování ze starého do nového bytu bez nutnosti dočasného nájmu.
  • Vložení inzerátu:
    27.3.2018
  • Kód:
    05021
  • K dispozici od:
    0.0.0
  • Typ nemovitosti:
    Byt
  • Typ budovy:
    Cihlová
  • Dispozice:
    3+kk
  • Vlastnictví:
    OV
  • Podlaží:
    1
  • Podlahová plocha:
    78 m2
  • Terasa:
    5 m2
  • Sklep:
    4 m2
  • Stav objektu:
    Novostavba
  • Telekomunikace:
    Telefon, Internet, Kabelová televize
  • Doprava:
    silnice, dálnice, MHD, autobus, vlak
  • Topeni:
    ústřední dálkové
  • Komunikace:
    dlážděná
  • Energetická náročnost:
    B - Velmi úsporná
  • Podle vyhlášky:
    c. 78/2013 Sb.
  • Ukazatel náročnosti:
    66 kWh/m2
  • Nabídky v okolí:
  • Informace o obci:
    Obec Brno má 371371 obyvatel, z toho 256490 v produktivním věku.
    V obci se nachází pošta.
    V obci se nachází škola, popř. školka.
    V obci se nachází zdravotní zařízení.
    V obci je rozvod kanalizace.
    V obci je rozvod městské vody.
    V obci je rozvod plynu.

Podobné nabídky v okolí

Lokalita: Kamechy 1, Brno, okres Brno-město, Česká republika Kamechy 1, Brno, okr. Brno-město