• Sledovat cenu
  •  

Zasílání upozornění emailem:

Prodej bytu 3+kk, 70 m2 - Pec pod Sněžkou , okr. Trutnov (již není v nabídce)

Cena: 8 495 000 Kč
Stav:archiv
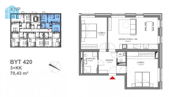
3+kk, 70 m2, cihlová, OV, 4. podlaží
Popis: Exklusivně Vám nabízíme prodej apartmánu 3+kk o celkové výměře 70, 43 m², apartmán se nachází ve 4. NP (čtvrté nadzemní patro) v projektu apartmánového domu Vlčice Residence. R...esidence Vlčice nabízí 23 výjimečných apartmánů v srdci jednoho z nejmalebnějších horských středisek Krkonoš, v Peci pod Sněžkou, “v nitru člověkem nedotčené přírody“. Toto velkolepé místo přinese celé Vaší rodině úžasné relaxační a sportovní vyžití v létě i v zimě, naplněné novými zážitky a dobrodružstvím. Výborná dopravní dostupnost z Prahy, 2 hodiny činí místo jedinečným. Každý z 23 apartmánů zaručuje klid, soukromí, zároveň otevřené dispozice tak, aby vyhovoval každému typu rodiny. Samozřejmostí je vlastní parkovací stání v suterénu či venku a sklepní kóje, do které si můžete uzamknout své lyže nebo horské kolo. Moderní architektura, velkorysá francouzská okna přinášející světlo do apartmánů, přírodní materiály v kombinaci se sklem dodávají každému z apartmánů nezaměnitelnou atmosféru, teplo, vřelost a útulnost. To, jak bude interiér Vašeho apartmánu vypadat, můžete ovlivnit i Vy sami. Jsme připraveni na Vaše specifická přání, a tak si můžete sami vybrat materiály, zařizovací předměty podle svého vkusu. Naši architekti jsou Vám plně k dispozici a rádi Vám poradí s výběrem. Cena neobsahuje vybavení apartmánu a parkovací stání. Dokončení výstavby je plánováno na léto 2020.
  • Vložení inzerátu:
    8.11.2019
  • Kód:
    0029
  • Typ nemovitosti:
    Byt
  • Typ budovy:
    Cihlová
  • Dispozice:
    3+kk
  • Vlastnictví:
    OV
  • Podlaží:
    4
  • Podlahová plocha:
    70 m2
  • Stav objektu:
    Velmi dobrý
  • Energetická náročnost:
    B - Velmi úsporná
  • Nabídky v okolí:
  • Informace o obci:
    Obec Pec pod Sněžkou má 640 obyvatel, z toho 485 v produktivním věku.
    V obci se nachází pošta.
    V obci se nachází zdravotní zařízení.
    V obci je rozvod kanalizace.
    V obci je rozvod městské vody.
    V obci je rozvod plynu.

Podobné nabídky v okolí

Lokalita: Pec pod Sněžkou , okres Trutnov, Česká republika Pec pod Sněžkou , okr. Trutnov, Královéhradecký kraj