• Sledovat cenu
  •  

Zasílání upozornění emailem:

Prodej bytu 3+kk, 68 m2 - Nádražní, Pelhřimov

Cena: 3 995 000 Kč
Stav:Volný
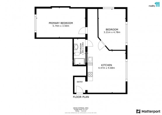
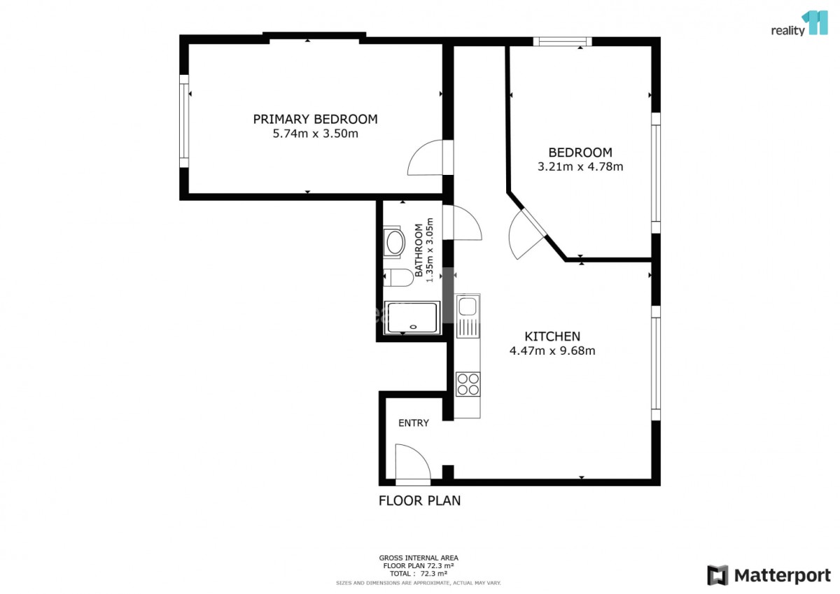
3+kk, 68 m2, cihlová, OV, 3. podlaží
Popis: Hledáte útulné bydlení v klidné části Pelhřimova, pár minut od centra? Nabízíme vám ke koupi velice pěknou bytovou jednotku o dispozici 3+kk (podlahová plocha 68 m²) umístěnou v...e 3. nadzemním podlaží zděného bytového domu se šesti bytovými jednotkami v ulici Nádražní, Pelhřimov. Dispozice a vybavení: vstup, prostorný obývací pokoj s kuchyňským koutem (linka se spotřebiči - vestavná trouba, sklokeramická deska, digestoř), ložnice, samostatný pokoj (dětský pokoj
/pracovna/pokoj pro hosty). Vytápění je řešeno ústředním topením s vlastním elektrickým kotlem, máte tak náklady i teplotní komfort pod kontrolou. Byt. jednotka je volná a připravená k okamžitému nastěhování nebo k následnému pronájmu. Součástí prodeje je podíl na pozemku a rozsáhlé udržované zahradě. Dále k bytové jednotce náleží výlučné užívací právo ke garáži stojící na zahradě. K dispozici pro vás máme 3D virtuální prohlídka od společnosti 3Dvirtual, díky které si můžete bytovou jednotku projít z pohodlí svého domova a následně si domluvit osobní návštěvu. Město Pelhřimov je oblíbené okresní město na Vysočině s plnou občanskou vybaveností: školy a školky, nemocnice, obchody, sportoviště, historické náměstí a vyhlášené Muzeum rekordů a kuriozit. Skvělé je i dopravní spojení, vlakové a autobusové nádraží v docházkové vzdálenosti, rychlý dojezd na D1, do Jihlavy cca 25 min, do Humpolce cca 15 min. Zelené okolí nabízí možnosti pro procházky i cyklo výlety. V případě zájmu o více informací a prohlídku kontaktujte makléře společnosti. Ev. číslo: 27852. Energetický štítek: G (200 kWh/m2/rok).
  • Vložení inzerátu:
    24.10.2025
  • Kód:
    3992744
  • Typ nemovitosti:
    Byt
  • Typ budovy:
    Cihlová
  • Dispozice:
    3+kk
  • Vlastnictví:
    OV
  • Podlaží:
    3
  • Podlahová plocha:
    68 m2
  • Stav objektu:
    Dobrý
  • Energetická náročnost:
    G - Mimořádne nehospodárná
  • Ukazatel náročnosti:
    200 kWh/m2
  • Nabídky v okolí:
  • Informace o obci:
    Obec Pelhřimov má 16656 obyvatel, z toho 11782 v produktivním věku.
    V obci se nachází pošta.
    V obci se nachází škola, popř. školka.
    V obci se nachází zdravotní zařízení.
    V obci je rozvod kanalizace.
    V obci je rozvod městské vody.
    V obci je rozvod plynu.
Lokalita: Nádražní , Pelhřimov, okres Pelhřimov, Česká republika Nádražní, Pelhřimov

Kontakt

Václav Duben


Podobné nabídky v okolí


Volná pracovní místa ExpertPrace.cz
  • Objednání prohlídky a více informací
  •  
  • Poslat na e-mail
  •  

Zasílání odkazu na realitu emailem: