• Sledovat cenu
  •  

Zasílání upozornění emailem:

Prodej bytu 3+kk, 67 m2 - Veslařská, Jundrov, Brno, okr. Brno-město (již není v nabídce)

Cena: 4 450 000 Kč
Stav:archiv
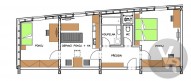
3+kk, 67 m2, dřevostavba, OV, 3. podlaží
Popis: Se souhlasem majitele nabízíme k prodeji pěknou, nezařízenou jednotku s dispozicí 3+kk v žádané lokalitě Brno Jundrov, na ulici Veslařská. Nachází se v 1. NP (první nadzemní ...patro) třípodlažního domu, výměře bytu činí 67 m2 a k bytu náleží jedno parkovací stání. Pozemek i parkoviště jsou střeženy kamerovým systémem

Dispozice: Předsíň, obývací pokoj s kuchyňským koutem, koupelna s vanou, samostatná toaleta a dvě ložnice.

Jako podlahová krytina slouží zátěžový koberec, okna jsou dřevěná s trojsklem, V koupelně a na sociální zařízení WC je dlažba a obklady.

Jednotka je nabízena nezařízená, nicméně po dohodě je možné částečně vybavit.
V jednotce je zaveden internetové připojení, TV, vytápění je řešeno elektrickými přímotopy.
Vzhledem k energetické třídě jsou náklady na bydlení velice nízké.

V objektu je rozveden bezpečnostní kamerový systém.

V těsné blízkosti domu se nachází zastávky MHD a občanská vybavenost (potraviny, lékárna, drogerie, škola i školka vše v pěti minutové pěší dostupnosti)

Průkaz energetické náročnosti budovy: B
  • Vložení inzerátu:
    14.3.2020
  • Kód:
    109/4457
  • Typ nemovitosti:
    Byt
  • Typ budovy:
    Dřevostavba
  • Dispozice:
    3+kk
  • Vlastnictví:
    OV
  • Podlaží:
    3
  • Podlahová plocha:
    67 m2
  • Stav objektu:
    Velmi dobrý
  • Bezbariérový byt:
    Ano
  • Bezbariérový přístup:
    Ano
  • Energetická náročnost:
    B - Velmi úsporná
  • Nabídky v okolí:

Podobné nabídky v okolí

Lokalita: Veslařská , Jundrov, Brno, okres Brno-město, Česká republika Veslařská, Jundrov, Brno, okr. Brno-město