• Sledovat cenu
  •  

Zasílání upozornění emailem:

Prodej bytu 3+kk, 66 m2 - Předboj , okr. Praha-východ

Cena: 4 986 960 Kč
Stav:Volný
3+kk, 66 m2, cihlová, OV, 1. podlaží
Popis: Představujeme Vám developerský projekt 14 bytových jednotek bytyneratovice. cz v Neratovicích, s velice dobrou občanskou dostupností do Prahy, kde neplatíte 4% daň z nabytí nemovitosti.
Moderní byt ...
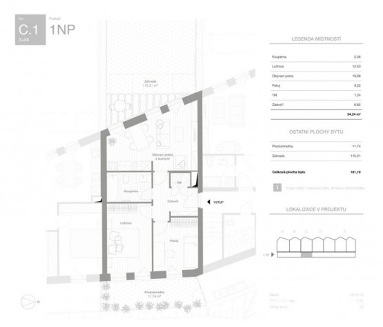
+ kuchyňský kout">3+kk o ploše 54, 24 m2 s předzahrádkou 11, 74 m2 a zahradou 115, 21 m2 se nachází v přízemí třípodlažní budovy v osobním vlastnictví. Byt je v uzavřeném komplexu s výměrou 4 500 m2 s relaxační zónou a klidovou zahradou, pergolou na grilování a velkým bezpečnostním certifikovaném dětským hřištěm.

Promyšlená dispozice bytu nabízí obývací pokoj s kuchyňským koutem o výměře cca 19 m2 se vstupem na zahradu o ploše 115 m2, zajišťující maximální možné pohodlí a soukromí. Dále ložnicí 12, 50 m2 a pokojem 9, 22 m2 se vstupem na předzahrádku, koupelnou s toaletou 5, 56 m2, technickou místností 1, 24m2 a zádveří 6, 65m2.

V obytných místnostech budou plovoucí podlahy, v chodbě a koupelně keramická dlažba, centrální plynová kotelna zajišťující vytápění a ohřev teplé vody, samostatné podlahové vytápění a v koupelně pak topné těleso žebřík. Okna a balkonové dveře jsou plastové, šesti - komorové.

V ceně bytu je jedno parkovací stání. Samozřejmostí je zahrada, kompletně osazená zelení, hotové záhonky, okrasné dřeviny a maximálně upravené plochy pro Váš nový domov.
Nespornou výhodou je také výborná dopravní dostupnost - autem jste za pár minut na dálnici do Prahy, a přímo u domu je autobusová zastávka linka 348 do Prahy na metro stanice Ládví 30 min. , bus 351 do Prahy Letňany, bus 473 do Kralup n/V a bus 471 na Mělník a do Brandýsa n/L.

V místě je veškerá občanská vybavenost, poliklinika, nemocnice, supermarkety, MŠ, ZŠ, úřady, pošta, sportoviště, plavecký bazén, koupaliště, zimní stadion, společenský dům s kinem a několik restaurací i kaváren.

Poloha tohoto bytu dělá z této nabídky lákavou možnost pořízení nového bydlení a financování je možné hypotečním úvěrem, se kterým Vám velice rádi pomůžeme. Pro jakékoliv nezávazné informace mě prosím neváhejte kontaktovat.
  • Vložení inzerátu:
    30.10.2019
  • Kód:
    00018
  • Typ nemovitosti:
    Byt
  • Typ budovy:
    Cihlová
  • Dispozice:
    3+kk
  • Vlastnictví:
    OV
  • Podlaží:
    1
  • Podlahová plocha:
    66 m2
  • Terasa:
    Ano
  • Stav objektu:
    Ve výstavbě
  • Bezbariérový byt:
    Ano
  • Voda:
    dálkový vodovod
  • Elektřina:
    230 V
  • Doprava:
    silnice, dálnice, MHD, autobus, vlak
  • Topeni:
    ústřední plynové
  • Plyn:
    plynovod
  • Odpad:
    kanalizace
  • Komunikace:
    asfaltová
  • Bezbariérový přístup:
    Ano
  • Energetická náročnost:
    B - Velmi úsporná
  • Podle vyhlášky:
    c. 78/2013 Sb.
  • Ukazatel náročnosti:
    166.03 kWh/m2
  • Nabídky v okolí:
  • Informace o obci:
    Obec Předboj má 606 obyvatel, z toho 408 v produktivním věku.
    V obci je rozvod kanalizace.
    V obci je rozvod městské vody.
Lokalita: Předboj , okres Praha-východ, Česká republika Předboj , okr. Praha-východ, Středočeský kraj

Kontakt



Podobné nabídky v okolí


Volná pracovní místa ExpertPrace.cz
  • Objednání prohlídky a více informací
  •  
  • Poslat na e-mail
  •  

Zasílání odkazu na realitu emailem: