• Sledovat cenu
  •  

Zasílání upozornění emailem:

Prodej bytu 3+kk, 165 m2 - Jehnice , Brno, okr. Brno-město (již není v nabídce)

Cena: 11 999 999 Kč
Stav:archiv
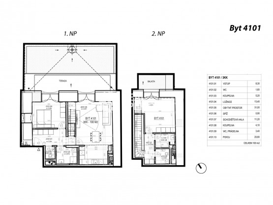
3+kk, 165 m2, cihlová, OV, 1. podlaží
Popis: Hledáte exkluzivní bydlení, které spojuje moderní komfort s historií? Nabízíme Vám nádherný mezonetový byt v nedávno dokončeném projektu Bavaria na severním okraji Brna, katastrální území Jehnice. Tento prostorný byt s ter...asou, balkónem a krytým parkovacím stáním (s možností dokoupení dvojgaráže) vznikl citlivou rekonstrukcí historického objektu bývalého pivovaru.

Byt nabízí nadstandardní interiér, který poskytuje veškerý komfort. Dominantou obývacího pokoje je špičková kuchyně od firmy Sýkora, vybavená spotřebiči Miele, AEG a Liebherr, a bohaté prosklení, které dodává prostoru jedinečnou atmosféru. Vstupní prostor je navržen tak, aby poskytoval dostatek úložných možností. Dále byt zahrnuje dvě ložnice, dvě koupelny a dvě toalety. Vytápění je zajištěno teplovodním podlahovým systémem kombinovaným s deskovými radiátory, napájenými plynovou kotelnou v domě. Klimatizace je k dispozici pro maximální pohodlí i v letních měsících.

Rezidence Bavaria se nachází na severní hranici Brna a je ideální pro ty, kteří hledají výjimečné a nekonvenční bydlení s osobitou atmosférou. Atraktivní lokalita splňuje vysoké nároky na pohodlí, infrastrukturu a je obklopena zelení. Výborná dostupnost do centra Brna, které je vzdáleno jen 12 minut jízdy autem, je další výhodou.

Pokud hledáte jedinečné bydlení s dotykem historie v atraktivní lokalitě s veškerým komfortem, je tento byt v rezidenci Bavaria tou pravou volbou pro Vás. K ceně bude připočtena provize RK.
  • Vložení inzerátu:
    22.7.2024
  • Kód:
    N/RSB/20733/24
  • K dispozici od:
    0.0.0
  • Typ nemovitosti:
    Byt
  • Typ budovy:
    Cihlová
  • Dispozice:
    3+kk
  • Vlastnictví:
    OV
  • Podlaží:
    1
  • Podlahová plocha:
    165 m2
  • Balkón:
    8 m2
  • Terasa:
    59 m2
  • Stav objektu:
    Po rekonstrukci
  • Telekomunikace:
    Internet
  • Voda:
    dálkový vodovod
  • Elektřina:
    230 V
  • Topeni:
    ústřední plynové
  • Odpad:
    kanalizace
  • Energetická náročnost:
    C - Úsporná
  • Podle vyhlášky:
    c. 78/2013 Sb.
  • Ukazatel náročnosti:
    129700 kWh/m2
  • Nabídky v okolí:

Podobné nabídky v okolí

Lokalita: Jehnice , Brno, okres Brno-město, Česká republika Jehnice , Brno, okr. Brno-město, Jihomoravský kraj