• Sledovat cenu
  •  

Zasílání upozornění emailem:

Prodej bytu 3+kk, 163 m2 - Harrachov , okr. Semily

Cena: 11 790 000 Kč
Stav:Volný
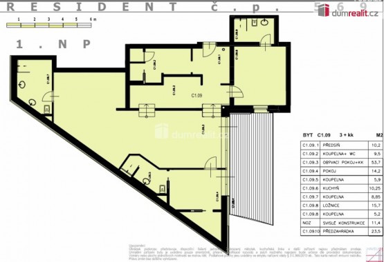
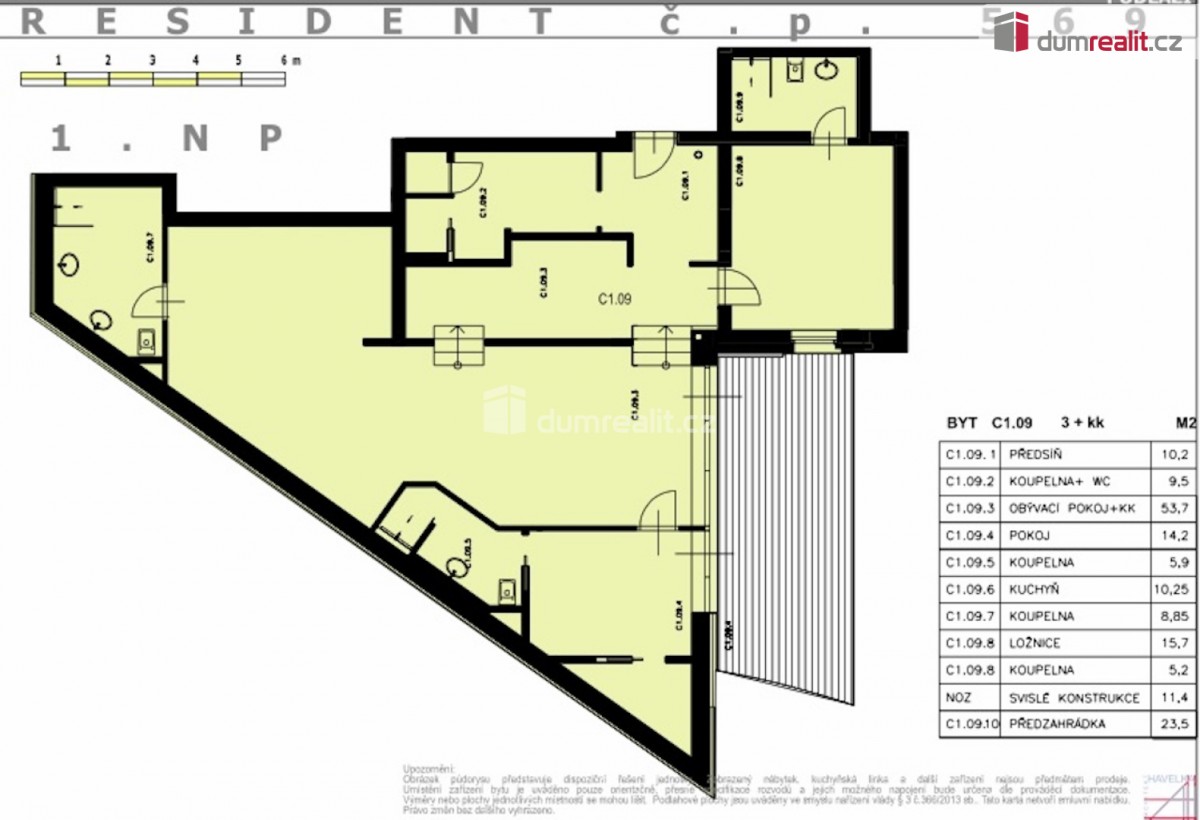
3+kk, 163 m2, skeletová, OV, 1. podlaží
Popis: AKČNÍ CENA při podpisu rezervační smlouvy do konce 2/2026. Včetně garážového a venkovního park. stání. Rádi bychom Vám představili tento moc hezký byt 3+kk k prodeji v oblíbené... rekreační lokalitě Harrachov. Tento byt se nachází v klidné části obce, což zaručuje ideální prostředí pro relaxaci a odpočinek po náročném dni. Celková podlahová plocha bytu činí 163 m², což nabízí dostatek prostoru pro pohodlné bydlení. Byt je situován na prvním patře skeletové budovy ve velice dobrém stavu.

Mezi hlavní výhody tohoto bytu patří prostorná terasa, ideální pro večerní relaxaci s výhledem na okolní přírodu. K dispozici je sklep, což dodává další možnosti skladování. Velkou výhodou je také garážové a venkovní parkování, které je zahrnuto v ceně, spolu s místy pro 2 automobily. Objekt je moderním, dvoupodlažním Grotta Spa Wellnes s recepcí, dvěmi saunami, párou, odpočívárnou, masérnou a šatnou, což poskytuje jedinečný způsob relaxace přímo ve Vašem domově. Navíc systém rekuperace jednotky zajišťuje zdravé vnitřní prostředí.

Byt se nachází v osobním vlastnictví a spadá do energetické třídy B, což znamená výhodnou energetickou náročnost. Díky tomu můžete očekávat efektivní provoz bytové jednotky. V bytě naleznete vanu, která je výbornou volbou pro milovníky dlouhých a relaxačních koupelí. Spojení do města autobusovou dopravou je zajištěno, takže i bez vlastního automobilu máte pohodlný přístup k potřebným službám a zázemí města.

Akční cena je platná při podpisu rezervační smlouvy do konce února 2026, což představuje mimořádnou příležitost ke koupi. Prohlídky jsou možné po předchozí domluvě. Pro více informací o této nemovitosti nebo sjednání prohlídky nás prosím kontaktujte nebo vyplňte níže uvedený formulář, rádi Vám pomůžeme. Ev. číslo: 651652. Energetický štítek: B
  • Vložení inzerátu:
    25.6.2025
  • Kód:
    3986098
  • Typ nemovitosti:
    Byt
  • Typ budovy:
    Skeletová
  • Dispozice:
    3+kk
  • Vlastnictví:
    OV
  • Podlaží:
    1
  • Podlahová plocha:
    163 m2
  • Terasa:
    Ano
  • Sklep:
    Ano
  • Stav objektu:
    Velmi dobrý
  • Energetická náročnost:
    B - Velmi úsporná
  • Nabídky v okolí:
  • Informace o obci:
    Obec Harrachov má 1534 obyvatel, z toho 1113 v produktivním věku.
    V obci se nachází pošta.
    V obci se nachází škola, popř. školka.
    V obci se nachází zdravotní zařízení.
    V obci je rozvod kanalizace.
    V obci je rozvod městské vody.
    V obci je rozvod plynu.
Lokalita: Harrachov , okres Semily, Česká republika Harrachov , okr. Semily, Liberecký kraj

Kontakt

Vojtěch Hakl


Podobné nabídky v okolí


  • Objednání prohlídky a více informací
  •  
  • Poslat na e-mail
  •  

Zasílání odkazu na realitu emailem: