• Sledovat cenu
  •  

Zasílání upozornění emailem:

Prodej bytu 3+kk, 126 m2 - Nádražní 707, Poštorná, Břeclav, okr. Břeclav (již není v nabídce)

Cena: 4 199 000 Kč
Stav:archiv
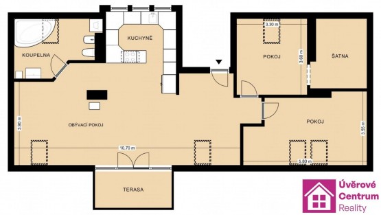
3+kk, 126 m2, cihlová, OV, 3. podlaží
Popis: Hledáte prostorný byt pro bydlení na klidném místě v Břeclav?

Mám pro Vás jeden tip - prodej podkrovního bytu o velikosti 3+kk v městské části Poštorná na ulici Nádražní. By...t. jednotka se nachází ve třetím nadzemním podlaží ze tří. V podsklepeném cihlovém bytovém domě bez výtahu.

Dispozice bytu: předsíň, pokoj, šatna, pokoj, jídelní kout, kuchyňský kout, prostorný obývací pokoj, koupelna s toaletou a terasa. V přízemí bytového domu se nacházejí dva zděné sklepy a jeden společný sklep.

Zaujala Vás tato nabídka? Máte zájem o prohlídku? Vám vyhovující termín prohlídky (datum a čas) s kontakty na Vás (e - mail + tel. číslo) zasílejte na e - mail makléře, který Vás následně bude telefonicky kontaktovat.

Bytový dům je v dobrém technickém stavu. Na každém podlaží jsou dvě bytové jednotky a podkroví pouze jedna. Nabízená bytová jednotka se nachází ve třetím nadzemním podlaží (podkroví).

Kuchyňská linka je vybavena vestavěnou indukční varnou deskou, digestoří, elektrickou a mikrovlnou troubou, myčkou, pračkou a volně stojící lednicí s mrazničkou.

Vytápění bytu je řešeno podlahovým elektrickým topením, které je možné v každém pokoji ovládat samostatně. Dále je možné pro topení použít krbová kamna na tuhá paliva, popřípadě vestavěnou stropní klimatizační jednotku.

Užitná plocha bytu je 126 m2 s obytnou plochou 103 m2, terasa s velikostí 6 m2, zděné uzamykatelné sklepy o velikosti 11, 50 m2 a jeden společný sklep (se třemi byty) s celkovou plochou 18 m2.

Měsíční náklady na provoz bytu pro tříčlennou domácnost (dva dospělí a jedno děti) jsou ve výši =6. 500 Kč (elektrika, vodé - stočné, správa bytového domu a fond oprav).

V blízkosti domu se nachází dětské hřiště. V širším okolí supermarket Coop, autobusová zastávka MHD, základní i mateřská škola a pošta. Ve městě Břeclav je kompletní občanská vybavenost.

Parkování pro osobní automobil je možné přímo za bytovým domem.

K nastěhování dohodou.

Kompletní financování Vám nabízíme za výhodných podmínek přes našeho smluvního partnera Úvěrové Centrum.

V případě více vážných zájemců, si prodávající vyhrazuje právo vybrat kupujícího, na základě jím stanovených kritérií.
  • Vložení inzerátu:
    8.5.2024
  • Kód:
    330
  • Typ nemovitosti:
    Byt
  • Typ budovy:
    Cihlová
  • Dispozice:
    3+kk
  • Vlastnictví:
    OV
  • Podlaží:
    3
  • Podlahová plocha:
    126 m2
  • Plocha parcely:
    103 m2
  • Balkón:
    Ano
  • Sklep:
    18 m2
  • Stav objektu:
    Velmi dobrý
  • Bezbariérový byt:
    Ano
  • Telekomunikace:
    Internet, Kabelová televize
  • Voda:
    dálkový vodovod
  • Elektřina:
    230 V
  • Doprava:
    silnice, dálnice, MHD, autobus, vlak
  • Odpad:
    kanalizace
  • Komunikace:
    asfaltová
  • Bezbariérový přístup:
    Ano
  • Energetická náročnost:
    G - Mimořádne nehospodárná
  • Nabídky v okolí:

Podobné nabídky v okolí

Lokalita: Nádražní 707, Poštorná, Břeclav, okres Břeclav, Česká republika Nádražní 707, Poštorná, Břeclav, okr. Břeclav