• Sledovat cenu
  •  

Zasílání upozornění emailem:

Prodej bytu 3+kk, 115 m2 - Nepilova, Beroun

Cena: 12 971 620 Kč
Stav:Volný
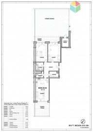
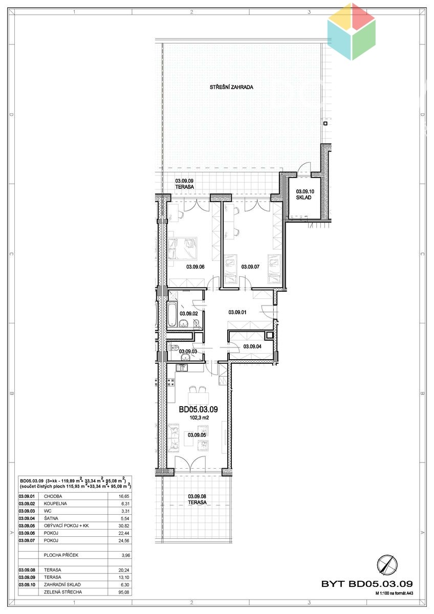
3+kk, 115 m2, OV, 3. podlaží
Popis: Máme pro Vás k prodeji byt 3+kk o výměře 115, 9 m2. Byt se vymyká ostatním nabídkám tím, že má střešní zahradu o výměře 95 m2, dvě terasy a zahradní zděn...ý sklad. V ceně je už zahrnuta sklepní koje a také garážové stání. Tento jedinečný byt s výhodami rodinného domu si můžete zarezervovat v právě vznikajícím bytovém domě v ul. Nepilova v Berouně. Aktuálně je hotova hrubá stavba, osazena jsou okna, vyzděné příčky, nahazují se zdi.
Architekt byt navrhl na celou šířku domu, získáte tím terasu orientovanou na severozápad a druhou na jihovýchod, můžete si tak svobodně vybírat, jestli se chcete slunit nebo skrýt do stínu. Plocha je rozvržena velice prakticky, v bytě je prostorná chodba, šatna, koupelna s toaletou i samostatný záchod. Obě ložnice jsou velice světlé, mají vstup na terasu a zahradu. Obývací pokoj s kuchyňským koutem má svoji vlastní terasu. Tento typ bytu - se střešní zahradou - je v projektu už poslední.
Byt najdete na 3. NP (třetí nadzemní patro), dům bude bezbariérový, včetně výtahu, kterým si do svého patra vyjedete přímo z garáží. Tam na Vás čeká parkovací místo, které už je zahrnuto v ceně bytu.
K nastěhován í je byt za rok, financování je v tomto projektu velice proklientské - největší část kupní ceny (70%) zaplatíte až po kolaudaci. Do té doby je možné využít příslib, že budou výhodnější hypotéky, nebo budete mít čas prodat jinou nemovitost. Je více možností, jak tuto koupi naplánovat. Ráda s Vámi všechny možnosti proberu a to nejen co se týká financování. Můžeme se sejít, ráda Vám poradím s výběrem svého vysněného bydlení, v nabídce máme bytů o dispozici 2+kk, 3+kk i 4+kk několik. Ozvěte se mi, vybereme spolu to nejbáječnější bydlení, které bude odpovídat Vašim představám.
  • Vložení inzerátu:
    13.2.2024
  • Kód:
    5772
  • K dispozici od:
    0.0.0
  • Typ nemovitosti:
    Byt
  • Dispozice:
    3+kk
  • Vlastnictví:
    OV
  • Podlaží:
    3
  • Podlahová plocha:
    115 m2
  • Terasa:
    128 m2
  • Rok výstavby:
    2025
  • Rok kolaudace:
    2025
  • Umístění objektu:
    Okraj
  • Voda:
    dálkový vodovod
  • Doprava:
    dálnice, MHD
  • Topeni:
    ústřední dálkové
  • Odpad:
    kanalizace
  • Energetická náročnost:
    B - Velmi úsporná
  • Nabídky v okolí:
  • Informace o obci:
    Obec Beroun má 18794 obyvatel, z toho 12991 v produktivním věku.
    V obci se nachází pošta.
    V obci se nachází škola, popř. školka.
    V obci se nachází zdravotní zařízení.
    V obci je rozvod kanalizace.
    V obci je rozvod městské vody.
    V obci je rozvod plynu.
Lokalita: Nepilova , Beroun, okres Beroun, Česká republika Nepilova, Beroun


Podobné nabídky v okolí


Volná pracovní místa ExpertPrace.cz
  • Objednání prohlídky a více informací
  •  
  • Poslat na e-mail
  •  

Zasílání odkazu na realitu emailem: