• Sledovat cenu
  •  

Zasílání upozornění emailem:

Prodej bytu 3+kk, 109 m2 - Na Honech I, Zlín (již není v nabídce)

Cena: 6 980 000 Kč
Stav:archiv
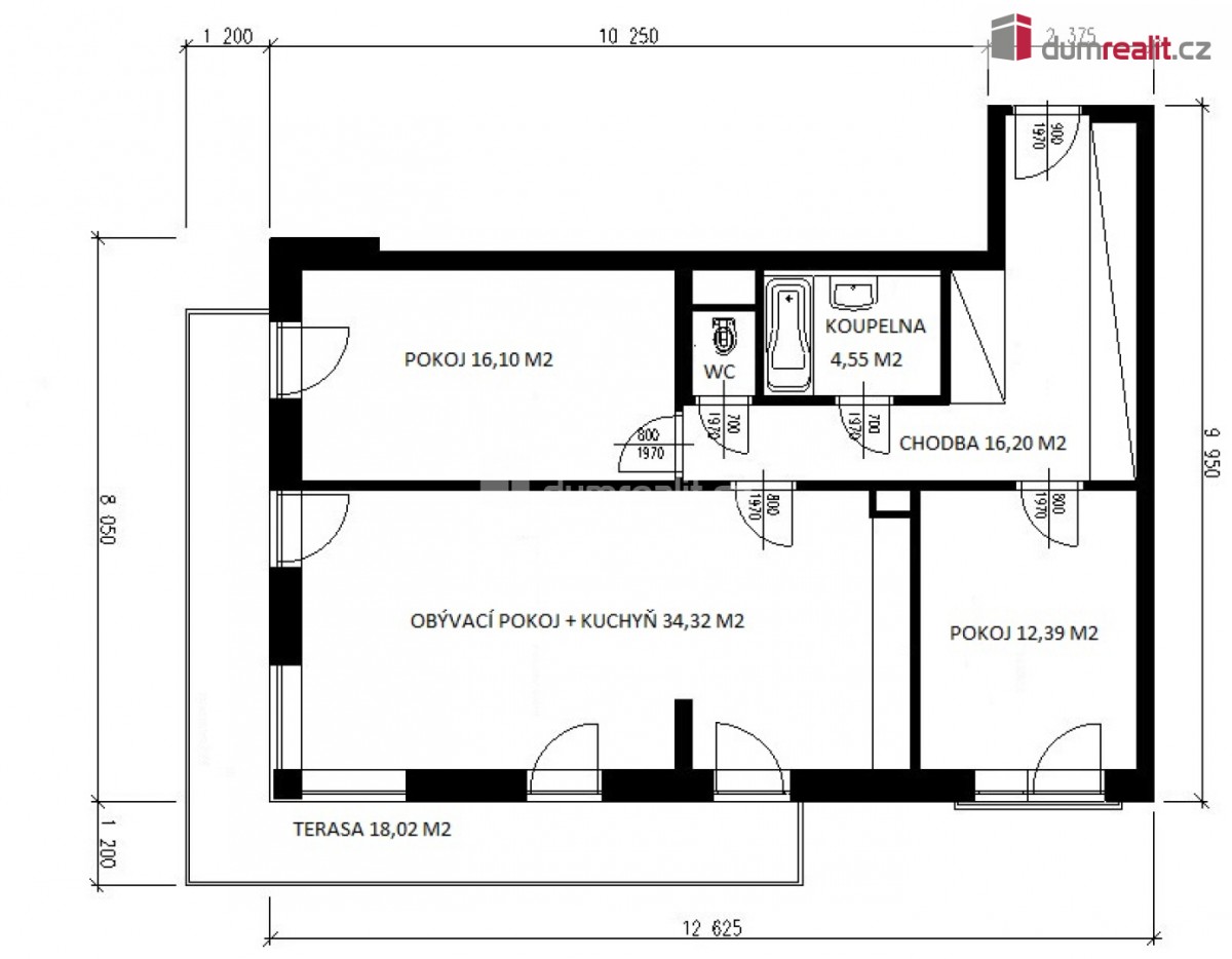
3+kk, 109 m2, cihlová, OV, 4. podlaží
Popis: včetně provize RK. Dumrealit. cz Vám nabízí ve výhradním zastoupení klienta koupi bytu 3+kk v žádané lokalitě Jižních Svahů, na Honech I ve Zlíně. Byt disponující nadstandartn...í celkovou plochou 109 m² s terasou 18 m² je umístěn ve čtvrtém nadzemním podlaží cihlového bytového domu včetně výtahu postaveného v roce 2006. Orientace bytu na východní a severní stranu zajišťuje příjemné klima i v době veder, nicméně pro ještě větší pohodlí rodiny byla nedávno v obývací části umístěna klimatizace zn. Sinclair, stín poskytne i venkovní výsuvná markýza. Terasa lemující celý byt je přístupná jak z obývacího pokoje tak z kuchyňského koutu a ložnice rodičů a umožňuje příjemnou relaxaci i malé zahradničení se skvělým výhledem na krajské město v údolí. Majitelé při realizaci svého prvního bydlení mysleli na praktičnost, pohodlnost ale i funkčnost, proto je na vinylové chodbě, která prochází celým bytem, umístěn dostatek úložných vestavěných prostor stejně jako v ložnici. Vstup do chodby a bytu zajišťují bezpečnostní dveře BEDEX s digitálním dveřním WIFI kukátkem. Interiérové dveře a zárubně jsou dýhované zn. Sapeli. V neprůchozí ložnici a samostatném dětském pokoji je položen zátěžový koberec, v obývací části je položena lamino podlaha a v kuchyňském koutu keramika. Tu najdeme i v koupelně s vanou a otopným žebříkem, stejně jako na samostatné toaletě. V prostorách kuchyně, která volně navazuje na obývací pokoj, je na míru zhotovena kuchyňská linka s kompaktní pracovní plochou a granitovým dřezem. Její bílá horní dvířka i spodní úložné prostory v imitaci dubu se šuplíky s tichým dojezdem jsou naprosto dostačující a vše v nich má své předem určené místo. Jistě potěší i myčka Miele, trouba Siemens a nově zakoupená indukční deska Bosch, stejně jako odsavač par se zpětnou klapkou. Majiteli bylo myšleno i na občasnou potřebu práce z domova, nechali si na míru zhotovit menší pracovní kancelářský kout, který lze po dohodě přenechat novým majitelům. Kompletní elektroinstalace v mědi je samozřejmostí, po bytě je rozveden TV signál, internetové připojení, lze využít i SAT a kabelovou televizi. Celý byt je řešen jako bezbariérový. Jeho celkovou dispozici si můžete prohlédnout na přiložených fotografiích. Je třeba i zmínit výhodu vlastního zděného sklepa o velikosti 6 m², který si majitelé pořídili ve vedlejším domě a jehož prodej je součástí kupní ceny. Je zde i možnost přenechat budoucímu majiteli blízké vnitřní parkovací stání, které si majitelé smluvně pronajímají od statutárního města Zlín. Ačkoliv ulice Na Honech I patří ke klidné části Jižních Svahů, vše potřebné pro občanský život je v blízkosti, a to ať už točna MHD, supermarket Billa, koupaliště Panorama nebo nově zbudovaný Centrální park. Přijďte se podívat a určitě nebudete litovat. Naše makléřka se na Vás bude těšit. Ev. číslo: 648908. Energetický štítek: C (136 kWh/m2/rok).
  • Vložení inzerátu:
    4.11.2024
  • Kód:
    3879736
  • Typ nemovitosti:
    Byt
  • Typ budovy:
    Cihlová
  • Dispozice:
    3+kk
  • Vlastnictví:
    OV
  • Podlaží:
    4
  • Podlahová plocha:
    109 m2
  • Terasa:
    Ano
  • Sklep:
    Ano
  • Stav objektu:
    Velmi dobrý
  • Energetická náročnost:
    C - Úsporná
  • Ukazatel náročnosti:
    136 kWh/m2
  • Nabídky v okolí:
  • Informace o obci:
    Obec Zlín má 75469 obyvatel, z toho 51734 v produktivním věku.
    V obci se nachází pošta.
    V obci se nachází škola, popř. školka.
    V obci se nachází zdravotní zařízení.
    V obci je rozvod kanalizace.
    V obci je rozvod městské vody.
    V obci je rozvod plynu.

Podobné nabídky v okolí

Lokalita: Na Honech I , Zlín, okres Zlín, Česká republika Na Honech I, Zlín