• Sledovat cenu
  •  

Zasílání upozornění emailem:

Prodej bytu 3+kk, 100 m2 - Paťanka 2616, Praha (již není v nabídce)

Cena: 13 990 000 Kč
Stav:archiv
3+kk, 100 m2, cihlová, OV, 1. podlaží
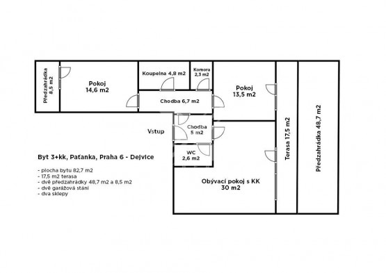
Popis: K prodeji nabízíme výjimečný, moderní byt 3+kk, v přízemí cihlového domu z roku 2006, který se nachází v ulici Paťanka, v Praze 6 - Dejvice - v rezidenční čtvrti Sladovny... - Podbaba. Jedná se o velmi klidnou lokalitu plnou zeleně, na dosah přírody, kousek od centra Prahy.

Jednotka o celkové ploše 100 m2 sestává ze dvou chodeb, koupelny s sociální zařízení WC, samostatného sociální zařízení WC, komory (šatny), dvou pokojů, prostorného obývacího pokoje s kuchyňským koutem a terasy. Ze všech pokojů vede vstup francouzskými okny na jednu z předzahrádek - větší 48, 7 m2, menší 8, 5 m2.

K bytu náleží dvě garážová stání a dva sklepy přímo v domě - přístupné po schodech nebo výtahem.

Byt je bezbariérový.

Nadstandardní vybavení - bezpečnostní dveře, dřevěná eurookna, dřevěná podlaha, dlažba a další. Při výstavbě byly použity pouze kvalitní materiály.
Kuchyně je kompletně vybavena vestavěnými elektrospotřebiči. V koupelně je vana, pračka a sušička.

Byt se prodává včetně veškerého vybavení, které vidíte na fotkách nebo ve videu.

Celkové měsíční náklady jsou cca 5000 Kč.

V blízkém okolí najdete veškerou občanskou vybavenost - školy, školky, obchody (Kaufland), sportoviště, polikliniky restaurace, dětská hřiště a další.

Skvělá dopravní dostupnost - 500 m zastávka autobusu, ze které jede 4 minuty přímý spoj na stanici metra Dejvická. Do centra Prahy je to MHD 10 - 15 minut.

Nabízí se zde spousta využití volného času - přírodní památka Baba, Šárecké údolí, park Stromovka nebo ZOOlogická zahrada, spousta turistických tras a cyklostezek.

Nemovitost lze financovat hypotečním úvěrem, který Vám rádi pomůžeme zdarma vyřídit za nejlepších tržních podmínek.

PENB třídy C.

Doporučujeme Vám prohlídku.
  • Vložení inzerátu:
    8.9.2023
  • Kód:
    0211
  • Typ nemovitosti:
    Byt
  • Typ budovy:
    Cihlová
  • Dispozice:
    3+kk
  • Vlastnictví:
    OV
  • Podlaží:
    1
  • Podlahová plocha:
    100 m2
  • Terasa:
    17 m2
  • Sklep:
    Ano
  • Stav objektu:
    Novostavba
  • Rok výstavby:
    2006
  • Rok kolaudace:
    2006
  • Bezbariérový byt:
    Ano
  • Umístění objektu:
    Klidná část
  • Voda:
    dálkový vodovod
  • Plyn:
    plynovod
  • Odpad:
    kanalizace
  • Zařízený:
    Ano
  • Bezbariérový přístup:
    Ano
  • Energetická náročnost:
    C - Úsporná
  • Nabídky v okolí:
  • Informace o obci:
    Obec Praha má 1257158 obyvatel, z toho 889974 v produktivním věku.
    V obci se nachází pošta.
    V obci se nachází škola, popř. školka.
    V obci se nachází zdravotní zařízení.
    V obci je rozvod kanalizace.
    V obci je rozvod městské vody.
    V obci je rozvod plynu.

Podobné nabídky v okolí

Lokalita: Paťanka 2616, Praha, Česká republika Paťanka 2616, Praha