• Sledovat cenu
  •  

Zasílání upozornění emailem:

Prodej bytu 3+1, 92 m2 - Palackého náměstí 3, Zdice, okr. Beroun (již není v nabídce)

Cena: 4 798 000 Kč
Stav:archiv
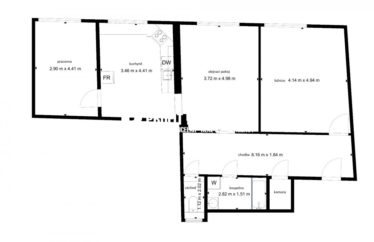
3+1, 92 m2, cihlová, OV, 2. podlaží
Popis: Dobrý den , zdraví vás Petr Landa, ze Zdic u Berouna, které leží 40km jihozápadně od Prahy na dálnici D5 , mezi Prahou (28km) a Plzní (52km). V kotlině ve které se Zdice nachází protéká řeka Litavka, podél které vede cy...klostezka, kterou se dostanete do práce nebo třeba až na Prahu. Město má samozřejmě veškerou občanskou vybavenost jako jsou, školy, školky, lékaře , lekárny, několik obchodu s potravinami a takto bych mohl pokračovat , no prostě na co si jen vzpomenete, ale dost o Zdicích.

Pojdtě se podívat na byt který je od centra co by kamenem dohodil. Ve 2. NP (druhé nadzemní patro) , dispozičně 3+1 o 92m2, kde osu bytu tvoří bezkonkurenčně dlouhá a prostorná chodba která má 15m2. V levé části chodby je koupelna s vanou , el. kotlem, na ohřev teplé vody a samostatné sociální zařízení WC . V pravé části chodby je 20, 5m2 velká ložnice, dále pak obývací pokoj (15, 2m2), který je průchozí do kuchyně 15m2 ze které proběhnete i do poslední místnosti - pracovny (12, 8m2).
K bytu je k užívání i dvorek s posezením a zastřešenou pergolou, kterou oceníte nejen při letních přehánkách.
Jsem připraven na telefonu, ohledně dohodnutí si osobní prohlídky.

V případě více zájemců může být upřednostněna výhodnější nabídka .
  • Vložení inzerátu:
    4.10.2022
  • Kód:
    PL100/30
  • K dispozici od:
    0.0.0
  • Typ nemovitosti:
    Byt
  • Typ budovy:
    Cihlová
  • Dispozice:
    3+1
  • Vlastnictví:
    OV
  • Podlaží:
    2
  • Podlahová plocha:
    92 m2
  • Stav objektu:
    Velmi dobrý
  • Rok rekonstrukce:
    2019
  • Umístění objektu:
    Centrum
  • Voda:
    dálkový vodovod
  • Elektřina:
    230 V
  • Doprava:
    silnice, dálnice, MHD, autobus, vlak
  • Topeni:
    ústřední plynové
  • Plyn:
    plynovod
  • Odpad:
    kanalizace
  • Komunikace:
    asfaltová
  • Energetická náročnost:
    G - Mimořádne nehospodárná
  • Nabídky v okolí:
  • Informace o obci:
    Obec Zdice má 3973 obyvatel, z toho 2724 v produktivním věku.
    V obci se nachází pošta.
    V obci se nachází škola, popř. školka.
    V obci se nachází zdravotní zařízení.
    V obci je rozvod kanalizace.
    V obci je rozvod městské vody.
    V obci je rozvod plynu.

Podobné nabídky v okolí

Lokalita: Palackého náměstí 3, Zdice, okres Beroun, Česká republika Palackého náměstí 3, Zdice, okr. Beroun