• Sledovat cenu
  •  

Zasílání upozornění emailem:

Prodej bytu 3+1, 86 m2 - Legerova 888, Praha 2, Vinohrady, Praha (již není v nabídce)

Cena: 12 900 000 Kč
Stav:archiv
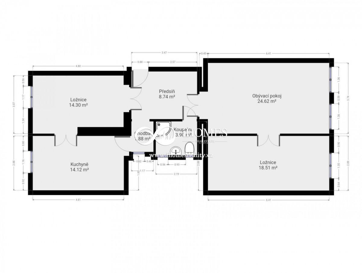
3+1, 86 m2, cihlová, OV, 4. podlaží
Popis: Podle domlouvy. www. ihomesreality. cz Vyhradně nabízí Vám na prodej vyjímečný byt s garaží a s velkym sklepem 10m2 v centru Prahy. Byt je po kompletní rekonstrukci a plně zařízený. Dispozičně ...e + 1 kuchyň">3+1 96 m a se sklepem a s garaži ve vnitrobloku , Byt je ve 4. patře činžovního domu v Praze 2, ul. Legerova (v domě je výtah). Obývací pokoj, kuchyňská linka, 2 x ložnice (jedna ložnice je orientována do vnitrobloku), koupelna se sprchovým koutem a toaletou. Zastávka metra I. P. Pavlova 5 minut klidné chůze. Veškerá občanská vybavenost je dostupná v místě, park Folimanka a tram. / metro C i A do 5 min. chůze.
  • Vložení inzerátu:
    3.1.2023
  • Kód:
    247/3535
  • Typ nemovitosti:
    Byt
  • Typ budovy:
    Cihlová
  • Dispozice:
    3+1
  • Vlastnictví:
    OV
  • Podlaží:
    4
  • Podlahová plocha:
    86 m2
  • Plocha parcely:
    83 m2
  • Balkón:
    Ano
  • Sklep:
    10 m2
  • Stav objektu:
    Dobrý
  • Bezbariérový byt:
    Ano
  • Telekomunikace:
    Telefon, Internet, Kabelová televize
  • Voda:
    dálkový vodovod
  • Elektřina:
    230 V
  • Doprava:
    MHD
  • Topeni:
    ústřední plynové
  • Plyn:
    plynovod
  • Odpad:
    kanalizace
  • Komunikace:
    asfaltová
  • Bezbariérový přístup:
    Ano
  • Energetická náročnost:
    G - Mimořádne nehospodárná
  • Nabídky v okolí:

Podobné nabídky v okolí

Lokalita: Legerova 888, Praha 2, Vinohrady, Praha, Česká republika Legerova 888, Praha 2, Vinohrady, Praha