Prodej bytu 3+1, 85 m2 - Zázvorkova, Praha 13, Praha (již není v nabídce)
Cena:
8 190 000 Kč
Stav:archiv
3+1, 85 m2, panelová, družstevní, 10. podlaží
Popis:
+popl. 5143 Kč. ________________________________________
Prodej bytu 3+1, 85, 2 m², Praha 13 – Stodůlky, Zázvorkova 1997/26
Hledáte prostorný byt pro rodinu, ve skvělé lokalitě P...rahy 13, s moc hezkým výhledem, nízkými provozními náklady a okamžitou možností nastěhování? Právě jste ho našli.
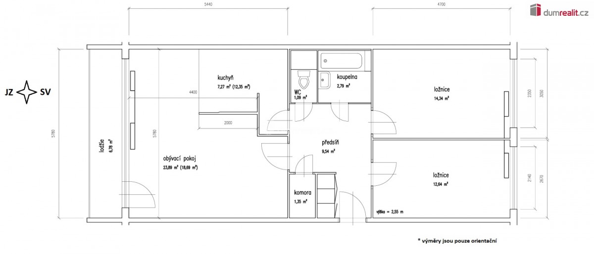
Nabízím k prodeji družstevní byt 3+1 o velikosti 85, 2 m², který se nachází v 9. patře revitalizovaného panelového domu v žádané lokalitě Stodůlky – Praha 13.
________________________________________
Dispozice a stav bytu
Byt má velice prakticky řešenou dispozici, ideální pro rodinu s dětmi:
• prostorný obývací pokoj
• dvě samostatné ložnice
• kuchyně
• koupelna ve velice udržovaném stavu s původním jádrem
• samostatné sociální zařízení WC
• komora přímo v bytě
• zasklená lodžie
• sklepní kóje
Ložnice jsou orientované na severovýchod s otevřeným výhledem, společné prostory bytu pak do klidného vnitrobloku na jihozápad, díky čemuž je byt světlý, vzdušný a příjemný po celý den.
Byt je ve velice dobrém a udržovaném stavu, prošel částečnou rekonstrukcí:
• původní bytové jádro
• původní rozvody elektřiny
• plastová okna se žaluziemi
• podlahy: plovoucí PVC, lino a dlažba
• velkorysé úložné prostory na chodbě
________________________________________
Dům a provoz
Panelový dům je po kompletní revitalizaci, což se pozitivně odráží na:
• nízkých měsíčních nákladech
• dobrém technickém stavu domu (FVE, vlastní kotelna s tepelnými čerpadly)
• kultivovaném společném prostoru
________________________________________
Lokalita – Praha 13, Stodůlky
Jedna z nejvyhledávanějších lokalit pro rodiny s dětmi v Praze.
• metro B – Lužiny (výborná dostupnost do centra)
• několik mateřských a základních škol v docházkové vzdálenosti
• nákupní centra, supermarkety, lékárny
• parky a zeleň ideální pro sport i relax (dětská hřiště, cyklostezky)
• ☕ restaurace, kavárny, bistra
• sportovní zařízení, fitness centra, plavecký bazén
Lokalita nabízí kompletní občanskou vybavenost a zároveň dostatek klidu pro rodinné bydlení.
________________________________________
⭐ 3 největší benefity bytu
1. Cena 8. 190. 000 Kč skvělý poměr ceny a velikosti bytu v rámci Prahy 13
2. Výhled z oken – otevřený, ničím nerušený, ve vysokém patře
3. Lokace – Stodůlky = ideální místo pro rodinu, metro, školy, zeleň
Další plusy, které stojí za zmínku:
• 9. patro = světlo, klid a soukromí
• zasklená lodžie + sklep + komora
• byt volný k nastěhování ihned
• nízké provozní náklady
• praktická dispozice 3+1, 82, 5 m²
________________________________________
Vlastnictví a financování
• družstevní vlastnictví
• aktuálně bez možnosti převodu do osobního vlastnictví
• koupě možná úvěrem – s financováním vám velice ráda pomohu
________________________________________
________________________________________
Neváhejte mě kontaktovat pro více informací nebo domluvení Ev. číslo: 654685. Energetický štítek: B (73 kWh/m2/rok).
- Vložení inzerátu:
16.2.2026
- Kód:
4116659
- Typ nemovitosti:
Byt
- Typ budovy:
Panelová
- Dispozice:
3+1
- Vlastnictví:
Družstevní
- Podlaží:
10
- Podlahová plocha:
85 m2
- Lodžie:
Ano
- Sklep:
Ano
- Stav objektu:
Dobrý
- Zařízený:
Ano
- Energetická náročnost:
B - Velmi úsporná
- Ukazatel náročnosti:
73 kWh/m2
- Nabídky v okolí:
Lokalita:
Zázvorkova , Praha 13, Praha, Česká republika
Zázvorkova, Praha 13, Praha