• Sledovat cenu
  •  

Zasílání upozornění emailem:

Prodej bytu 3+1, 84 m2 - Všeradice , okr. Beroun

Cena: 4 750 000 Kč
Stav:Volný
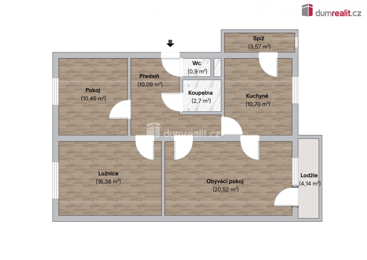
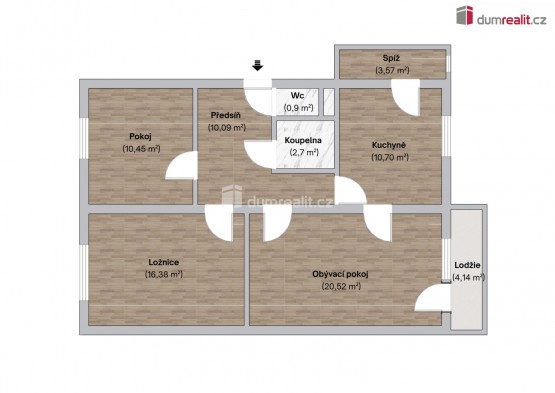
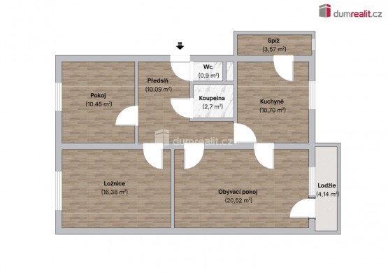
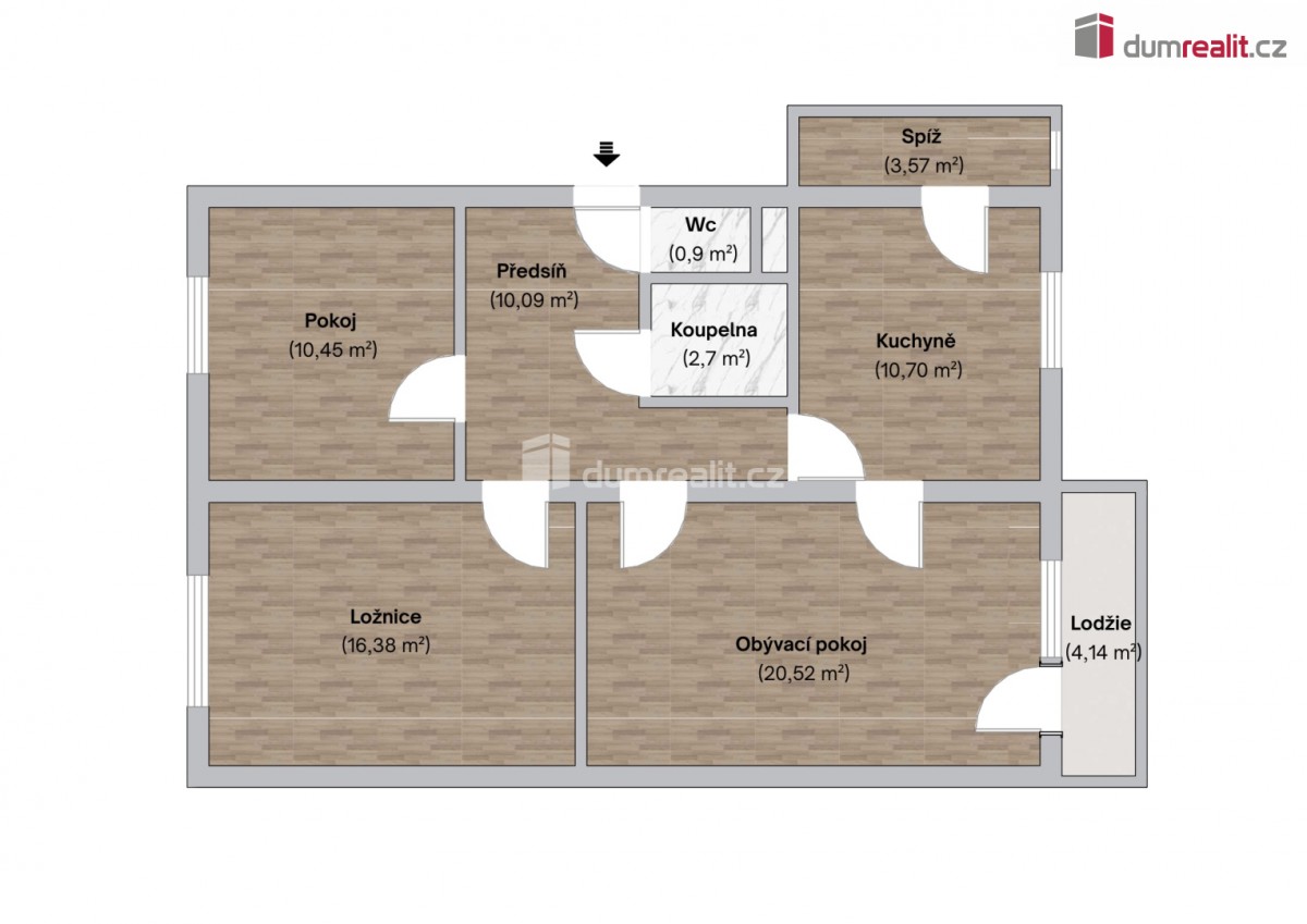
3+1, 84 m2, OV, 3. podlaží
Popis: Dumrealit. cz Vám nabízí prodej bytu 3+1 84, 6 m² v OV (osobní vlastnictví) s L/S/G/, obec Všeradice.
Jedná se o prostorný světlý byt s neprůchozími pokoji, samostatnou koupelnou s... rohovou vanou a samostatným sociální zařízení WC. U kuchyně je praktická komora, další komora je přímo vedle bytu na chodbě. Byt je ve 2. patře (3. NP (třetí nadzemní patro)). Z obývacího pokoje je vstup na lodžii s výhledy do zeleně a na les - Brdské Hřebeny. K bytu patří garáž, 2 krát sklep, parkování je možné ještě před domem. Dům má novou střechu včetně okapů. Stavba je z r. 1990 z tvárnic a cihel. Dům je napojen na vlastní studnu, na obecní kanalizaci. Byt je vytápěn samostatným kotlem na tuhá paliva s rozvody do radiátorů, možno vyřešit plynovým kotlem. Do domu je přiveden plyn. V r. 2020 byly vyměněny okna za plastová. Podlahová plocha bytu je 75 m², pokoj 1. 14 m², pokoj 2. 20 m², pokoj 3. 16 m², kuchyně 14 m², koupelna 2, 7 m², lodžie má 4 m², dále pak sklepy a komora. Byt se nachází v centru obce, nedaleko autobusové zastávky, obchodu Coop, kavárny, zámeckého areálu Všerad, kde je restaurace, minipivovar, sportovní zázemí hřiště, tenisových kurtů, minigolfu. V obci působí i zájmové kroužky pro děti i dospělé. V obci je MŠ. Dopravní spojení s okolím zajišťují autobusy a vlak směr Zadní Třebaň - Lochovice. Na dálnici D5 exit 18 do Berouna je to 15 km (13 minut), do Zdic exit 28 je to 13, 5 km (14 minut), na Dobříš D4 18 km (20 minut). Byt je možné koupit na hypoteční úvěr, který vám pomůžeme zajistit. Více info u makléře M. Kareše Ev. číslo: 652478. Energetický štítek: G
  • Vložení inzerátu:
    17.9.2025
  • Kód:
    3990698
  • Typ nemovitosti:
    Byt
  • Dispozice:
    3+1
  • Vlastnictví:
    OV
  • Podlaží:
    3
  • Podlahová plocha:
    84 m2
  • Lodžie:
    Ano
  • Sklep:
    Ano
  • Stav objektu:
    Dobrý
  • Energetická náročnost:
    G - Mimořádne nehospodárná
  • Nabídky v okolí:
  • Informace o obci:
    Obec Všeradice má 427 obyvatel, z toho 302 v produktivním věku.
    V obci se nachází pošta.
    V obci se nachází zdravotní zařízení.
    V obci je rozvod plynu.
Lokalita: Všeradice , okres Beroun, Česká republika Všeradice , okr. Beroun, Středočeský kraj

Kontakt

Martin Kareš


Podobné nabídky v okolí


Volná pracovní místa ExpertPrace.cz
  • Objednání prohlídky a více informací
  •  
  • Poslat na e-mail
  •  

Zasílání odkazu na realitu emailem: