• Sledovat cenu
  •  

Zasílání upozornění emailem:

Prodej bytu 3+1, 81 m2 - Brněnská 762, Jevíčko, okr. Svitavy (již není v nabídce)

Cena: 2 499 000 Kč
Stav:archiv
3+1, 81 m2, cihlová, družstevní, 4. podlaží
Popis: Nabízíme Vám ke koupi družstevní byt o dispozici 3+1 s lodžií. Po založení SVJ a po splacení anuity v hodnotě 38. 000, - Kč bytovému družstvu je možný převod bytu do osobního vlastn...ictví.
Čtyřpodlažní bytový dům se nachází ve vyhledávané lokalitě města Jevíčka, na ulici Brněnská. Nachází se v blízkosti nákupního centra Penny a autobusové zastávky. Jedná se o prosvětlený byt ve 4. nadzemním podlaží s moc hezkým výhledem do okolí. V cihlovém domě lze využívat společnou kolárnu ve sklepním prostoru. Celková plocha bytu je 81 m² (včetně lodžie 5 m² a sklepní kóje 4 m²). Byt. jednotka má vytápění a ohřev vody zajištěn vlastním plynovým kotlem. V bytě se nachází zděné jádro, je vyklizený a vymalovaný. Byt je svou dispozicí, kdy jsou všechny pokoje přístupné z chodby, vhodný jak na investici k pronájmu tak i k bydlení. Energetická náročnost budovy: třída D. Měsíční náklady na bydlení: 4. 500 Kč.

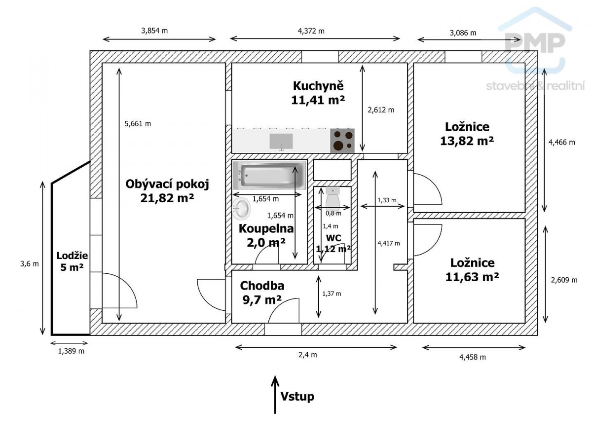
Dispozice bytu: předsíň (9 m²), koupelna s vanou (3, 4 m²), samostatné sociální zařízení WC (1 m²), kuchyň (11, 4 m²), obývací pokoj (22 m²) se vstupem na lodžii (5 m²), pokoj 1 (11, 6 m²), pokoj 2 (13, 8 m²).

Jevíčko je město na Moravě, tvoří centrum severní části Malé Hané. Administrativně náleží do okresu Svitavy v Pardubickém kraji a má status pověřené obce. Žije zde 2800 obyvatel. Historické jádro města bylo prohlášeno městskou památkovou zónou. Jevíčko nabízí možnost vyjížděk po značených cyklotrasách v okolí, dále využití rekreačního areálu Žlíbka s tenisovými kurty a přírodním koupalištěm. Nachází se zde veškerá občanská vybavenost - základní a mateřská škola, gymnázium, odborný léčebný ústav, menší nákupní střediska přímo na náměstí.
  • Vložení inzerátu:
    14.11.2022
  • Kód:
    001
  • Typ nemovitosti:
    Byt
  • Typ budovy:
    Cihlová
  • Dispozice:
    3+1
  • Vlastnictví:
    Družstevní
  • Podlaží:
    4
  • Podlahová plocha:
    81 m2
  • Lodžie:
    5 m2
  • Sklep:
    5 m2
  • Stav objektu:
    Velmi dobrý
  • Umístění objektu:
    Centrum
  • Voda:
    dálkový vodovod
  • Doprava:
    silnice, autobus
  • Topeni:
    lokální plynové
  • Plyn:
    plynovod
  • Odpad:
    kanalizace
  • Komunikace:
    asfaltová
  • Energetická náročnost:
    D - Méne úsporná
  • Nabídky v okolí:
  • Informace o obci:
    Obec Jevíčko má 2905 obyvatel, z toho 2005 v produktivním věku.
    V obci se nachází pošta.
    V obci se nachází škola, popř. školka.
    V obci se nachází zdravotní zařízení.
    V obci je rozvod kanalizace.
    V obci je rozvod městské vody.
    V obci je rozvod plynu.

Podobné nabídky v okolí

Lokalita: Brněnská 762, Jevíčko, okres Svitavy, Česká republika Brněnská 762, Jevíčko, okr. Svitavy