• Sledovat cenu
  •  

Zasílání upozornění emailem:

Prodej bytu 3+1, 80 m2 - Jabloňová 1, Praha (již není v nabídce)

Cena: 5 490 000 Kč
Stav:archiv
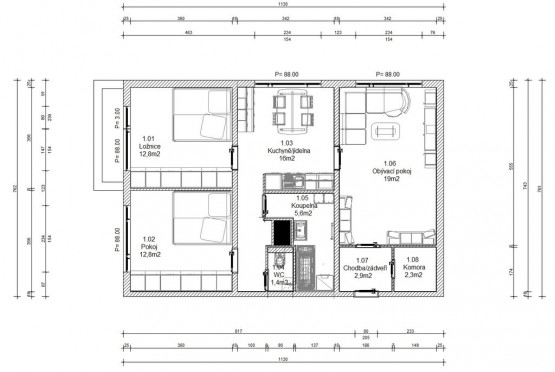
3+1, 80 m2, panelová, OV, 12. podlaží
Popis: K přímému prodeji nabízíme zrekonstruovaný byt o dispozici 3+1 o výměře 80 m2, součástí bytu je balkón s výměrou 3 m2 s moc hezkým výhledem na celou Prahu. Byt ...se nachází ve 12. NP (dvanácté nadzemní patro) panelového domu v ulici Jabloňová, Praha - Záběhlice. Byt prošel celkovou rekonstrukcí - nové podlahy, okna, dveře, elektrické rozvody, zděné jádro. V bytě je krásná moderní koupelna s vanou, umyvadlem a sociální zařízení WC, také zhotovená příprava ke kuchyňské lince dle vlastních představ. Byt se skládá z chodby, komory, obývacího pokoje - 19 m2, kuchyně s jídelnou - 16 m2, koupelny - 5, 6 m2 + sociální zařízení WC zařízení - 1, 4 m2, dále z ložnice - 12, 8 m2 a pokoje - 12, 8 m2. K bytu náleží sklepní kóje v 1. PP. Celková podlahová plocha činí 80 m2.

V okolí je veškerá občanská vybavenost, v bezprostřední blízkosti se nachází zdravotní středisko a supermarket Tesco, Albert. Dále je zde v docházkové vzdálenosti dětské hřiště 200 m, škola 100 m, 2 školky 200 m, pošta 200 m, lékárna. Lokalita má výbornou dopravní dostupnost, autobusová zastávka před domem, v docházkové vzdálenosti se nachází stanice metra a tramvajové zastávky, parkování za domem. Městská část Záběhlice nabízí skvělé vyžití pro děti i dospělé, v blízkosti nalezneme sportovní areál Hamr a Hamerský rybník, Hostivařský lesopark, přehradu a Trojmezí - nezastavěnou zeleň.
  • Vložení inzerátu:
    18.9.2019
  • Kód:
    00113
  • K dispozici od:
    0.0.0
  • Typ nemovitosti:
    Byt
  • Typ budovy:
    Panelová
  • Dispozice:
    3+1
  • Vlastnictví:
    OV
  • Podlaží:
    12
  • Podlahová plocha:
    80 m2
  • Balkón:
    3 m2
  • Sklep:
    Ano
  • Stav objektu:
    Velmi dobrý
  • Umístění objektu:
    Centrum
  • Telekomunikace:
    Telefon, Internet, Satelit, Kabelová televize, Kabelové rozvody
  • Voda:
    dálkový vodovod
  • Elektřina:
    230 V
  • Doprava:
    silnice, MHD, autobus
  • Topeni:
    ústřední dálkové
  • Plyn:
    plynovod
  • Odpad:
    kanalizace
  • Komunikace:
    asfaltová
  • Energetická náročnost:
    G - Mimořádne nehospodárná
  • Nabídky v okolí:
  • Informace o obci:
    Obec Praha má 1257158 obyvatel, z toho 889974 v produktivním věku.
    V obci se nachází pošta.
    V obci se nachází škola, popř. školka.
    V obci se nachází zdravotní zařízení.
    V obci je rozvod kanalizace.
    V obci je rozvod městské vody.
    V obci je rozvod plynu.

Podobné nabídky v okolí

Lokalita: Jabloňová 1, Praha, Česká republika Jabloňová 1, Praha