Prodej bytu 3+1, 79 m2 - Ahepjukova 2791, Moravská Ostrava, Ostrava, okr. Ostrava-město (již není v nabídce)
Cena:
2 250 000 Kč
Stav:archiv
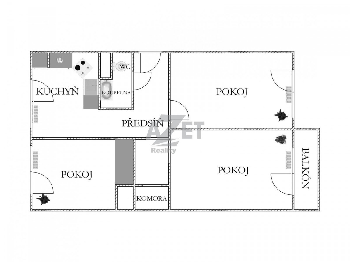
3+1, 79 m2, panelová, družstevní, 2. podlaží
Popis:
Naše společnost Vám v exkluzivním zastoupení majitele nabízí k prodeji prostorný byt s balkónem po částečné rekonstrukci ve 2. NP (druhé nadzemní patro) z osmi. Bytové družstvo jednoho vchodu. Velmi žádaná lokalita, plná z...eleně s výbornou dostupností do centra města. Bezbariérový přístup od přízemí až na samotné patro. Neprůchozí pokoje. Plastová okna se žaluziemi a parapety. Kombinované podlahy (plovoucí, PVC linoleum, parketová podlaha, dlažba). Rohová kuchyňská linka se spotřebiči a vyhrazeným místem pro lednici a spíž. Sedací vana s místem na pračku + sociální zařízení WC Kombi. Litinové ústřední topení. Vestavěná skříň v ložnici. Komora na uložení věcí v předsíni. Výhled na 2 světové strany (severovýchod vs jihozápad). Na balkón se vstupuje z obývacího pokoje (výhled na severovýchodní stranu). Nízké měsíční náklady (4800, - Kč včetně FO). Kompletní revitalizace obytného domu proběhla. Velkou výhodou je bezprostřední dostupnost zastávek MHD (2 minuty pěší chůzí) a dostatek parkovacích míst. Maximální občanská vybavenost ve všech směrech. Doporučujeme Vám prohlídku. Advokátní úschova i vypracování kupních smluv v ceně nabídky. Průkaz energetické náročnosti budovy ve třídě C. Finanční poradenství zajistíme zdarma se zvýhodněným úročením. Pro více informací kontaktujte našeho makléře. Těšíme se na Vaši návštěvu.
- Vložení inzerátu:
25.9.2023
- Kód:
1170
- Typ nemovitosti:
Byt
- Typ budovy:
Panelová
- Dispozice:
3+1
- Vlastnictví:
Družstevní
- Podlaží:
2
- Podlahová plocha:
79 m2
- Balkón:
4 m2
- Sklep:
1 m2
- Stav objektu:
Dobrý
- Bezbariérový byt:
Ano
- Telekomunikace:
Internet, Kabelová televize
- Voda:
dálkový vodovod
- Elektřina:
230 V
- Doprava:
silnice, dálnice, MHD, autobus, vlak
- Topeni:
ústřední dálkové
- Plyn:
plynovod
- Odpad:
kanalizace
- Komunikace:
asfaltová
- Bezbariérový přístup:
Ano
- Energetická náročnost:
C - Úsporná
- Podle vyhlášky:
c. 78/2013 Sb.
- Ukazatel náročnosti:
84 kWh/m2
- Nabídky v okolí: