• Sledovat cenu
  •  

Zasílání upozornění emailem:

Prodej bytu 3+1, 77 m2 - Flöglova 1504, Praha (již není v nabídce)

Cena: 5 950 000 Kč
Stav:archiv
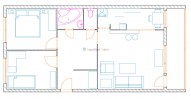
3+1, 77 m2, panelová, družstevní, 4. podlaží
Popis: V exkluzivním zastoupení nabízíme k prodeji byt 3+1 o výměře 77 m² v družstevním vlastnictví ve 3. patře panelového domu v ulici Flöglova ve Stodůlkách. Byt zatím není možné převést ...do osobního vlastnictví, hypoteční úvěr tak lze čerpat pouze v případě ručení jinou nemovitostí. Zbytková anuita je nulová. Byt je je po částečné rekonstrukci - kuchyň, plastová okna, podlahy, zděné jádro. K bytu náleží lodžie a sklepní kóje umístěná v suterénu. Okna dvou ložnic jsou orientována na sever, lodžie je orientována na jih do vnitrobloku. Dům prošel rovněž téměř kompletní revitalizací: nová střecha, nové stoupačky (vertikální svody), okna, VZT, nový výtah, nové vchodové dveře (zvonky), zateplení. V lokalitě úplná občanská vybavenost: Metro B - Stodůlky 3 min pěšky. Obchody, školy, školky, dětská hřiště, vše v pěší dostupnosti. Obchodní centrum Zličín se spoustou obchodů, restaurací a dalších služeb zhruba 15 min. pěšky. Zajištění financování či rekonstrukce na míru je u nás samozřejmostí. Neváhejte mne kontaktovat pro bližší informace či osobní prohlídku. Zájemce si vyhrazuje právo prodat dr. podíl nejvýhodnější nabídce.
  • Vložení inzerátu:
    3.7.2021
  • Kód:
    0175
  • Typ nemovitosti:
    Byt
  • Typ budovy:
    Panelová
  • Dispozice:
    3+1
  • Vlastnictví:
    Družstevní
  • Podlaží:
    4
  • Podlahová plocha:
    77 m2
  • Stav objektu:
    Velmi dobrý
  • Umístění objektu:
    Centrum
  • Plyn:
    plynovod
  • Odpad:
    kanalizace
  • Energetická náročnost:
    C - Úsporná
  • Nabídky v okolí:
  • Informace o obci:
    Obec Praha má 1257158 obyvatel, z toho 889974 v produktivním věku.
    V obci se nachází pošta.
    V obci se nachází škola, popř. školka.
    V obci se nachází zdravotní zařízení.
    V obci je rozvod kanalizace.
    V obci je rozvod městské vody.
    V obci je rozvod plynu.

Podobné nabídky v okolí

Lokalita: Flöglova 1504, Praha, Česká republika Flöglova 1504, Praha