• Sledovat cenu
  •  

Zasílání upozornění emailem:

Prodej bytu 3+1, 76 m2 - Fibichova, Nové Město, Karviná, okr. Karviná (již není v nabídce)

Cena: 1 650 000 Kč
Stav:archiv
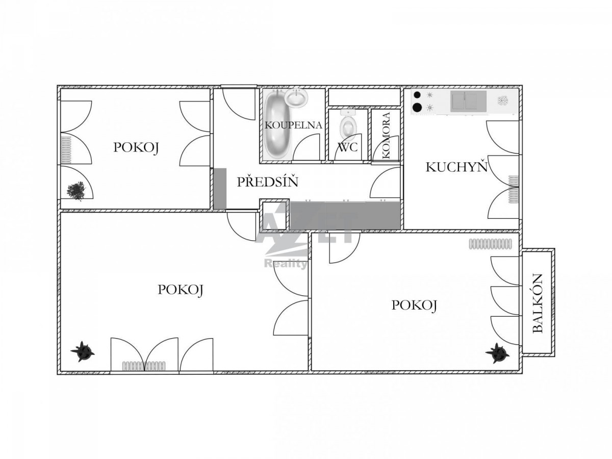
3+1, 76 m2, cihlová, OV, 4. podlaží
Popis: Úvod:

Naše společnost Vám nabízí prostorný byt 3+1 v osobním vlastnictví s balkónem a komorou ve 4. nadzemním podlaží ze čtyř. Nízkopodlažní cihlová zástavba. Původní stav. Zděné... bytové jádro. Vhodná rekonstrukce dle vlastní představy. Velmi nízké měsíční náklady včetně FO 2611, - Kč. Dva ze tří pokojů jsou průchozí. Kombinované podlahy z PVC linolea a parket. Výhled na 3 světové strany (jihovýchod - největší pokoj vs severovýchod - kuchyň + pokoj vs jihozápad - ložnice). Velká kuchyně s původní linkou. Koupelna se zapuštěnou vanou. Samostatné sociální zařízení WC Kombi. Komora s využitím na pračku a uloženi věcí. Vyvýšené stropy. Veškerý nábytek na fotografiích v předsíni je součástí nabídky. Plastová okna s parapety. K bytové jednotce náleží sklep (6 m2) a možnost využívat společnou půdu i kolárnu. Vstupní vchod na čip. Nespočet parkovacích míst. Bezprostřední dostupnost MHD.

Potenciál a přednosti nemovitosti:

1. Celková rekonstrukce dle vlastní představy.
2. Dispozice bytu se dá navýšit na 4+kk probouráním příčky kuchyně a rozdělením největšího pokoje.
3. Zvětšení koupelny na úkor sociální zařízení WC a komory. Poté se může realizovat nová vana se sprchovacím koutem a sociální zařízení WC Geberit.
4. Nízké měsíční náklady.
5. Vchod není zatížen úvěrem na revitalizaci.
6. Velké půdní a sklepní prostory.
7. Vyvýšené stropy.
8. Balkón
9. Osobní vlastnictví.

Rozměry místností:

Obývací pokoj 1 - 19. 9 m2
Obývací pokoj 2 - 17. 5 m2
Obývací pokoj 3 - 12. 7 m2
Kuchyň - 9. 0 m2
Předsíň - 8. 7 m2
Koupelna - 2. 4 m2
Balkón - 1. 6 m2
Spíž - 1. 5 m2
sociální zařízení WC - 1. 0 M2
Sklep - 1. 6 m2
- - - - - - - - - - - - - - - - - - - - - - - - - - - - - -
Celkem - 75, 9 m2

Revitalizace obytného domu:

Plastová okna s parapety (2013), vstupní vchod s poštovními schránkami.
Aktuálně neprobíhá žádný úvěr na revitalizaci vchodu.

Závěr:

Nemovitost je k dispozici od 1. 7. 2024. Maximální občanská vybavenost ve všech směrech. Doporučujeme Vám prohlídku. Průkaz energetické náročnosti dle zákona inzerujeme v energetické třídě G. Finanční poradenství zajistíme zdarma s výhodným úročením. Pro více informací kontaktujte našeho makléře.

Těšíme se na Vaší navštěvu.
  • Vložení inzerátu:
    23.11.2023
  • Kód:
    1217
  • Typ nemovitosti:
    Byt
  • Typ budovy:
    Cihlová
  • Dispozice:
    3+1
  • Vlastnictví:
    OV
  • Podlaží:
    4
  • Podlahová plocha:
    76 m2
  • Balkón:
    2 m2
  • Sklep:
    6 m2
  • Stav objektu:
    Dobrý
  • Bezbariérový byt:
    Ano
  • Telekomunikace:
    Internet, Kabelová televize
  • Voda:
    dálkový vodovod
  • Elektřina:
    230 V
  • Doprava:
    silnice, dálnice, MHD, autobus, vlak
  • Topeni:
    ústřední dálkové
  • Plyn:
    plynovod
  • Odpad:
    kanalizace
  • Komunikace:
    asfaltová
  • Bezbariérový přístup:
    Ano
  • Energetická náročnost:
    G - Mimořádne nehospodárná
  • Nabídky v okolí:

Podobné nabídky v okolí

Lokalita: Fibichova , Nové Město, Karviná, okres Karviná, Česká republika Fibichova, Nové Město, Karviná, okr. Karviná