• Sledovat cenu
  •  

Zasílání upozornění emailem:

Prodej bytu 3+1, 72 m2 - Velké Karlovice , okr. Vsetín (již není v nabídce)

Cena: 4 190 000 Kč
Stav:archiv
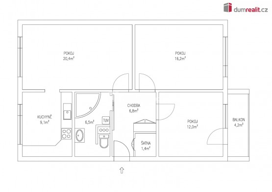
3+1, 72 m2, panelová, OV, 2. podlaží
Popis: Dumrealit. cz Vám nabízí prodej prostorného bytu o dispozici 3+1, výměře 72 m² ve Velkých Karlovicích, okres Vsetín. Byt. jednotka se nachází v panelovém domě ve 3 nadzemním podlaží... ze 4, bez výtahu. Byt má zděné jádro, lodžii 4. 2 m², sklepní kóji 2. 7 m², šatnu a původní rozvody. Vytápění ústřední - společným plynovým kotlem. Voda do objektu přivedena dálkovým vodovodem, splašková voda svedena do veřejné kanalizace. Ohřev užitkové vody vlastním elektrickým boilerem. Bytový dům prošel renovací ( zateplení obvodových zdí , fasáda , zateplení střechy, zasklení lodžií, výmalba společných a nebytových prostor). V domě jsou k dispozici veřejné prostory k užívání - sušárna, kolárna, lodžie v mezipatrech. Byt je ideální jak pro rodinné bydlení, tak i jako rekreační nemovitost díky výjimečné poloze v moc hezké přírodě Beskyd.
Ve Velkých Karlovicích veškerá občanská vybavenost a velmi dobrá dopravní obslužnost. Jedná se o velmi výjimečnou lokalitu v okolí krásná příroda, na dohled lyžařské areály, wellness zařízení, doporučuji prohlídku této nemovitosti.
Veškeré informace k nabídce Vám sdělím telefonicky či na osobní schůzce. Ev. číslo: 650006. Energetický štítek: D (149 kWh/m2/rok).
  • Vložení inzerátu:
    21.2.2025
  • Kód:
    3948837
  • Typ nemovitosti:
    Byt
  • Typ budovy:
    Panelová
  • Dispozice:
    3+1
  • Vlastnictví:
    OV
  • Podlaží:
    2
  • Podlahová plocha:
    72 m2
  • Lodžie:
    Ano
  • Sklep:
    Ano
  • Stav objektu:
    Velmi dobrý
  • Energetická náročnost:
    D - Méne úsporná
  • Ukazatel náročnosti:
    149 kWh/m2
  • Nabídky v okolí:
  • Informace o obci:
    Obec Velké Karlovice má 2596 obyvatel, z toho 1788 v produktivním věku.
    V obci se nachází pošta.
    V obci se nachází škola, popř. školka.
    V obci se nachází zdravotní zařízení.
    V obci je rozvod kanalizace.
    V obci je rozvod městské vody.
    V obci je rozvod plynu.

Podobné nabídky v okolí

Lokalita: Velké Karlovice , okres Vsetín, Česká republika Velké Karlovice , okr. Vsetín, Zlínský kraj