• Sledovat cenu
  •  

Zasílání upozornění emailem:

Prodej bytu 3+1, 72 m2 - Družstevní, Humpolec, okr. Pelhřimov (již není v nabídce)

Cena: 0 Kč/měsíc
Stav:archiv
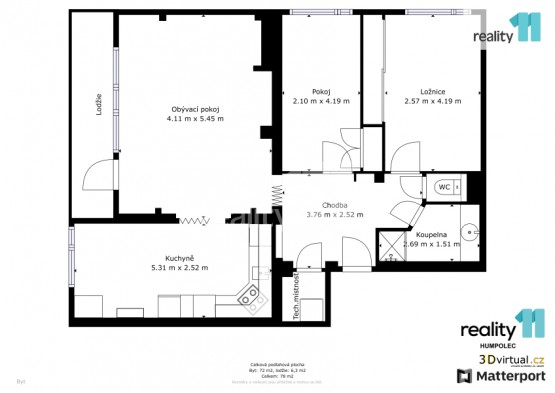
3+1, 72 m2, cihlová, OV, 2. podlaží
Popis: Reality 11 Vám zprostředkují koupi bytové jednotky ve druhém nadzemním podlaží zděného bytového domu ve Městě Humpolec, ulice Družstevní. Byt. jednotka 3+1 o podlahové ploše 72m² + l...odžie 6, 3m² a má toto dispoziční členění: vstupní chodba, koupelna (umyvadlo, sprchový kout), ložnice, dětský pokoj, komora, obývací pokoj, kuchyň s jídelním koutem a lodžie. V bytové jednotce proběhla rekonstrukce (nové rozvody elektřiny, nové rozvody vody, nová koupelna, nová plastová okna, zasklená lodžie, podlahy, kuchyňská linka). Vytápění bytu je řešeno ústředním topením - vlastní plynový kotel umístěný v komoře. K dispozici pro vás máme 3Dvirtuální prohlídku nemovitosti od společnosti 3Dvirtualcz, kde si byt můžete projít z pohodlí svého domova a následně si domluvit osobní prohlídku s makléřem společnosti. Dále pro vás máme k dispozici půdorysy bytové jednotky, který také zašleme na vyžádání. Celková podlahová plocha bytové jednotky je 72m² + 6, 30m² zasklená lodžie + 1, 90m² sklepní kóje. Byt. jednotka je v osobním vlastnictví a s případným financováním hypotečním úvěrem vám rádi pomůžeme. V případě zájmu o více informací, osobní prohlídku, kontaktujte kdykoliv makléře společnosti. Ev. číslo: 24198. Energetický štítek: D (160 kWh/m2/rok).
  • Vložení inzerátu:
    12.3.2023
  • Kód:
    3500303
  • Typ nemovitosti:
    Byt
  • Typ budovy:
    Cihlová
  • Dispozice:
    3+1
  • Vlastnictví:
    OV
  • Podlaží:
    2
  • Podlahová plocha:
    72 m2
  • Lodžie:
    Ano
  • Sklep:
    Ano
  • Stav objektu:
    Velmi dobrý
  • Energetická náročnost:
    D - Méne úsporná
  • Ukazatel náročnosti:
    160 kWh/m2
  • Nabídky v okolí:
  • Informace o obci:
    Obec Humpolec má 11104 obyvatel, z toho 7500 v produktivním věku.
    V obci se nachází pošta.
    V obci se nachází škola, popř. školka.
    V obci se nachází zdravotní zařízení.
    V obci je rozvod kanalizace.
    V obci je rozvod městské vody.
    V obci je rozvod plynu.

Podobné nabídky v okolí

Lokalita: Družstevní , Humpolec, okres Pelhřimov, Česká republika Družstevní, Humpolec, okr. Pelhřimov