• Sledovat cenu
  •  

Zasílání upozornění emailem:

Prodej bytu 3+1, 70 m2 - nám. Svobody, Pohořelice, okr. Brno-venkov (již není v nabídce)

Cena: 5 141 207 Kč
Stav:archiv
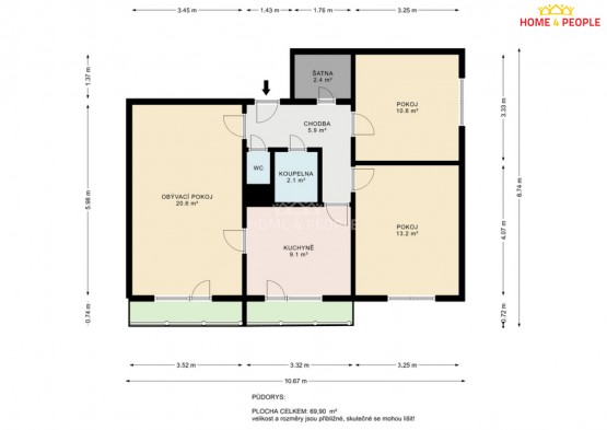
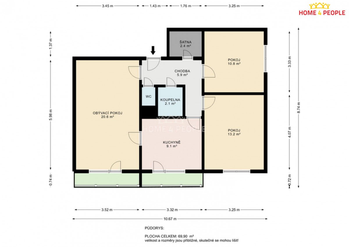
3+1, 70 m2, panelová, OV, 3. podlaží
Popis: Objevte svou novou příležitost na náměstí Svobody v Pohořelicích, kde se nachází byt 3+1 s užitnou plochou 70 m², který čeká na vaši kreativitu a osobní dotek. Tento prostorný byt, ... situovaný v srdci města, nabízí skvělou šanci pro ty, kteří hledají projekt k rekonstrukci a chtějí si vytvořit domov podle svých představ. S dvěma balkony, které poskytují nádherný výhled, budete mít možnost užívat si čerstvého vzduchu a slunečních paprsků přímo z pohodlí vašeho domova.

Interiér bytu je připraven na proměnu, což vám dává svobodu navrhnout si prostor přesně tak, jak si přejete. Prostorný obývací pokoj je ideálním místem pro rodinné chvíle a setkání s přáteli, zatímco kuchyně nabízí dostatek místa pro vaření a společné chvíle u stolu. Ložnice a dětský pokoj poskytují dostatek prostoru pro odpočinek a relaxaci, a vy si tak můžete vytvořit ideální zázemí pro celou rodinu.

Poloha tohoto bytu je jednou z jeho největších předností. Náměstí Svobody je centrem veškerého dění, s množstvím obchodů, restaurací a služeb na dosah ruky. Město Pohořelice je známé svou přátelskou atmosférou a bohatou historií, což z něj činí ideální místo pro život. Pokud hledáte investici nebo projekt, který si přetvoříte podle svých snů, neváhejte a přijďte se podívat na tento byt, který má obrovský potenciál stát se vaším vysněným domovem. Těšíme se na vaši návštěvu a na to, jak proměníte tuto nemovitost v místo, kde se budete cítit jako doma.

Neváhejte mě kontaktovat a domluvit si prohlídku. Ev. číslo: 31676. Energetický štítek: F (283 kWh/m2/rok).
  • Vložení inzerátu:
    23.4.2025
  • Kód:
    3976986
  • Typ nemovitosti:
    Byt
  • Typ budovy:
    Panelová
  • Dispozice:
    3+1
  • Vlastnictví:
    OV
  • Podlaží:
    3
  • Podlahová plocha:
    70 m2
  • Balkón:
    Ano
  • Sklep:
    Ano
  • Stav objektu:
    Dobrý
  • Energetická náročnost:
    F - Velmi nehospodárná
  • Ukazatel náročnosti:
    283 kWh/m2
  • Nabídky v okolí:
  • Informace o obci:
    Obec Pohořelice má 4595 obyvatel, z toho 3269 v produktivním věku.
    V obci se nachází pošta.
    V obci se nachází škola, popř. školka.
    V obci se nachází zdravotní zařízení.
    V obci je rozvod kanalizace.
    V obci je rozvod městské vody.
    V obci je rozvod plynu.

Podobné nabídky v okolí

Lokalita: nám. Svobody , Pohořelice, okres Brno-venkov, Česká republika nám. Svobody, Pohořelice, okr. Brno-venkov