Prodej bytu 3+1, 70 m2 - Mánesova, Moravská Ostrava, Ostrava, okr. Ostrava-město (již není v nabídce)
Cena:
2 300 000 Kč
Stav:archiv
3+1, 70 m2, panelová, OV, 2. podlaží
Popis:
Úvod:
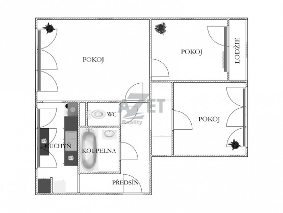
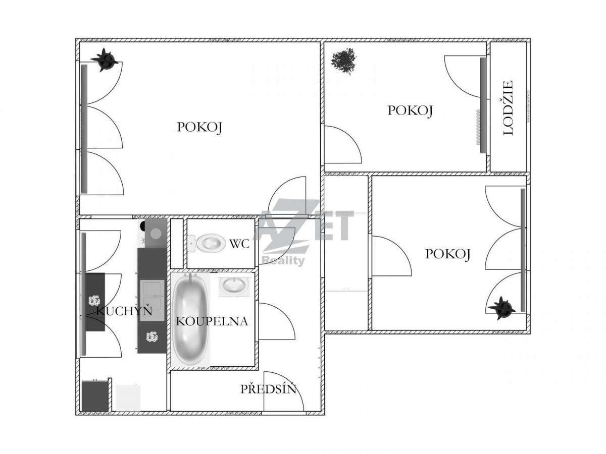
Naše společnost Vám exkluzivně nabízí byt 3+1 v osobním vlastnictví se zasklenou lodžií ve 2. nadzemním podlaží z osmi po částečné rekonstrukci. Celková výměra bytové jednotk...y včetně lodžie činí 70 m2. Měsíční náklady včetně FO 4900, - Kč. Dva ze tří pokojů jsou průchozí. Ve všech místnostech je položeno PVC lino kromě sanity, která je obložená keramickou dlažbou a předsíně, kde je položena plovoucí podlaha. Výhled na 2 světové strany (jihovýchod - lodžie + pokoj, ložnice vs severozápad - kuchyň + pokoj). Kuchyně s kombinovanou troubou, digestoří, dřezem, spíží a lednicí s mrazničkou. Koupelna se zapuštěnou vanou a vyhrazeným místem pro pračku. Samostatné sociální zařízení WC Kombi. V největším obývacím pokoji jsou částečně sádrokartonové podhledy s bodovým osvětlením. Předsíň s vestavěnými skříněmi. Plastová okna se žaluziemi a parapety. Nové bezpečnostní protipožární dveře. K bytové jednotce náleží sklep a možnost využívat společnou kolárnu. Vstupní vchod na čip.
Potenciál a přednosti nemovitosti:
1. Dokončení částečné rekonstrukce dle vlastních představ.
2. Zasklená lodžie.
Rekonstrukce:
Částečná rekonstrukce bytové jednotky proběhla v roce 2013.
Týkala se koupelny, která se keramicky obložila a obnovila plastovou vanou s koupelnovou skříňkou.
V předsíni byla položena plovoucí podlaha.
V největším obývacím pokoji se realizoval částečně snížený sádrokartonový podhled s bodovým osvětlením.
V roce 2018 se zabudovaly nové bezpečnostní protipožární dveře.
Revitalizace obytného domu:
Plastová okna se žaluziemi a parapety (2012), fasáda + zateplení (2013), vstupní vchod s poštovními schránkami.
Aktuálně neprobíhá žádný úvěr na revitalizaci vchodu.
Závěr:
Nemovitost je k dispozici ihned. Maximální občanská vybavenost ve všech směrech. Doporučujeme Vám prohlídku. Průkaz energetické náročnosti dle zákona inzerujeme v energetické třídě G. Finanční poradenství zajistíme zdarma s výhodným úročením. Pro více informací kontaktujte našeho makléře.
Těšíme se na Vaší navštěvu.
- Vložení inzerátu:
18.11.2023
- Kód:
1216
- Typ nemovitosti:
Byt
- Typ budovy:
Panelová
- Dispozice:
3+1
- Vlastnictví:
OV
- Podlaží:
2
- Podlahová plocha:
70 m2
- Lodžie:
2 m2
- Sklep:
2 m2
- Stav objektu:
Dobrý
- Bezbariérový byt:
Ano
- Telekomunikace:
Internet, Kabelová televize
- Voda:
dálkový vodovod
- Doprava:
silnice, dálnice, MHD, autobus, vlak
- Topeni:
ústřední dálkové
- Plyn:
plynovod
- Odpad:
kanalizace
- Komunikace:
asfaltová
- Bezbariérový přístup:
Ano
- Energetická náročnost:
G - Mimořádne nehospodárná
- Nabídky v okolí: