• Sledovat cenu
  •  

Zasílání upozornění emailem:

Prodej bytu 3+1, 68 m2 - Jubilejní 510, Ostrava, okr. Ostrava-město (již není v nabídce)

Cena: 3 070 000 Kč
Stav:archiv
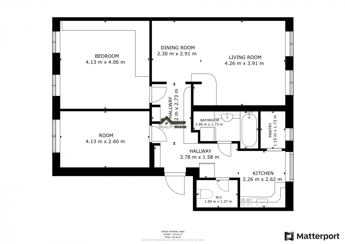
3+1, 68 m2, cihlová, OV, 1. podlaží
Popis: Vítejte!

Dnes jste si otevřeli nabídku prodeje bytu 3+1 v osobním vlastnictví, s obytnou plochou 68m2 v cihlovém domě.

Lokalita? Výborná a navíc se zde málokdy něco pro...dává, proto se jedná o jedinečnou nabídku.

A co samotný byt? Je dispozičně řešen neprůchozími pokoji. Nabízí různorodou variabilitu změny dispozice, či rozložení pokojů, ale především, je ihned k užívání, jelikož se jedná o udržované bydlení s částečnou modernizací. A co to znamená? Například to, že je v bytě elektřina, v mědi, jsou zde vyměněna okna za euro okna, plynový rozvod je v mědi a v minulosti byly i měněny podlahové rytiny. Topení je zde tedy řešeno ústředně s vlastním plynovým kotlem, který i ohřívá vodu.

Samotný dům sice nemá natřenou fasádu, ale je zde dobře hospodařeno a podstatné věci, jako je střecha, je udělána. Dům byl v minulosti nově napojen na obecní kanalizací a byly zde vyměněny rozvody vody a přidány samostatné měřáky.

To vše jen podtrhuje sklep a to dokonce dva. Jeden s 26m2 plochy a druhý menší s cca 2m2.

V okolí je snad vše, na co si vzpomenete. Ať se jedná o lékaře, obchody, nebo např. školy a školky, či dopravní spojení.

Vám už tedy chybí jen osobní prohlídka nemovitosti, ať si potvrdíte tu virtuální v inzerci. A možná vyřešit financování, s čímž Vám rádi pomůžeme. Kontaktujte mě pro více informací.
  • Vložení inzerátu:
    24.9.2024
  • Kód:
    00393
  • K dispozici od:
    0.0.0
  • Typ nemovitosti:
    Byt
  • Typ budovy:
    Cihlová
  • Dispozice:
    3+1
  • Vlastnictví:
    OV
  • Podlaží:
    1
  • Podlahová plocha:
    68 m2
  • Sklep:
    26 m2
  • Stav objektu:
    Velmi dobrý
  • Umístění objektu:
    Klidná část
  • Telekomunikace:
    , Kabelové rozvody
  • Voda:
    dálkový vodovod
  • Elektřina:
    230 V
  • Doprava:
    silnice, MHD, autobus
  • Topeni:
    ústřední plynové
  • Plyn:
    plynovod
  • Odpad:
    kanalizace
  • Komunikace:
    asfaltová
  • Energetická náročnost:
    G - Mimořádne nehospodárná
  • Nabídky v okolí:
  • Informace o obci:
    Obec Ostrava má 303609 obyvatel, z toho 212976 v produktivním věku.
    V obci se nachází pošta.
    V obci se nachází škola, popř. školka.
    V obci se nachází zdravotní zařízení.
    V obci je rozvod kanalizace.
    V obci je rozvod městské vody.
    V obci je rozvod plynu.

Podobné nabídky v okolí

Lokalita: Jubilejní 510, Ostrava, okres Ostrava-město, Česká republika Jubilejní 510, Ostrava, okr. Ostrava-město