• Sledovat cenu
  •  

Zasílání upozornění emailem:

Prodej bytu 3+1, 64 m2 - Podroužkova, Poruba, Ostrava, okr. Ostrava-město (již není v nabídce)

Cena: 2 760 000 Kč
Stav:archiv
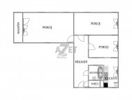
3+1, 64 m2, panelová, OV, 8. podlaží
Popis: Jde to i bez hypotéky - možnost financování formou měsíčních splátek nájmu. V zastoupení majitele Vám nabízíme k prodeji byt 3+1 v osobním vlastnictví o velikosti 64 m2 s... prostornou lodžií a sklepní kójí [2 m2]. Lokalita Ostrav - Poruba, ul. Podroužkova. Fotogalerie bude v krátké době upravena a doplněna. Třípokojový byt se nachází v osmém nadpodlaží [7. patro] z osmi a je v původním zachovalém stavu. Podlahy v bytě tvoří keramická dlažba [předsíň, kuchyně, sanita], plovoucí podlahy [hlavní obytná místnost] a původní parketová podlaha kryté kobercem v dalších dvou pokojích. V kuchyni starší kuchyňská linka, plynový sporák s troubou. V předsíni vestavěná skříň. Plastová okna se žaluziemi a parapety. Výhled na dvě světové strany [jih - sever]. Dům prošel celkovou revitalizací v podobě výměny oken, nového vstupního vchodu s poštovními schránkami, zateplení fasády, nových stoupaček a nové střechy. Nízký měsíční nájem [3 300, - Kč, včetně fondu oprav]. Obytný dům se nachází v okrajové části sídliště se spoustou zeleně, kdy se nabízí možnosti procházek do blízké přírody v areálu lesoparku Plesná. Samotné sídliště před nedávnem prošlo revitalizací. Byly vybudovány zejména nové parkovací plochy, nová dětská hřiště, opravené chodníky, provedena úprava zeleně. V blízkosti domu zastávky autobusů MHD, supermarket Albert, nákupní středisko DUHA a prakticky veškerá občanská vybavenost [obchody, zdravotní středisko, škola, mateřská školka, kulturní život]. Velmi klidné bydlení v klidné části obce s bezproblémovými sousedy. Průkaz energetické náročnosti není v současné době k dispozici, proto inzerujeme energetickou třídu G. V případě zájmu Vám nabízíme financování nového bydlení při výhodných úrokových sazbách. Pro prohlídku bytu a více informací kontaktujte našeho makléře. Těšíme se na Vaši návštěvu.
  • Vložení inzerátu:
    22.9.2022
  • Kód:
    900/4500
  • Typ nemovitosti:
    Byt
  • Typ budovy:
    Panelová
  • Dispozice:
    3+1
  • Vlastnictví:
    OV
  • Podlaží:
    8
  • Podlahová plocha:
    64 m2
  • Plocha parcely:
    64 m2
  • Lodžie:
    3 m2
  • Stav objektu:
    Před rekonstrukcí
  • Bezbariérový byt:
    Ano
  • Telekomunikace:
    Telefon, Internet, Kabelové rozvody
  • Voda:
    dálkový vodovod
  • Elektřina:
    230 V
  • Doprava:
    silnice, dálnice, MHD, autobus, vlak
  • Topeni:
    ústřední dálkové
  • Plyn:
    plynovod
  • Odpad:
    kanalizace
  • Komunikace:
    asfaltová
  • Bezbariérový přístup:
    Ano
  • Energetická náročnost:
    G - Mimořádne nehospodárná
  • Nabídky v okolí:

Podobné nabídky v okolí

Lokalita: Podroužkova , Poruba, Ostrava, okres Ostrava-město, Česká republika Podroužkova, Poruba, Ostrava, okr. Ostrava-město